110 050 000 Р 1 380 300 $ или 1 193 700

Информация об помещении

1
Этаж

Состояние и оснащение

Количество этажей
2
Развернуть
Агент
+7 (938) 656-74-88
Начать чат с агентом

Помещение свободного назначения в Московская область, Королев ...

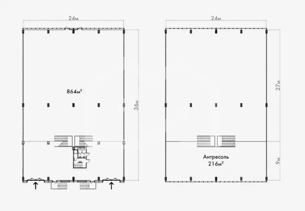
1079108. Предлагается современный проект формата Лайт индастриал в г. Королёве.Преимущества:Расположен в центральной части города Королёва, рядом с жилыми кварталами и ТЦ Globus.Заезд с Калининградской улицы.Развитая инфраструктура, рядом остановки общественного транспорта.Удобная логистика для любых видов транспорта, 8 км от МКАД.Огороженная охраняемая территория, пропускная система, видеонаблюдение, круглосуточный доступ.Профессиональная управляющая компания.Склад + шоурум + производство в одном пространстве, собственная наземная парковка на территории комплекса.Центральные городские системы водоснабжения и водоотведения.Отопление от собственной газовой котельной.Полы с антипылевым покрытием.Грузовые подъемники на 2 этаж.Автоматические подъемно-секционные ворота на уровне 0 (3*4,3 метра) - 2 шт.Ввод в эксплуатацию - апрель 2026 года.Возможна рассрочка платежа.Технические характеристики:Два соседних блока под объединение.Общая площадь - 710 кв. м, из которых:на 1 этаже - 355 кв. м, на 2 этаже - 355 кв. м.Рабочая высота потолка: 1 этаж - 5.6 метра, 2 этаж - 5,4 метра.Нагрузка на пол - 5 т/кв. м. на 1 этаже и 1 т/кв. м. на 2 этаже.Выделенная электрическая мощность: 50 ватт на 1 кв.м.

Читать полностью
    Позвонить Написать
    110 050 000 Р1 380 300 $ или 1 193 700
    Агент
    +7 (938) 656-74-88
    Начать чат с агентом
    Похожие предложения
    Помещение свободного назначения в Московская область, Королев ... - Фото 1
    Помещение свободного назначения в Московская область, Королев ... - Фото 2
    1079108. Предлагается современный проект формата Лайт индастриал в г. Королёве.Преимущества:Расположен в центральной части города Королёва, рядом с жилыми кварталами и ТЦ Globus.Заезд с Калининградской улицы.Развитая инфраструктура, рядом остановки общественного...
    • 1/2 эт.
    110 050 000 Р
    Агент
    +7 (938) Показать номер
    Посмотреть контакты
    Помещение свободного назначения в Московская область, Королев ... - Фото 1
    Помещение свободного назначения в Московская область, Королев ... - Фото 2
    1079108. Предлагается современный проект формата Лайт индастриал в г. Королёве.Преимущества:Расположен в центральной части города Королёва, рядом с жилыми кварталами и ТЦ Globus.Заезд с Калининградской улицы.Развитая инфраструктура, рядом остановки общественного...
    • 1/2 эт.
    110 050 000 Р
    Агент
    +7 (938) Показать номер
    Посмотреть контакты
    Помещение свободного назначения в Московская область, Королев ул. ... - Фото 1
    Помещение свободного назначения в Московская область, Королев ул. ... - Фото 2
    Продаются первый и второй этажи в ТЦ Весна в Королеве с сетевыми долгосрочными арендаторами.Первый этаж - сетевой супермаркет Чижик .Второй этаж - сеть фитнес-центров СПОРТИВ .Фитнес-клуб Спортив - крупнейшая сеть современных фитнесс-центров Москвы...
    • 1/2 эт.
    110 000 000 Р
    Агент
    +7 (919) Показать номер
    Посмотреть контакты
    Помещение свободного назначения в Московская область, Подольск ... - Фото 1
    Помещение свободного назначения в Московская область, Подольск ... - Фото 2
    1150788. Предлагается складское помещение общей площадью 771 кв. м. в производственно-складском комплекс формата Лайт Индастриал на Симферопольском шоссе.Преимущества:1 км до Симферопольского ш., 3 км до Варшавского ш., 7 км до Каширского ш.Удобный выезд...
    • 1/1 эт.
    104 085 000 Р
    Агент
    +7 (938) Показать номер
    Посмотреть контакты
    Помещение свободного назначения в Московская область, Домодедово ... - Фото 1
    Помещение свободного назначения в Московская область, Домодедово ... - Фото 2
    1134573. Предлагается склад общей площадью 1 080 кв. м в Домодедово. 1 этаж + антресоль ОСЗ. Преимущества: Парк расположен в черте города. Возможность эффективно выстроить логистику и поиск трудовых ресурсов для ведения бизнеса.Два независимых КПП.Прямой...
    • 1/2 эт.
    118 800 000 Р
    Агент
    +7 (938) Показать номер
    Посмотреть контакты

    Не нашли подходящего объявления?

    Оставьте заявку, и наши риэлторы подберут псн в районе Королева

    (0)