53 250 000 Р 672 800 $ или 579 800

Информация об помещении

1
Этаж

Состояние и оснащение

Количество этажей
2
Развернуть
Агент
+7 (938) 656-74-88
Начать чат с агентом

Помещение свободного назначения в Московская область, Королев ...

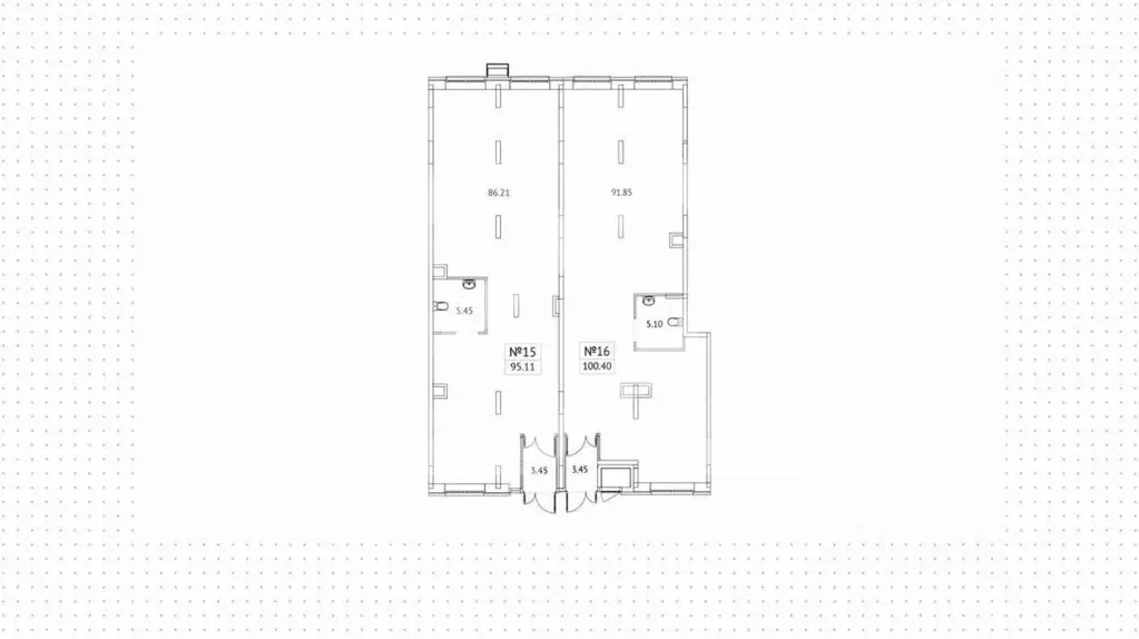
1079105-wf . Предлагается блок общей площадью 355 кв. м. в современном проекте формата light industrial в г. Королёве.Преимущества:Расположен в центральной части города Королёва, рядом с жилыми кварталами и ТЦ Globus.Заезд с Калининградской улицы.Развитая инфраструктура, рядом остановки общественного транспорта.Удобная логистика для любых видов транспорта, 8 км от МКАД.Огороженная охраняемая территория, пропускная система, видеонаблюдение, круглосуточный доступ.Профессиональная управляющая компания.Склад + шоурум + производство в одном пространстве, собственная наземная парковка на территории комплекса.Полы с антипылевым покрытием.Грузовой подъемник на 2 этаж.Автоматические подъемно-секционные ворота на уровне 0 (3*4,3 метра).Центральные городские системы водоснабжения и водоотведения.Отопление от собственной газовой котельной.Ввод в эксплуатацию - апрель 2026 года. Возможна рассрочка платежа.Технические характеристики:Общая площадь блока - 355 кв. м, из которых:на 1 этаже - 177,5 кв. м, на 2 этаже - 177,5 кв. м.Рабочая высота потолка: 1 этаж - 5.6 м, 2 этаж - 5,4 метра.Нагрузка на пол: 5 т/кв. м на 1 этаже и 1 т/кв. м. на 2 этаже.Выделенная электрическая мощность: 50 ватт на 1 кв. м.

Читать полностью
    Позвонить Написать
    53 250 000 Р672 800 $ или 579 800
    Агент
    +7 (938) 656-74-88
    Начать чат с агентом
    Похожие предложения
    Помещение свободного назначения в Московская область, Королев ... - Фото 1
    Помещение свободного назначения в Московская область, Королев ... - Фото 2
    1079105-wf . Предлагается блок общей площадью 355 кв. м. в современном проекте формата light industrial в г. Королёве.Преимущества:Расположен в центральной части города Королёва, рядом с жилыми кварталами и ТЦ Globus.Заезд с Калининградской улицы.Развитая...
    • 1/2 эт.
    53 250 000 Р
    Агент
    +7 (938) Показать номер
    Посмотреть контакты
    Помещение свободного назначения в Московская область, Коломна ... - Фото 1
    Помещение свободного назначения в Московская область, Коломна ... - Фото 2
    848444. Предлагаем торговое помещение с сетевым арендатором Пятёрочка , площадью 434.2 кв. м. Без комиссии для покупателя.Преимущества объекта:-первая линия оживленной трассы проходящей через населенный пункт;-локация центр притяжения района;-плотный...
    • 1/1 эт.
    52 000 000 Р
    Агент
    +7 (938) Показать номер
    Посмотреть контакты
    Помещение свободного назначения в Московская область, Люберцы ... - Фото 1
    Помещение свободного назначения в Московская область, Люберцы ... - Фото 2
    982911. Предлагаем к приобретению помещение свободного назначения, площадью 195 кв. м., расположенное на первом этаже жилого дома в ЖК Новотомилино . Без комиссии для покупателя. Преимущества объекта: -первая линия Рязанского шоссе;-комплекс состоит...
    • 1/17 эт.
    52 000 000 Р
    Агент
    +7 (938) Показать номер
    Посмотреть контакты
    Помещение свободного назначения в Московская область, Ленинский ... - Фото 1
    Помещение свободного назначения в Московская область, Ленинский ... - Фото 2
    1074747. Предлагаем помещение под автомойку в ЖК 1-й Донской , площадью 315.5 кв. м, расположенное на цокольном этаже 24-этажного жилого дома. Корпус 11. Без комиссии для покупателя.Преимущества объекта:-ЖК состоит из 5-ти 24-этажных корпусов, рассчитанных...
    • -1/24 эт.
    52 137 500 Р
    Агент
    +7 (938) Показать номер
    Посмотреть контакты
    Помещение свободного назначения в Московская область, Домодедово ... - Фото 1
    Помещение свободного назначения в Московская область, Домодедово ... - Фото 2
    lD 575488Продается помещение свободного назначения в ЖК Прибрежный Парк.Помещение на въезде в ЖК.Основная пешеходная тропа квартала.напротив игровой хаб, торговый коридор.Общая площадь - 139,4 кв.м.Арендаторы:МагнитДолгосрочный договор аренды на 10 лет.Предусмотрена...
    • 1/15 эт.
    52 000 000 Р
    Агент
    +7 (986) Показать номер
    Посмотреть контакты

    Не нашли подходящего объявления?

    Оставьте заявку, и наши риэлторы подберут псн в районе Королева

    (0)