165 075 000 Р 2 108 100 $ или 1 802 800

Информация об помещении

1
Этаж

Состояние и оснащение

Количество этажей
2
Развернуть
Агент
+7 (938) 656-74-88
Начать чат с агентом

Производственное помещение в Московская область, Королев Канальный ...

1079127. Предлагается современный проект формата Лайт индастриал в г. Королёве.Преимущества:Расположен в центральной части города Королёва, рядом с жилыми кварталами и ТЦ Globus.Заезд с Калининградской улицы.Развитая инфраструктура, рядом остановки общественного транспорта.Удобная логистика для любых видов транспорта, 8 км от МКАД.Огороженная охраняемая территория, пропускная система, видеонаблюдение, круглосуточный доступ.Профессиональная управляющая компания.Склад + шоурум + производство в одном пространстве, собственная наземная парковка на территории комплекса.Технические характеристики:Три соседних блока под объединение.Общая площадь - 1065 кв.м, из которых:на 1 этаже - 528 кв.м, на 2 этаже - 528 кв.м.Рабочая высота потолка: 1 этаж - 5.6 метра, 2 этаж- 5,4 метра.Нагрузка на пол: 5 т/кв.м на 1 этаже и 1 т/кв.м на 2 этаже.Полы с антипылевым покрытием.Грузовые подъемники на 2 этаж.Автоматические подъемно-секционные ворота на уровне 0 (3*4,3 метра) - 3 шт.Выделенная электрическая мощность: 50 ватт на 1 кв.м.Центральные городские системы водоснабжения и водоотведения.Отопление от собственной газовой котельной.Ввод в эксплуатацию - апрель 2026 года. Возможна рассрочка платежа.

Читать полностью
    Позвонить Написать
    165 075 000 Р2 108 100 $ или 1 802 800
    Агент
    +7 (938) 656-74-88
    Начать чат с агентом
    Похожие предложения
    Производственное помещение в Московская область, Королев Канальный ... - Фото 1
    Производственное помещение в Московская область, Королев Канальный ... - Фото 2
    1079127. Предлагается современный проект формата Лайт индастриал в г. Королёве.Преимущества:Расположен в центральной части города Королёва, рядом с жилыми кварталами и ТЦ Globus.Заезд с Калининградской улицы.Развитая инфраструктура, рядом остановки общественного...
    • 1/2 эт.
    165 075 000 Р
    Агент
    +7 (938) Показать номер
    Посмотреть контакты
    Производственное помещение в Московская область, Королев Канальный ... - Фото 1
    Производственное помещение в Московская область, Королев Канальный ... - Фото 2
    1079127. Предлагается современный проект формата Лайт индастриал в г. Королёве.Преимущества:Расположен в центральной части города Королёва, рядом с жилыми кварталами и ТЦ Globus.Заезд с Калининградской улицы.Развитая инфраструктура, рядом остановки общественного...
    • 1/2 эт.
    165 075 000 Р
    Агент
    +7 (938) Показать номер
    Посмотреть контакты
    Производственное помещение в Московская область, Королев Канальный ... - Фото 1
    Производственное помещение в Московская область, Королев Канальный ... - Фото 2
    1079127. Предлагается современный проект формата Лайт индастриал в г. Королёве.Преимущества:Расположен в центральной части города Королёва, рядом с жилыми кварталами и ТЦ Globus.Заезд с Калининградской улицы.Развитая инфраструктура, рядом остановки общественного...
    • 1/2 эт.
    165 075 000 Р
    Агент
    +7 (938) Показать номер
    Посмотреть контакты
    Производственное помещение в Московская область, Люберцы ... - Фото 1
    Производственное помещение в Московская область, Люберцы ... - Фото 2
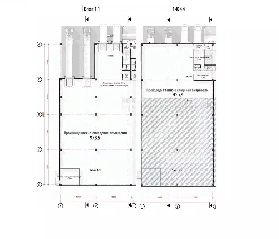
    974713. Предлагается современный производственно-складской комплекс общей площадью 1 404.4 кв.м. на территории индустриального парка Завод , Люберцы.Преимущества: Центр крупной промышленной зоны. 6 минут пешком до станции МЦД-3 Панки , 10 минут до станции...
    • 1/1 эт.
    168 528 000 Р
    Агент
    +7 (938) Показать номер
    Посмотреть контакты
    Производственное помещение в Московская область, Люберцы городской ... - Фото 1
    Производственное помещение в Московская область, Люберцы городской ... - Фото 2
    Уникальный номер помещения.Строительство современного производственно-складского комплекса класса В формата Light industrial в Томилино.Удобное расположение: 8 км. до МКАД.Добавьте объявление в избранное, чтобы не упустить выгодное предложение Рабочая...
    • 1/1 эт.
    180 000 000 Р
    Агент
    +7 (980) Показать номер
    Посмотреть контакты

    Не нашли подходящего объявления?

    Оставьте заявку, и наши риэлторы подберут производственное помещение в районе Королева

    (0)