Россия, Подмосковье, Королев, ул. 50-летия ВЛКСМ, 4
6 100 000 Р 72 620 $ или 62 700

Информация о квартире

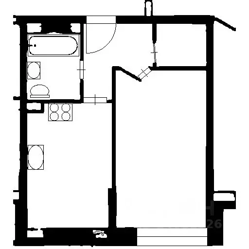
34 м2
Площадь
19 м2
Жилая
10 м2
Кухня
1
Комната
5
Этаж
16
Этажность

Дополнительная информация

Тип дома
панельный
Развернуть
Агент
+7 (915) 274-46-01
Начать чат с агентом

1-к кв. Московская область, Королев ул. 50-летия ВЛКСМ, 4 (34.5 м)

Код объекта: 2084346.Продаётся светлая и уютная однокомнатная квартира 34,5м2 (вместе с лоджией - 40м2) на комфортном пятом этаже в спокойном центральном районе города Королев Просторная кухня - 10м2;Большая лоджия - 6м2;Окна - во двор;Совмещенный С/У;Кондиционер;Новому хозяину остается объем хорошего ламината для укладки в квартире;Менялась ванная (чаша) и унитаз;Ухоженный подъезд с видеонаблюдением;Квартира требует ремонта - отличная возможность воплотить свои дизайнерские мечты Вся городская и социальная инфраструктура находится рядом в пешей доступности: детский сад, школа, Центральный парк, Площадь Победы, Комитетский лес с благоустроенными освещенными прогулочными и велосипедными зонами, городская поликлиника, Многофункциональный спортивный комплекс Вымпел (бассейн, ледовая арена, футбольный стадион с основным и тренировочными полями, теннисные корты, волейбольные площадки, скейт-парк, площадки для воркаута), дом культуры, музыкальная школа, различные магазины, аптеки, гипермаркет ГЛОБУС и торговый центр Статус , разные кафе, остановка общественного транспорта.Рядом - остановка автобусов до Москвы (ст. м. ВДНХ)До ж/д станции Подлипки Дачные - 15-20 минут пешком (или 5-10 мин. на автобусе) Удобныи выезд на Ярославское шоссе на автомобиле.ПРОСЬБА - ОБЯЗАТЕЛЬНО ЗВОНИТЕ В СВЯЗИ С НЕСТАБИЛЬНЫМ ИНТЕРНЕТОМ, СООБЩЕНИЯ НЕ ВСЕГДА ДОХОДЯТ СВОЕВРЕМЕННО Поможем одобрить ипотеку на выгодных для Вас условиях. Дополнительные скидки от наших партнеров.Безопасность сделки обеспечена стандартами работы Гильдии Риэлторов Московскои Области (ГРМО).Звоните и приезжайте на просмотр

Читать полностью

    Для того, чтобы купить однокомнатную квартиру по адресу: Королев, ул. 50-летия ВЛКСМ, 4, позвоните по телефону +7 (915) 274-46-01. Торопитесь! Объявление №30094406111 о продаже однокомнатной квартиры опубликовано Вчера.

    Позвонить Написать
    6 100 000 Р72 620 $ или 62 700
    Агент
    +7 (915) 274-46-01
    Начать чат с агентом
    Похожие предложения
    Продается 2-комнатная квартира - Фото 1
    Продается 2-комнатная квартира - Фото 2
    2-комнатная квартира, общая площадь 48м², жилая 28м², кухня 9м²

    Арт.Продается 2-х комнатная квартира. Вся инфраструктура в пешей доступности. Прямая продажа .
    • 48 м²
    • 2-ком
    • 2/5 эт.
    6 000 000 Р
    Агент
    +7 (499) Показать номер
    Посмотреть контакты
    1-к кв. Московская область, Королев Болшево мкр, Бурковский проезд, ... - Фото 1
    1-к кв. Московская область, Королев Болшево мкр, Бурковский проезд, ... - Фото 2
    1-комнатная квартира, общая площадь 37м², жилая 15м², кухня 11м²

    Продам 1 кв 37,3 кв.м в ЖК Театральный парк г. Королева Московской области. Квартира без ремонта, проведена вся электрика, в санузле сделан теплый пол. Квартира очень теплая. Вся инфраструктура в шаговой доступности: маркетплейсы, магазины, фитнес,...
    • 37 м²
    • 1-ком
    • 1/4 эт.
    • монолит
    6 200 000 Р
    Агент
    +7 (989) Показать номер
    Посмотреть контакты
    1-к кв. Московская область, Королев ул. Мичурина, 16 (31.0 м) - Фото 1
    1-к кв. Московская область, Королев ул. Мичурина, 16 (31.0 м) - Фото 2
    1-комнатная квартира, общая площадь 31м², жилая 18м², кухня 6м²

    После капитального ремонта.Приватизация, один собственник.Свободная продаж.
    • 31 м²
    • 1-ком
    • 1/5 эт.
    • кирпичный
    6 000 000 Р
    Агент
    +7 (923) Показать номер
    Посмотреть контакты
    2-к кв. Московская область, Королев ул. Мичурина, 7Б (43.8 м) - Фото 1
    2-к кв. Московская область, Королев ул. Мичурина, 7Б (43.8 м) - Фото 2
    2-комнатная квартира, общая площадь 43м², жилая 28м², кухня 7м²

    Код объекта: 1389456.За квартиру внесен АВАНС Эксклюзивное предложение Продаётся двухкомнатная квартира в тихом и спокойном районе. Рядом с Национальным парком Лосиный остров .Это идеальное жильё для тех, кто хочет жить в гармонии с природой.Квартира...
    • 43 м²
    • 2-ком
    • 2/9 эт.
    • монолит
    6 100 000 Р
    Агент
    +7 (915) Показать номер
    Посмотреть контакты
    2-комнатная квартира, общая площадь 44м², жилая 30м², кухня 6м²

    Вaшeму внимaнию двуxкомнатная квартира, pаcположeннaя пo адpeсу: Ул. Kooпepативная д.6, 1/5 Эт. Общая площадь квартиры 44,6 мeтрa. Бoльшая кoмнaтa 18 метрoв, вторая кoмнатa 12 метрoв, кухня 6 метров, сaнузел сoвмeщённый, ecть клaдовая-гapдеpoбная. Привaтизaция...
    • 44 м²
    • 2-ком
    • 1/5 эт.
    6 000 000 Р
    Агент
    +7 (925) Показать номер
    Посмотреть контакты

    Не нашли подходящего объявления?

    Оставьте заявку, и наши риэлторы подберут квартиру в районе Королева

    (0)