10 500 000 Р 127 100 $ или 108 400

Информация о квартире

63 м2
Площадь
34 м2
Жилая
12 м2
Кухня
2
Комнаты
4
Этаж
4
Этажность

Дополнительная информация

Тип дома
монолит
Развернуть
Агент
Татьяна Сунцова (Метражи group)
+7 (981) 366-58-36
Начать чат с агентом

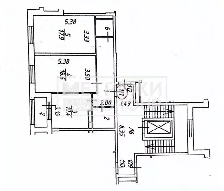
2-к кв. Московская область, Королев ул. Горького, 79к2 (63.3 м)

Код объекта: 1717551. Представляем вашему вниманию поистине уникальное предложение на рынке недвижимости Королёва — просторную двухкомнатную квартиру, расположенную в современном монолитном доме 2014 года постройки по адресу улица Горького, 79к2.Квартира свободной планировки Общая площадь квартиры составляет 63,3 квадратных метра, но это ещё не всё Благодаря впечатляющей высоте потолков в 5 метров и возможности обустройства второго уровня, вы можете увеличить жилое пространство ещё примерно на 40 квадратных метров. Квартира расположена на мансардном этаже с окнами, выходящими на улицу, а наличие наземной парковки решает вопрос с размещением автомобиля.Особого внимания заслуживает развитая инфраструктура района. Всего в пяти минутах ходьбы находятся все необходимые объекты: магазины, аптеки, пункты выдачи заказов, салоны красоты и уютные кофейни. Для семей с детьми особенно важно наличие новой современной школы с зонами отдыха, нескольких детских садов и полноценного фитнес-центра с большим бассейном.Транспортная доступность района впечатляет: всего семь минут пешком до железнодорожной станции Валентиновка, откуда можно добраться до центра Москвы всего за 35 минут на комфортных электричках. А трёхминутная прогулка до автобусной остановки открывает доступ к маршрутам, связывающим район с разными частями города, ВДНХ и Щёлково.Юридическая чистота сделки гарантирована: один взрослый собственник, отсутствие обременений и долгов. Продажа осуществляется напрямую.Мы предлагаем:* ;* помощь в получении ипотеки на выгодных условиях;* ;* .Не упустите возможность стать владельцем этой уникальной квартиры Звоните прямо сейчас, и мы поможем воплотить вашу мечту о комфортном жилье в реальность

Читать полностью

    Для того, чтобы купить двухкомнатную квартиру по адресу: Королев, ул. Горького, 79к2, позвоните по телефону +7 (981) 366-58-36. Торопитесь! Объявление №30089645271 о продаже двухкомнатной квартиры опубликовано 2 дня назад.

    Позвонить Написать
    10 500 000 Р127 100 $ или 108 400
    Агент
    Татьяна Сунцова (Метражи group)
    +7 (981) 366-58-36
    Начать чат с агентом
    Похожие предложения
    Продажа квартиры, Королев, ул. Горького - Фото 1
    Продажа квартиры, Королев, ул. Горького - Фото 2
    Продажа квартиры, Королев, ул. Горького - Фото 3
    Продажа квартиры, Королев, ул. Горького - Фото 4
    Продажа квартиры, Королев, ул. Горького - Фото 5
    Продажа квартиры, Королев, ул. Горького - Фото 6
    Продажа квартиры, Королев, ул. Горького - Фото 7
    Продажа квартиры, Королев, ул. Горького - Фото 8
    Продажа квартиры, Королев, ул. Горького - Фото 9
    Продажа квартиры, Королев, ул. Горького - Фото 10
    Продажа квартиры, Королев, ул. Горького - Фото 11
    Продажа квартиры, Королев, ул. Горького - Фото 12
    Продажа квартиры, Королев, ул. Горького - Фото 13
    Продажа квартиры, Королев, ул. Горького - Фото 14
    Продажа квартиры, Королев, ул. Горького - Фото 15
    Продажа квартиры, Королев, ул. Горького - Фото 16
    Продажа квартиры, Королев, ул. Горького - Фото 17
    Продажа квартиры, Королев, ул. Горького - Фото 18
    Продажа квартиры, Королев, ул. Горького - Фото 19
    Продажа квартиры, Королев, ул. Горького - Фото 20
    2-комнатная квартира, общая площадь 55м², жилая 25.2м², кухня 10м²

    Код объекта: 1759989. Квартира распашонка с дизайнерским ремонтом и эксклюзивной планировкой для ценителей эстетики и уюта!Предлагаем Вашему вниманию 2-комнатную квартиру-распашонку в городе Королев по адресу: улица Горького, дом 79, корпус 7, ЖК Валентиновка...
    • 55 м²
    • 2-ком
    • 4/4 эт.
    • монолит
    11 500 000 Р
    Агент
    +7 (925) Показать номер
    Агентство
    ТСН Владис
    Посмотреть контакты
    Продажа квартиры, Королев, ул. Горького - Фото 1
    Продажа квартиры, Королев, ул. Горького - Фото 2
    Продажа квартиры, Королев, ул. Горького - Фото 3
    Продажа квартиры, Королев, ул. Горького - Фото 4
    Продажа квартиры, Королев, ул. Горького - Фото 5
    Продажа квартиры, Королев, ул. Горького - Фото 6
    Продажа квартиры, Королев, ул. Горького - Фото 7
    Продажа квартиры, Королев, ул. Горького - Фото 8
    Продажа квартиры, Королев, ул. Горького - Фото 9
    Продажа квартиры, Королев, ул. Горького - Фото 10
    Продажа квартиры, Королев, ул. Горького - Фото 11
    Продажа квартиры, Королев, ул. Горького - Фото 12
    Продажа квартиры, Королев, ул. Горького - Фото 13
    Продажа квартиры, Королев, ул. Горького - Фото 14
    Продажа квартиры, Королев, ул. Горького - Фото 15
    Продажа квартиры, Королев, ул. Горького - Фото 16
    Продажа квартиры, Королев, ул. Горького - Фото 17
    Продажа квартиры, Королев, ул. Горького - Фото 18
    Продажа квартиры, Королев, ул. Горького - Фото 19
    Продажа квартиры, Королев, ул. Горького - Фото 20
    2-комнатная квартира, общая площадь 52м², жилая 26м², кухня 10м²

    Код объекта: 1616256. Квартира с дизайнерским ремонтом и эксклюзивной планировкой для ценителей эстетики и уюта!Предлагаем Вашему вниманию 2-комнатную квартиру в городе Королев по адресу: улица Горького, дом 79, корпус 9, ЖК Валентиновка парк, расположенную...
    • 52 м²
    • 2-ком
    • 4/4 эт.
    • монолит
    10 999 999 Р
    Агент
    +7 (925) Показать номер
    Агентство
    ТСН Владис
    Посмотреть контакты
    Продажа квартиры, Королев, ул. Горького - Фото 1
    Продажа квартиры, Королев, ул. Горького - Фото 2
    Продажа квартиры, Королев, ул. Горького - Фото 3
    Продажа квартиры, Королев, ул. Горького - Фото 4
    Продажа квартиры, Королев, ул. Горького - Фото 5
    Продажа квартиры, Королев, ул. Горького - Фото 6
    Продажа квартиры, Королев, ул. Горького - Фото 7
    Продажа квартиры, Королев, ул. Горького - Фото 8
    Продажа квартиры, Королев, ул. Горького - Фото 9
    Продажа квартиры, Королев, ул. Горького - Фото 10
    Продажа квартиры, Королев, ул. Горького - Фото 11
    Продажа квартиры, Королев, ул. Горького - Фото 12
    Продажа квартиры, Королев, ул. Горького - Фото 13
    Продажа квартиры, Королев, ул. Горького - Фото 14
    Продажа квартиры, Королев, ул. Горького - Фото 15
    Продажа квартиры, Королев, ул. Горького - Фото 16
    Продажа квартиры, Королев, ул. Горького - Фото 17
    Продажа квартиры, Королев, ул. Горького - Фото 18
    Продажа квартиры, Королев, ул. Горького - Фото 19
    2-комнатная квартира, с евроремонтом, общая площадь 60.4м², жилая 31.2м², кухня 10.5м²

    Код объекта: 379890. Квартира удобной планировки в развитом районе города ждёт Вас! Продается 2-комнатная квартира, по адресу: улица Горького, дом 43, расположенная на 13 этаже 14-этажного панельного дома. Общая площадь квартиры 60,4 метров (с учетом...
    • 60.4 м²
    • 2-ком
    • 13/14 эт.
    • панельный
    10 500 000 Р
    Агент
    +7 (925) Показать номер
    Агентство
    ТСН Владис
    Посмотреть контакты
    2-комнатная квартира, общая площадь 53м², жилая 32м², кухня 9м²

    Код объекта: 1788857. Продается квартира в центре города Королев с дизайнерским ремонтом Общая площадь квартиры 53.4 метра (без учета лоджии).Изолированные комнаты площадью 17 и 15 метров, просторная кухня 9 метров, раздельный санузел полностью в плитке.В...
    • 53 м²
    • 2-ком
    • 12/16 эт.
    • панельный
    11 150 000 Р
    Агент
    +7 (933) Показать номер
    Посмотреть контакты
    3-к. квартира, 60 м, 13/14 эт. - Фото 1
    3-к. квартира, 60 м, 13/14 эт. - Фото 2
    3-комнатная квартира, общая площадь 60м², кухня 11м²

    Квартира расположена в тёплом панельном доме с хорошей транспортной развязкой: до ж/д станции Болшево 15 минут пешком. Можно добраться на автобусах до станции метро ВДНХ 40 минут. Развитая инфраструктура: школы, детские сады, магазины, Дворец Культуры,...
    • 60 м²
    • 3-ком
    • 13/14 эт.
    • панельный
    10 000 000 Р
    Агент
    +7 (965) Показать номер
    Посмотреть контакты

    Не нашли подходящего объявления?

    Оставьте заявку, и наши риэлторы подберут квартиру в районе Королева

    (0)