119 000 000 Р 1 531 700 $ или 1 304 700

Информация об помещении

1
Этаж

Состояние и оснащение

Количество этажей
1
Развернуть
Агент
+7 (980) 156-96-85
Начать чат с агентом

Помещение свободного назначения в Московская область, Коломна ...

Код объекта: 1734961.В продаже 2 отдельно стоящих здания, хорошо просматриваемые на первой линии 841,8 м2 + 21 сотка земли; 120м2 +10соток. Все заселены арендаторами, которые генерируют стабильный доход.Характеристики:* 1 этаж* Потолки 3,5* На территории предусмотрена парковка для 30 автомобилей* Отдельные входы, удобные для клиентов и сотрудников* Мощные рекламные возможности на фасаде здания для вашего бизнеса* Витражное остекление фасада* 70 кВт* Все коммуникации центральные, газ* Вентиляция приточно-вытяжная* Кондиционирование* Система пожаротушения* Интернет оптоволокно* Круглосуточный доступ* Свободная планировка* Свежий ремонтИдеально подойдет под производство, крупноузловую сборку, дата центр, офисно-производственный комплекс, склад, магазин, административное здание.Локация и транспортная доступность:Здание расположено в г. Коломна — современном городе-спутнике Московской области, который активно развивается. Удобное местоположение обеспечивает легкий доступ к федеральной трассе М5 (Урал) Новорязанское шоссе— всего в 5км от объекта.Объекты находится на пересечении улиц Октябрьская, Щуровская, что обеспечивает хорошую видимость доступность. В непосредственной близости расположены важные объекты инфраструктуры: Строй Лэнд-самый крупный строительный рынок в городе, металлобазы, несколько заводов упаковочные, строительные, стекольные, промышленная химия, литейное производство, цементный) заводы, что делает здание привлекательным для клиентов, предпринимателей и инвесторов.Рядом с объектом находятся:• ЖД пути Казанского направления, что позволяет организовать грузовые перевозки.• Возможность заезда большегрузного транспорта.• Просторная территория для погрузки/разгрузки.• Остановка общественного транспорта 20метрах от зданияИнвестиционные преимущества:Здания сданы в аренду: якорь Пятерочка - долгосрочный договор, цветы; кровельные материалы, строительный магазин - краткосрочный договор. Подробности по арендной ставке и остальным условиям арендаторов предоставляем по запросу.Без обременений, один собственник физ.лицо, документы к продаже готовы. Не упустите возможность стать владельцем этого перспективного объекта Для дополнительной информации и организации просмотра, звоните

Читать полностью
    Позвонить Написать
    119 000 000 Р1 531 700 $ или 1 304 700
    Агент
    +7 (980) 156-96-85
    Начать чат с агентом
    Похожие предложения
    Помещение свободного назначения в Московская область, Старая Купавна ... - Фото 1
    Помещение свободного назначения в Московская область, Старая Купавна ... - Фото 2
    ==ЛОТ 223255 == ОТ СОБСТВЕННИКА, БЕЗ КОМИССИИ. Склад или производство,1456м2 земля 33 сотки промназначения. Отопление, Без пылевые полы, 2 ворот доки освещение, электричество 150 квт, подъезд 24/7, охрана, парковка. Технопарк эксплуатируется, удобный...
    • 1/1 эт.
    115 000 000 Р
    Агент
    +7 (923) Показать номер
    Посмотреть контакты
    Помещение свободного назначения в Московская область, Люберцы ... - Фото 1
    Помещение свободного назначения в Московская область, Люберцы ... - Фото 2
    ==ЛОТ 222696 == ОТ СОБСТВЕННИКА, БЕЗ КОМИССИИ. Продаётся комплекс административных зданий общей площадью 2 794,8 кв. м.Расположение: пос. Красково, центральная часть, первая линия (напротив ЖК Новокрасково ). Отличная транспортная доступность:* Ж/д...
    • 6/6 эт.
    124 740 000 Р
    Агент
    +7 (923) Показать номер
    Посмотреть контакты
    Прямая продажа от собственника. Продажа торгового помещения с действующим арендатором в г.Королёв микр.Первомайский ул.Чапаева д.1Б. Общая площадь помещения 500 м2, зальная планировка, два отдельных входа с фасада здания и действующий пандус для погрузки-разгрузки...
    • 1/5 эт.
    110 000 000 Р
    Агент
    +7 (919) Показать номер
    Посмотреть контакты
    Помещение свободного назначения в Московская область, Щелково ... - Фото 1
    Помещение свободного назначения в Московская область, Щелково ... - Фото 2
    СОБСТВЕННИК ЦЕНА БЕЗ НДС Предлагаем к покупке складские и производственные здания площадью 1296 кв.м, класса АДоступные площади: 1296, 1463, 1480,5, 1520,4 кв.мХарактеристики:Размер здания: 36*36 мЭтажность: 1 Высота потолков: 10,95 мПолы: бетонный...
    • 1/1 эт.
    125 842 500 Р
    Агент
    +7 (986) Показать номер
    Посмотреть контакты
    Помещение свободного назначения в Московская область, Ленинский ... - Фото 1
    Помещение свободного назначения в Московская область, Ленинский ... - Фото 2
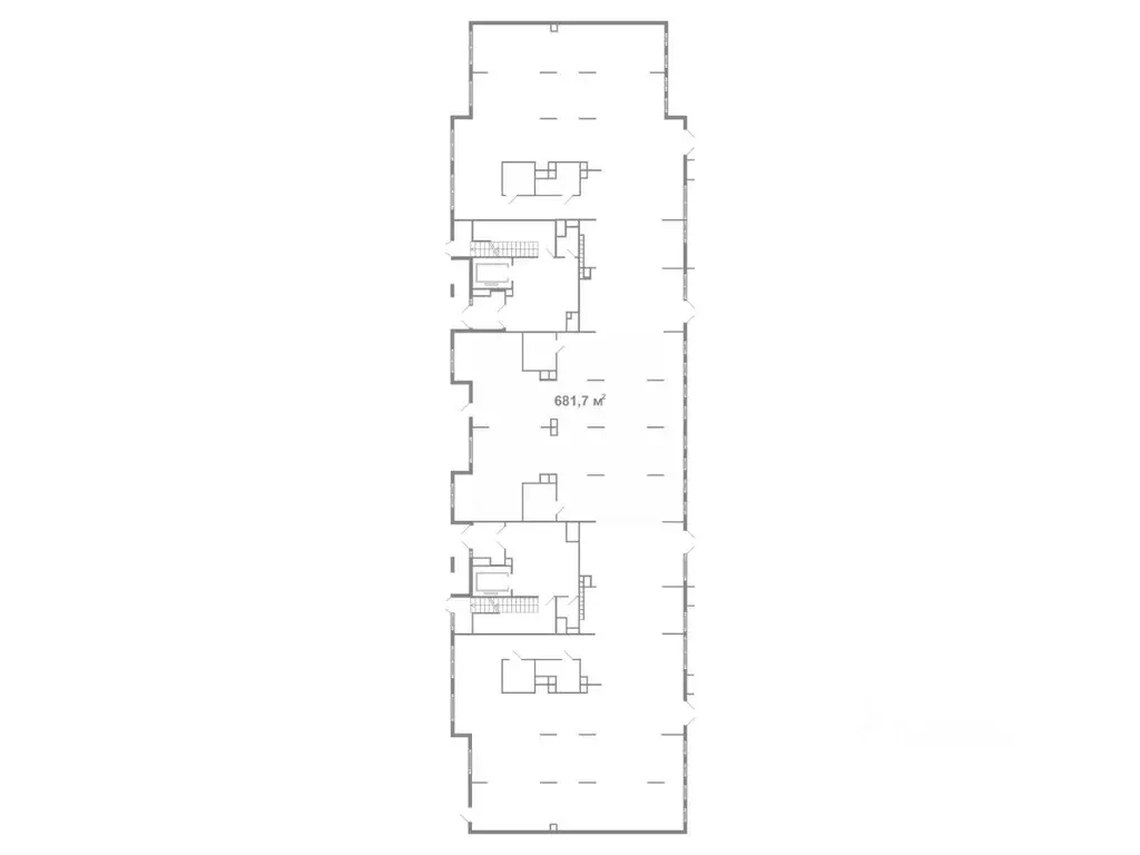
    ПРЯМАЯ ПРОДАЖА ОТ ЗАСТРОЙЩИКА - СНИЗИЛИ ЦЕНЫ ДО КОНЦА МЕСЯЦА Продается коммерческое помещение свободного назначения 1 площадью 681.7 м2 в жилом комплексе Ново-Молоково , расположенном в Ленинском районе Подмосковья. ЖК расположен всего в 9 км от МКАД,...
    • 1/10 эт.
    128 841 000 Р
    Агент
    +7 (980) Показать номер
    Посмотреть контакты

    Не нашли подходящего объявления?

    Оставьте заявку, и наши риэлторы подберут псн в районе Коломны

    (0)