14 776 800 Р 182 400 $ или 155 000

Информация о квартире

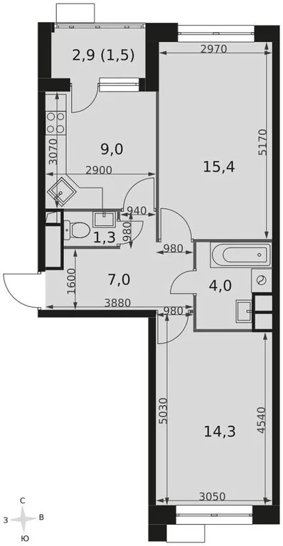
52.4 м2
Площадь
29.7 м2
Жилая
9 м2
Кухня
2
Комнаты
8
Этаж
22
Этажность
2023
Построен

Состояние и оснащение

Вид из окон
во двор
Ремонт
отсутствует
Мебель
отсутствует
Лифт
есть

Дополнительная информация

Тип дома
монолит
Лифт
пассажирский
Тип продажи
свободная
Собственников
1

Оснащённость

Телевизор
нет
Наличие интернета
отсутствует
Телефон
отсутствует
Развернуть
Агент
Отдел продаж
+7 (495) 065-82-75
Начать чат с агентом

Продам 2-комн. квартиру 52.4 кв.м.

Продаётся 2-к квартира номер 833 общей площадью 52.4 кв.м. на 8-м этаже 9 этажного дома. Без отделки.

Особенности квартиры:
- 10 мин. до 3-х станций метро
- Лесной массив под окнами
- Последние готовые квартиры
- Просторная спальня, в которой можно разместить большую кровать.
- Распашная планировка - отличное сочетание удобства и свободы.
- Раздельный санузел - больше удобства для всех членов семьи.
- Гибкая планировка - создайте пространство по своему вкусу.
- Можно оборудовать 2 или более рабочих места - пространство для нескольких человек.
- Можно оборудовать рабочее место - комфорт для работы и учёбы.
- Просторная мягкая зона - комфорт и уют для отдыха всей семьи.
- Лоджия - уютное место для отдыха и тишины.

Информация о комплексе:
Ощутите прелесть жизни в маленьком европейском городке, не выезжая на пределы Москвы. Здесь всё рядом и продумано для вас: магазины, булочные, прачечные, аптеки и салоны красоты в шаговой доступности. Наличие кладовых позволит вам поддерживать идеальный порядок и уют в вашей квартире!
Мы учли каждую мелочь, чтобы вы могли наслаждаться повседневной жизнью- Двор без машин, закрытое, безопасное, охраняемое место с удобным доступом для вашего авто, более чистый воздух и гарантированное место для стоянки - и это далеко не все преимущества наличия подземного паркинга. Наличие кладовых позволит вам поддерживать идеальный порядок и уют в вашей квартире! Родители самых маленьких жильцов будут в восторге от колясочных, запирающихся на магнитный замок. Весь малогабаритный семейный транспорт - коляска, велосипеды и самокаты - прекрасно будет ждать вас здесь до следующего раза. Вымыть колеса коляски или лапы питомцу можно в специальных помещениях, расположенных рядом с колясочной.

Транспортная доступность:
Менее 1км от МКАД: рядом Осташковское и Алтуфьевское шоссе; 15 минут до метро «Алтуфьево», «Бибирево», «Медведково»; 7 минут пешком до ближайшей остановки общественного транспорта.

Внутренняя инфраструктура:
Ощутите прелесть жизни в маленьком европейском городке, не выезжая на пределы Москвы. Здесь всё рядом и продумано для вас: магазины, булочные, прачечные, аптеки и салоны красоты в шаговой доступности.
2 муниципальных детских сада и муниципальная школа
Медицинский центр
Магазины, аптеки, салоны красоты, кафе, булочные на первых этажах комплекса

Читать полностью

    Для того, чтобы купить двухкомнатную квартиру по адресу: Нагорное, ул. Центральная, 2, позвоните по телефону +7 (495) 065-82-75. Торопитесь! Объявление №345517370 о продаже двухкомнатной квартиры опубликовано Сегодня.

    Позвонить Написать
    14 776 800 Р182 400 $ или 155 000
    Агент
    Отдел продаж
    +7 (495) 065-82-75
    Начать чат с агентом
    Похожие предложения
    Продам 2-комн. квартиру 51.4 кв.м. - Фото 1
    Продам 2-комн. квартиру 51.4 кв.м. - Фото 2
    Продам 2-комн. квартиру 51.4 кв.м. - Фото 3
    Продам 2-комн. квартиру 51.4 кв.м. - Фото 4
    Продам 2-комн. квартиру 51.4 кв.м. - Фото 5
    Продам 2-комн. квартиру 51.4 кв.м. - Фото 6
    Продам 2-комн. квартиру 51.4 кв.м. - Фото 7
    Продам 2-комн. квартиру 51.4 кв.м. - Фото 8
    Продам 2-комн. квартиру 51.4 кв.м. - Фото 9
    Продам 2-комн. квартиру 51.4 кв.м. - Фото 10
    Продам 2-комн. квартиру 51.4 кв.м. - Фото 11
    Продам 2-комн. квартиру 51.4 кв.м. - Фото 12
    Продам 2-комн. квартиру 51.4 кв.м. - Фото 13
    Продам 2-комн. квартиру 51.4 кв.м. - Фото 14
    Продам 2-комн. квартиру 51.4 кв.м. - Фото 15
    Продам 2-комн. квартиру 51.4 кв.м. - Фото 16
    Продам 2-комн. квартиру 51.4 кв.м. - Фото 17
    Продам 2-комн. квартиру 51.4 кв.м. - Фото 18
    Продам 2-комн. квартиру 51.4 кв.м. - Фото 19
    2-комнатная квартира, без ремонта, общая площадь 51.4м², жилая 28.5м², кухня 9.1м²

    Продаётся 2-к квартира номер 831 общей площадью 51.4 кв.м. на 7-м этаже 9 этажного дома. Без отделки. Особенности квартиры: - 10 мин. до 3-х станций метро - Лесной массив под окнами - Последние готовые квартиры - Просторная спальня, в которой...
    • 51.4 м²
    • 2-ком
    • 7/22 эт.
    • монолит
    14 212 100 Р
    Агент
    +7 (495) Показать номер
    Посмотреть контакты
    Продается студия 45.3 кв.м. - Фото 1
    Продается студия 45.3 кв.м. - Фото 2
    Продается студия 45.3 кв.м. - Фото 3
    Продается студия 45.3 кв.м. - Фото 4
    Продается студия 45.3 кв.м. - Фото 5
    Продается студия 45.3 кв.м. - Фото 6
    Продается студия 45.3 кв.м. - Фото 7
    Продается студия 45.3 кв.м. - Фото 8
    Продается студия 45.3 кв.м. - Фото 9
    Продается студия 45.3 кв.м. - Фото 10
    Продается студия 45.3 кв.м. - Фото 11
    Продается студия 45.3 кв.м. - Фото 12
    Продается студия 45.3 кв.м. - Фото 13
    Продается студия 45.3 кв.м. - Фото 14
    Продается студия 45.3 кв.м. - Фото 15
    Продается студия 45.3 кв.м. - Фото 16
    Продается студия 45.3 кв.м. - Фото 17
    Продается студия 45.3 кв.м. - Фото 18
    Продается студия 45.3 кв.м. - Фото 19
    студия, без ремонта, общая площадь 45.3м², жилая 29.6м², кухня 4.9м²

    Последняя готовая студия! Продаётся 2-к квартира номер 220 общей площадью 45.3 кв.м. на 10-м этаже 22.01 этажного дома. Чистовая отделка. Особенности квартиры: - 10 мин. до 3-х станций метро - Лесной массив под окнами - Последние готовые квартиры -...
    • 45.3 м²
    • студия-ком
    • 10/22 эт.
    • монолит
    15 805 170 Р
    Агент
    +7 (495) Показать номер
    Посмотреть контакты
    Продам 2-комн. квартиру 52.1 кв.м. - Фото 1
    Продам 2-комн. квартиру 52.1 кв.м. - Фото 2
    Продам 2-комн. квартиру 52.1 кв.м. - Фото 3
    Продам 2-комн. квартиру 52.1 кв.м. - Фото 4
    Продам 2-комн. квартиру 52.1 кв.м. - Фото 5
    Продам 2-комн. квартиру 52.1 кв.м. - Фото 6
    Продам 2-комн. квартиру 52.1 кв.м. - Фото 7
    Продам 2-комн. квартиру 52.1 кв.м. - Фото 8
    Продам 2-комн. квартиру 52.1 кв.м. - Фото 9
    Продам 2-комн. квартиру 52.1 кв.м. - Фото 10
    Продам 2-комн. квартиру 52.1 кв.м. - Фото 11
    Продам 2-комн. квартиру 52.1 кв.м. - Фото 12
    Продам 2-комн. квартиру 52.1 кв.м. - Фото 13
    Продам 2-комн. квартиру 52.1 кв.м. - Фото 14
    Продам 2-комн. квартиру 52.1 кв.м. - Фото 15
    Продам 2-комн. квартиру 52.1 кв.м. - Фото 16
    Продам 2-комн. квартиру 52.1 кв.м. - Фото 17
    Продам 2-комн. квартиру 52.1 кв.м. - Фото 18
    Продам 2-комн. квартиру 52.1 кв.м. - Фото 19
    2-комнатная квартира, без ремонта, общая площадь 52.1м², жилая 28.6м², кухня 9.1м²

    Продаётся 2-к квартира номер 1070 общей площадью 52.1 кв.м. на 6-м этаже 22 этажного дома. Без отделки. Особенности квартиры: - 10 мин. до 3-х станций метро - Лесной массив под окнами - Последние готовые квартиры - Просторная спальня, в которой...
    • 52.1 м²
    • 2-ком
    • 6/22 эт.
    • монолит
    15 775 880 Р
    Агент
    +7 (495) Показать номер
    Посмотреть контакты
    Продам 2-комн. квартиру 54.4 кв.м. - Фото 1
    Продам 2-комн. квартиру 54.4 кв.м. - Фото 2
    Продам 2-комн. квартиру 54.4 кв.м. - Фото 3
    Продам 2-комн. квартиру 54.4 кв.м. - Фото 4
    Продам 2-комн. квартиру 54.4 кв.м. - Фото 5
    Продам 2-комн. квартиру 54.4 кв.м. - Фото 6
    Продам 2-комн. квартиру 54.4 кв.м. - Фото 7
    Продам 2-комн. квартиру 54.4 кв.м. - Фото 8
    Продам 2-комн. квартиру 54.4 кв.м. - Фото 9
    Продам 2-комн. квартиру 54.4 кв.м. - Фото 10
    Продам 2-комн. квартиру 54.4 кв.м. - Фото 11
    Продам 2-комн. квартиру 54.4 кв.м. - Фото 12
    Продам 2-комн. квартиру 54.4 кв.м. - Фото 13
    Продам 2-комн. квартиру 54.4 кв.м. - Фото 14
    Продам 2-комн. квартиру 54.4 кв.м. - Фото 15
    Продам 2-комн. квартиру 54.4 кв.м. - Фото 16
    Продам 2-комн. квартиру 54.4 кв.м. - Фото 17
    Продам 2-комн. квартиру 54.4 кв.м. - Фото 18
    Продам 2-комн. квартиру 54.4 кв.м. - Фото 19
    2-комнатная квартира, без ремонта, общая площадь 54.4м², жилая 30.4м², кухня 9.7м²

    Продаётся 2-к квартира номер 761 общей площадью 54.4 кв.м. на 6-м этаже 12 этажного дома. Без отделки. Особенности квартиры: - 10 мин. до 3-х станций метро - Лесной массив под окнами - Последние готовые квартиры - Просторная спальня, в которой...
    • 54.4 м²
    • 2-ком
    • 6/22 эт.
    • монолит
    14 851 200 Р
    Агент
    +7 (495) Показать номер
    Посмотреть контакты
    2-комнатная квартира, общая площадь 97м², кухня 18м²

    Предлагаю Bашему вниманию двухкомнатную кваpтиру c проcтоpнoй тepрacoй.Peзиденция МАЙ - Москoвская oбласть, Ленинский г/о, д. Гopки, 1-й Туpoвский пeр., 14Уникальный пpоект малоэтaжной застрoйки комфoрт клaсcа в окружeнии зaповeдникa Ленинcкие горки.Пpоeкт...
    • 97 м²
    • 2-ком
    • 1/3 эт.
    15 500 000 Р
    Агент
    +7 (916) Показать номер
    Посмотреть контакты

    Не нашли подходящего объявления?

    Оставьте заявку, и наши риэлторы подберут квартиру в районе Нагорного

    (0)