Реализация объекта недвижимости приостановлена

Информация об помещении

1
Этаж

Состояние и оснащение

Количество этажей
2
Развернуть

Склад в Московская область, Химки городской округ, д. Елино 12 (566 м)

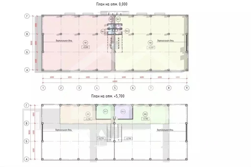
1003311 . Склад в производственно-складском комплексе Light Industrial в промышленном парке Луневские ворота в 15 км от МКАД, на Ленинградском шоссе. Вечерняя сторона, после поворота на Шереметьевское шоссе в д. Елино, на второй линии - за гипермаркетом МЕТРО и АУТЛЕТОМ. Развитая транспортная инфраструктура: в 200 м выезд на Ленинградское шоссе - М-10, 5 км до МЦД-3 Фирсановская , Сходня или Подрезково . Сверхинтенсивный автомобильный трафик по Ленинградскому шоссе.Промышленный парк Луневские ворота состоит из 67 блоков площадью от 462 м2 до 1486 м2, и общей площадью 46000м2. В каждом блоке - место для разгрузки крупнотоннажного транспорта - 2 дока на блок. На территории предусмотрено общежитие и коворкинг с кафе.Состав блока: 1 этаж и антресоль. Зона погрузки/разгрузки: 2 дока на уровне 1,2 м. Открытая планировка, на антресоли предусмотрены офисные блоки. Пол: бетонный с антипылевым покрытием. Подключены централизованные сети канализации и водопровода, отопление собственным котлом от магистрального газопровода. Плоская кровля с внутренним водостоком. Парковка на территории комплекса для разных типов а/м. Парковка грузового транспорта - 28 м/м (большегрузы типа фуры). Широкие проезды между зданиями, удобные для маневрирования большегрузного транспорта. В 200 м - остановки общественного транспорта. 20 мин автобусом до м. Ховрино.Технические характеристики:Площадь блока: 566 кв. м, их них:Производственно-складская часть - 450 м2,Антресоль - 116 м2, в т.ч. офис - 27м2Высота потолков:Склад - 9 метров рабочая, 11 м полнаяАнтресоль - 5 м, под антресолью - 5,5 м.Нагрузка на пол: 6 т/м2.Ворота: 2 шт - доковые на высоте 1,2 м с доклевеллерами.Электрическая мощность: 30 кВт, возможно увеличение.Отопление централизованное от газовой котельной.Тип склада: сухой (+14/+24).Сдача - 3 кв. 2026 г

Читать полностью

    Реализация объекта недвижимости приостановлена

    Не нашли подходящего объявления?

    Оставьте заявку, и наши риэлторы подберут склад в районе Елино

    (0)