113 100 000 Р 1 469 400 $ или 1 256 500

Информация об помещении

1
Этаж

Состояние и оснащение

Количество этажей
1
Развернуть
Агент
+7 (938) 656-74-88
Начать чат с агентом

Помещение свободного назначения в Московская область, Химки городской ...

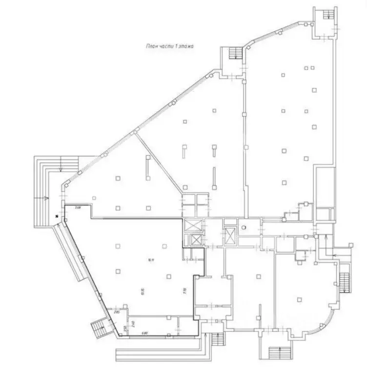
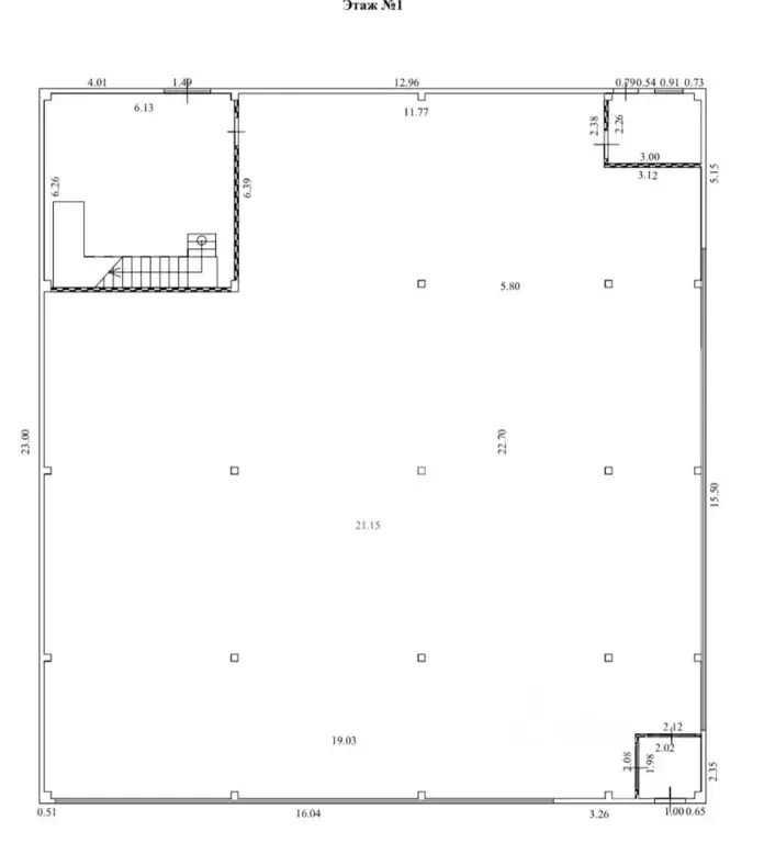
1094173. Предлагаем блок площадью 780 кв.м. в современном производственно-складском здании формата Лайт Индастриал, в районе д.Елино по Ленинградскому шоссе.Преимущества:Популярное логистическое и производственное направление в Московском регионе.Быстрый выезд на Ленинградское шоссе (200 м) и М-11 НЕВА (3 км), 18 минут до МКАД.В пешей доступности остановки общественного транспорта в Москву, Зеленоград и станция МЦД-3 Фирсановская.Современный объект формата Лайт Индастриал на популярном и престижном Северо-Западном направлении, отлично подходящий под нужды малого и среднего бизнеса и производства. Профессиональный девелопер и управляющая компания. Мезонин над доками для размещения АБК. Полный пакет коммуникаций (вода, канализация, отопление от своей котельной). Антипылевое покрытие пола.Возможность покупки отдельно по блокам (здание состоит из 8-ми блоков от 536 до 843 кв.м.).Технические характеристики:Общая площадь: 780 кв.м. (в т.ч. абк на мезонине 168 кв.м.).Рабочая высота: 8 м.Шаг колонн: 12 18 м.Нагрузка на пол: 5 т/кв.м.2 доковых ворот с доклевеллерами и докшелтерами.Электрическая мощность: 25 квт на блок, с возможностью увеличения.Так как корректный адрес отсутствует на Яндекс.Картах, введен ориентировочный.

Читать полностью
    Позвонить Написать
    113 100 000 Р1 469 400 $ или 1 256 500
    Агент
    +7 (938) 656-74-88
    Начать чат с агентом
    Похожие предложения
    Помещение свободного назначения в Московская область, Химки городской ... - Фото 1
    Помещение свободного назначения в Московская область, Химки городской ... - Фото 2
    1094173. Предлагается блок площадью 780 кв.м. в современном производственно-складском здание формата Лайт Индастриал, в районе д. Елино по Ленинградскому шоссе.Преимущества:Популярное логистическое и производственное направление в Московском регионе.Быстрый...
    • 1/1 эт.
    113 100 000 Р
    Агент
    +7 (938) Показать номер
    Посмотреть контакты
    Помещение свободного назначения в Московская область, Раменский ... - Фото 1
    Помещение свободного назначения в Московская область, Раменский ... - Фото 2
    994064. Предлагаем отдельно стоящее здание с арендатором Пятёрочка , площадью 607.2 кв. м. Без комиссии для покупателя.Преимущества объекта:-первая линия ул. Школьная;-6 минут на автомобиле от станции МЦД-3 Отдых ;-удобная транспортная доступность:...
    • 1/1 эт.
    110 000 000 Р
    Агент
    +7 (938) Показать номер
    Посмотреть контакты
    Помещение свободного назначения в Московская область, Красногорск ул. ... - Фото 1
    Помещение свободного назначения в Московская область, Красногорск ул. ... - Фото 2
    904968. Предлагаем помещение свободного назначения с арендатором Самокат в ЖК Молодёжный-3 , площадью 225.5 кв. м, расположенное на первом этаже 25-этажного жилого дома. Без комиссии для покупателя.Преимущества объекта:-первая линия ул. Молодёжная;-шаговая...
    • 1/25 эт.
    101 250 000 Р
    Агент
    +7 (938) Показать номер
    Посмотреть контакты
    Помещение свободного назначения в Московская область, Люберцы ... - Фото 1
    Помещение свободного назначения в Московская область, Люберцы ... - Фото 2
    905402. Предлагаем помещение свободного назначения с якорным арендатором Дикси, площадью 450 кв. м., расположенное на первом этаже жилого дома в ЖК Красково-Олимпийский , г. Люберцы. Без комиссии для покупателя.Преимущества объекта:-комплекс состоит...
    • 1/18 эт.
    110 000 000 Р
    Агент
    +7 (938) Показать номер
    Посмотреть контакты
    Продается готовый арендный бизнес 850 м2 в ТЦ "Сокол" - Фото 1
    Продается готовый арендный бизнес 850 м2 в ТЦ "Сокол" - Фото 2
    Продается готовый арендный бизнес 850 м2 в ТЦ "Сокол" - Фото 3
    Продается готовый арендный бизнес 850 м2 в ТЦ "Сокол" - Фото 4
    Продается готовый арендный бизнес 850 м2 в ТЦ "Сокол" - Фото 5
    Продается готовый арендный бизнес 850 м2 в ТЦ "Сокол" - Фото 6
    Продается готовый арендный бизнес 850 м2 в ТЦ "Сокол" - Фото 7
    Продается готовый арендный бизнес 850 м2 в ТЦ "Сокол" - Фото 8
    Продается готовый арендный бизнес 850 м2 в ТЦ "Сокол" - Фото 9
    Продается готовый арендный бизнес 850 м2 в ТЦ "Сокол" - Фото 10
    Продается готовый арендный бизнес 850 м2 в ТЦ "Сокол" - Фото 11
    Продается готовый арендный бизнес 850 м2 в ТЦ "Сокол" - Фото 12
    Продается готовый арендный бизнес 850 м2 в ТЦ "Сокол" - Фото 13
    Продается готовый арендный бизнес 850 м2 в ТЦ "Сокол" - Фото 14
    Продается готовый арендный бизнес 850 м2 в ТЦ "Сокол" - Фото 15
    Продается готовый арендный бизнес 850 м2 в ТЦ "Сокол" - Фото 16
    Продается готовый арендный бизнес 850 м2 в ТЦ "Сокол" - Фото 17
    Продается готовый арендный бизнес 850 м2 в ТЦ "Сокол" - Фото 18
    Продается готовый арендный бизнес 850 м2 в ТЦ "Сокол" - Фото 19
    полезная площадь 850м²

    Продается готовый арендный бизнес в торговом центре "Сокол"! Преимущества помещения: - Готовый бизнес: Арендное помещение с действующим договором с арендатором на срок более года. Вы получаете стабильный доход с самого начала! - Просторные помещения:...
    • 850 м²
    • 1/1 эт.
    120 000 000 Р
    Агент
    +7 (902) Показать номер
    Посмотреть контакты

    Не нашли подходящего объявления?

    Оставьте заявку, и наши риэлторы подберут псн в районе Елино

    (0)