45 600 000 Р 559 500 $ или 476 800

Информация об помещении

1
Этаж

Состояние и оснащение

Количество этажей
1
Развернуть
Агент
Bright Rich Moscow Индустриально-складской департамент (Bright Rich Moscow)
+7 (915) 266-41-29
Начать чат с агентом

Склад в Московская область, Клин Волоколамское ш., 4 (38000 м)

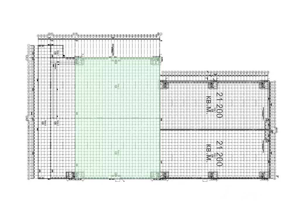
Складское помещение 38 000 кв. м в Индустриальный парк Клин от собственника. Объект на стадии активного строительства, готовность ко въезду уточняется по запросу. Направление: Север. Шоссе: Волоколамское, Ленинградское. Расстояние от МКАД: 80 км. Характеристики:- Класс: A; - Ограничения по электроэнергии: 5.5 мВт; - Ворота: Доки, Ворота на нулевой отметке; - Тип склада: Производственное помещение, Сухой склад; - Высота потолков: 12 м, 9 м; - Нагрузка на пол: 9 т/ кв.м, 6 т/ кв.м; - Система пожаротушения: Спринклерная; - Тип пола: С антипылевым покрытием; - Уровень пола: 1.2 м; - Шаг колонн: 12x24 м. Арендная ставка:/кв. м в год. Финансовые условия: - В стоимость включено: OPEX, НДС; - Оплачивается отдельно: Коммунальные услуги; - Налог: Включая НДС. Без комиссии и скрытых платежей. Оперативно организуем просмотр и предоставим необходимую информацию. Точное местоположение объекта можно найти по данным координатам: 56.331209,36.678842 ID = c_1763656

Читать полностью
    Позвонить Написать
    45 600 000 Р559 500 $ или 476 800
    Агент
    Bright Rich Moscow Индустриально-складской департамент (Bright Rich Moscow)
    +7 (915) 266-41-29
    Начать чат с агентом
    Похожие предложения
    Склад в Московская область, Богородский городской округ, Обухово пгт  ... - Фото 1
    Склад в Московская область, Богородский городской округ, Обухово пгт  ... - Фото 2
    Номер лота 84081. Аренда склада в новом здании класса А+ Расположен в 30 км от МКАД по Горьковскому шоссе. Полы антипыль, высота потолка 12,9 м, нагрузка на пол до 8 т/м2. Шаг колонн 12 х 12 м. Встроенные административные и бытовые помещения, зарядные...
    • 1/1 эт.
    45 937 500 Р
    Агент
    +7 (915) Показать номер
    Посмотреть контакты
    Склад в Московская область, Раменский муниципальный округ, с. Софьино ... - Фото 1
    Склад в Московская область, Раменский муниципальный округ, с. Софьино ... - Фото 2
    Арт.Новорязанское шоссе 25 км от МКАД. Прямая аренда от Собственника. Современный складской комплекс А класса. Скидки Арендные каникулы Индивидуальные улучшения - все Обсуждается Высота потолка рабочая - 12м.Полы - антипылевые с нагрузкой 8 т. на...
    • 1/1 эт.
    46 942 200 Р
    Агент
    +7 (915) Показать номер
    Посмотреть контакты
    Склад в Самарская область, Волжский район, Верхняя Подстепновка с/пос, ... - Фото 1
    Склад в Самарская область, Волжский район, Верхняя Подстепновка с/пос, ... - Фото 2
    Предлагается к аренде складской комплекс категории A - 50000 м. кв. Объект находится в 0 Москвы . Деление складского комплекса не предполагается 50000 м.кв. Блок на 1 этаже, высота потолков 12.0 м. , покрытие - антипыль....
    • 1/1 эт.
    45 000 000 Р
    Агент
    +7 (923) Показать номер
    Посмотреть контакты
    Склад в Алтайский край, Барнаул просп. Космонавтов, 8/2 (132000 м) - Фото 1
    Склад в Алтайский край, Барнаул просп. Космонавтов, 8/2 (132000 м) - Фото 2
    Предлагается в аренду складской комплекс категории Cм. кв. Объект находится в 80 Москвы . Возможно деление складского комплекса от 5000 мм.кв. Блок на 1 этаже, высота потолков 12.0 м. , покрытие - стяжка. Нагрузка на пол 8.0...
    • 1/1 эт.
    46 200 000 Р
    Агент
    +7 (923) Показать номер
    Посмотреть контакты
    Склад в Москва д. Сенькино-Секерино, 3 (30000 м) - Фото 1
    Склад в Москва д. Сенькино-Секерино, 3 (30000 м) - Фото 2
    Отапливаемый склад в аренду от собственника без комиссии. Класс A. Объявление актуально. Охраняемая территория. 45 км от МКАД. Никаких скрытых платежей. Открыты к диалогу по условиям аренды. ID объекта 1290. Добавьте в избранное, чтобы не потерять Площадь:...
    • 1/1 эт.
    46 500 000 Р
    Агент
    +7 (981) Показать номер
    Посмотреть контакты

    Не нашли подходящего объявления?

    Оставьте заявку, и наши риэлторы подберут склад в районе Клина

    (0)