16 000 000 Р 196 800 $ или 171 200

Информация об помещении

1
Этаж

Состояние и оснащение

Количество этажей
16
Развернуть
Агент
+7 (985) 883-94-76
Начать чат с агентом

Помещение свободного назначения в Московская область, Клин ул. ...

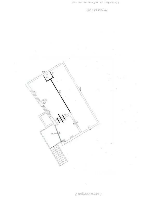
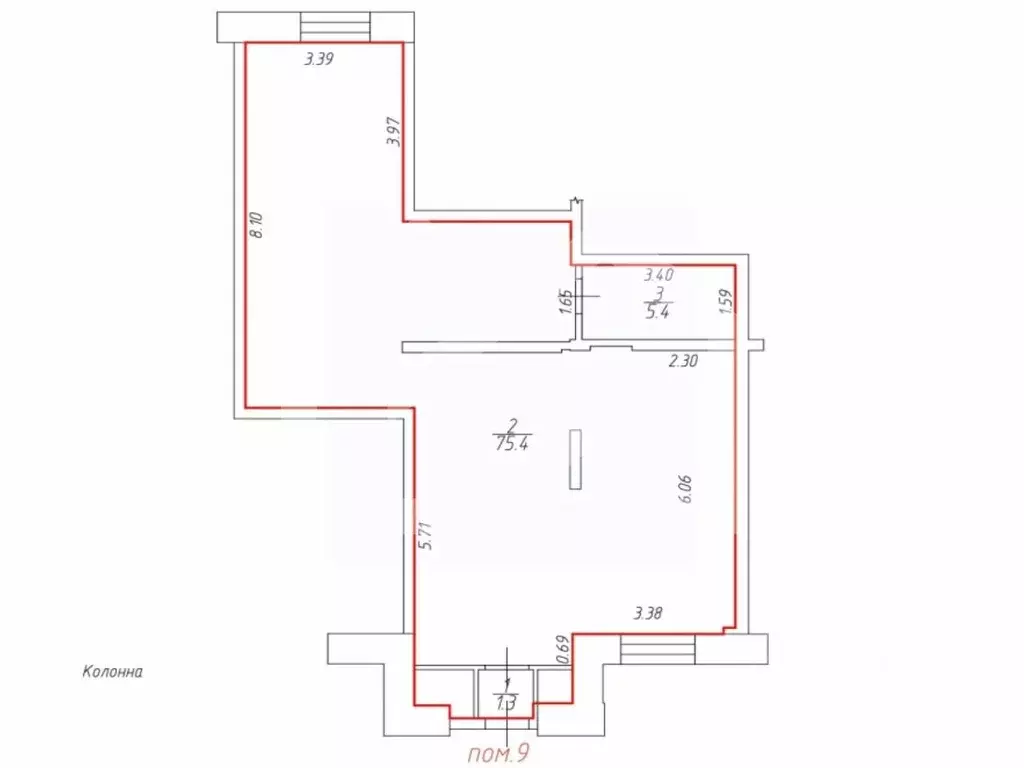
Код объекта: 2038512.Коммерческое помещение в Клину — пространство для бизнеса с будущимАдрес: Московская область, г. Клин, ул. Чайковского, 105к3 — самое сердце города, высокая проходимость, развитая инфраструктура.Объект:— Помещение свободного назначения, площадь — 201,9 кв.м.— Расположено на 1 этаже 16-этажного кирпично-монолитного дома, построенного в 2019 году — современное, надёжное здание с долгим сроком эксплуатации.— Отдельный вход — полная независимость, удобный доступ для клиентов и логистики.Планировка и возможности:— Высота потолков — 4 метра — идеально для зонирования, двухуровневых решений, установки витрин или оборудования.— Состояние — черновое (без отделки) — вы создаёте пространство с нуля: под кафе, фитнес, аптеку, салон, магазин, медицинский центр или коворкинг.— Три санузла (два раздельных, один совмещённый) — комфорт для посетителей и персонала.Почему это выгодно:— Динамично развивающийся район — рост числа жителей, спрос на услуги.— Плотная жилая застройка вокруг — постоянная аудитория в шаговой доступности.— Подходит под ипотеку с пониженной ставкой — поможем оформить с выгодными условиями. Для предпринимателей и инвесторов:— Используйте как собственный бизнес или сдавайте в аренду — ликвидный актив.— Высокая востребованность помещений на первой линии в Клину.Безопасная сделка:— Полная юридическая поддержка.— Помощь в подготовке документов, проверке истории объекта.Звоните прямо сейчас — расскажем о цене, покажем планировку, запишем на оперативный просмотр.Не упустите шанс — это уникальное пространство в центре с потенциалом роста.Ваш бизнес начинается здесь.

Читать полностью
    Позвонить Написать
    16 000 000 Р196 800 $ или 171 200
    Агент
    +7 (985) 883-94-76
    Начать чат с агентом
    Похожие предложения
    Помещение свободного назначения в Московская область, Ленинский ... - Фото 1
    Помещение свободного назначения в Московская область, Ленинский ... - Фото 2
    Продается помещение 96,3 кв.м. в густонаселенном районе. Помещение имеет отдельный вход со двора, есть возможность сделать отдельный вход с улицы. Возможность повесить рекламные вывески по 3 сторонам (двор, улица, торец здания). В собственности более...
    • 1/14 эт.
    17 000 000 Р
    Агент
    +7 (916) Показать номер
    Посмотреть контакты
    Прямая продажа от застройщика - Фото 1
    Прямая продажа от застройщика - Фото 2
    Прямая продажа от застройщика - Фото 3
    Прямая продажа от застройщика - Фото 4
    Прямая продажа от застройщика - Фото 5
    Прямая продажа от застройщика - Фото 6
    Прямая продажа от застройщика - Фото 7
    Прямая продажа от застройщика - Фото 8
    Прямая продажа от застройщика - Фото 9
    Прямая продажа от застройщика - Фото 10
    Прямая продажа от застройщика - Фото 11
    Прямая продажа от застройщика - Фото 12
    Прямая продажа от застройщика - Фото 13
    Прямая продажа от застройщика - Фото 14
    Прямая продажа от застройщика - Фото 15
    Прямая продажа от застройщика - Фото 16
    Прямая продажа от застройщика - Фото 17
    Прямая продажа от застройщика - Фото 18
    Прямая продажа от застройщика - Фото 19
    Прямая продажа от застройщика - Фото 20
    полезная площадь 50.1м²

    Предлагается в продажу помещение свободного назначения, расположенное в ЖК 1-й Донской площадью 50.1 кв.м. Располагается на 1 этаже 12-этажного корпуса. Помещение идеально подойдет для магазина, кафе, офиса или другого бизнеса благодаря функциональной...
    • 50.1 м²
    • 1/12 эт.
    15 976 730 Р
    Агент
    +7 (495) Показать номер
    Посмотреть контакты
    Прямая продажа от застройщика - Фото 1
    Прямая продажа от застройщика - Фото 2
    Прямая продажа от застройщика - Фото 3
    Прямая продажа от застройщика - Фото 4
    Прямая продажа от застройщика - Фото 5
    Прямая продажа от застройщика - Фото 6
    Прямая продажа от застройщика - Фото 7
    Прямая продажа от застройщика - Фото 8
    Прямая продажа от застройщика - Фото 9
    Прямая продажа от застройщика - Фото 10
    Прямая продажа от застройщика - Фото 11
    Прямая продажа от застройщика - Фото 12
    Прямая продажа от застройщика - Фото 13
    Прямая продажа от застройщика - Фото 14
    Прямая продажа от застройщика - Фото 15
    Прямая продажа от застройщика - Фото 16
    Прямая продажа от застройщика - Фото 17
    Прямая продажа от застройщика - Фото 18
    Прямая продажа от застройщика - Фото 19
    Прямая продажа от застройщика - Фото 20
    полезная площадь 50м²

    Предлагается в продажу помещение свободного назначения, расположенное в ЖК 1-й Южный площадью 50 кв.м. Располагается на 1 этаже 24-этажного корпуса. Помещение идеально подойдет для магазина, кафе, офиса или другого бизнеса благодаря функциональной планировке...
    • 50 м²
    • 1/24 эт.
    16 411 200 Р
    Агент
    +7 (495) Показать номер
    Посмотреть контакты
    Помещение свободного назначения в Московская область, Химки ... - Фото 1
    Помещение свободного назначения в Московская область, Химки ... - Фото 2
    Арт.. Помещение свободного назначения в ЖК Квартал Ивакино Химки, микрорайон Клязьма-Старбеево, квартал Ивакино, к4Дом сдан, на ключах.Цена: Помещение:Общая площадь: 43,3 м2;1 этаж;1 входа;Электрическая мощность: 8 кВт;Прямоугольная планировка;Витринное...
    • 1/10 эт.
    16 000 000 Р
    Агент
    +7 (985) Показать номер
    Посмотреть контакты
    Помещение свободного назначения в Московская область, Люберцы ... - Фото 1
    Помещение свободного назначения в Московская область, Люберцы ... - Фото 2
    Номер лота: 11012 Россия, Московская область, городской округ Люберцы, деревня Островцы, Баулинская улица, 9 Шоссе: Новорязанское Общая площадь: 129.50 м.кв. Помещение свободного назначения. Удобное располрожение. Пандус, отдельный вход. Есть...
    • 1/17 эт.
    15 000 000 Р
    Агент
    +7 (985) Показать номер
    Посмотреть контакты

    Не нашли подходящего объявления?

    Оставьте заявку, и наши риэлторы подберут псн в районе Клина

    (0)