7 400 000 Р 95 250 $ или 81 130

Информация о квартире

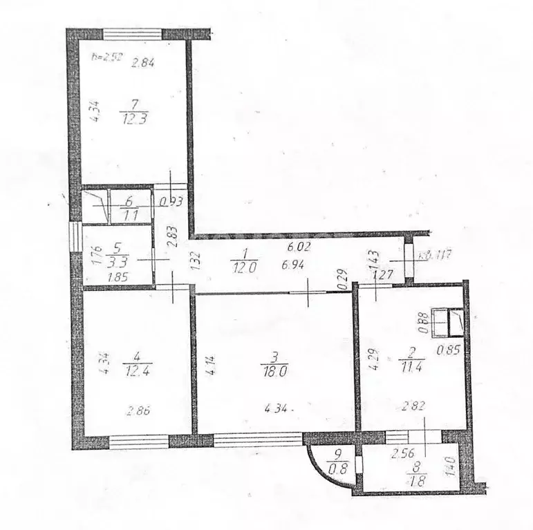
70 м2
Площадь
42 м2
Жилая
11 м2
Кухня
3
Комнаты
3
Этаж
9
Этажность

Дополнительная информация

Тип дома
панельный
Развернуть
Агент
+7 (989) 182-48-82
Начать чат с агентом

3-к кв. Московская область, Клин Клин-5 городок, ул. Центральная, 74с1 ...

Арт.Вашему вниманию предлагается светлая и уютная квартира в г. Клин ( Московская область). Планировка распашная с видом из окон на две стороны: во двор и на густой хвойный лес. Три изолированные спальни, просторная кухня с выходом на балкон, есть возможность сделать гостевой санузел. Своя управляющая компания ООО ГУЖФ , которая отлично справляется со своими обязанностями и следит за порядком в доме. Район идеально подходит для тех, кто ценит городской комфорт, но стремится жить в гармонии с природой. В пешей доступности: школа им. В.В. Талилихина, детский садик, магазины на любой вкус и кошелек, пункты выдачи, аптеки, почта, салоны красоты и многое другое, что необходимо для комфортного проживания. Остановка общественного транспорта в 8 минутах пешком, для личного авто предусмотрена наземная парковка , места есть всегда. В том числе сразу за домом расположен гаражный кооператив. Квартира в собственности в одной семье с момента постройки дома, оперативный показ, быстрый выход на сделку.

Читать полностью

    Для того, чтобы купить трехкомнатную квартиру по адресу: Клин, ул. Центральная, 74с1, позвоните по телефону +7 (989) 182-48-82. Торопитесь! Объявление №30092641904 о продаже трехкомнатной квартиры опубликовано 25 декабря 2025.

    Позвонить Написать
    7 400 000 Р95 250 $ или 81 130
    Агент
    +7 (989) 182-48-82
    Начать чат с агентом
    Похожие предложения
    3-к кв. Московская область, Клин Физкультурная ул., 2 (59.6 м) - Фото 1
    3-к кв. Московская область, Клин Физкультурная ул., 2 (59.6 м) - Фото 2
    3-комнатная квартира, общая площадь 59м², жилая 40м², кухня 10м²

    ПРЯМАЯ ПРОДАЖА Продается уютная трехкомнатная квартира в малоэтажном доме 2018 года постройки. Квартира в хорошем, жилом состоянии, есть застекленный балкон. Удобное транспортное сообщение - ст. Клин 10 мин. пешком; рядом школы, магазины. Квартира не...
    • 59 м²
    • 3-ком
    • 3/3 эт.
    • монолит
    7 500 000 Р
    Агент
    +7 (901) Показать номер
    Посмотреть контакты
    Продается студия 29.2 кв.м. - Фото 1
    Продается студия 29.2 кв.м. - Фото 2
    Продается студия 29.2 кв.м. - Фото 3
    Продается студия 29.2 кв.м. - Фото 4
    Продается студия 29.2 кв.м. - Фото 5
    Продается студия 29.2 кв.м. - Фото 6
    Продается студия 29.2 кв.м. - Фото 7
    Продается студия 29.2 кв.м. - Фото 8
    Продается студия 29.2 кв.м. - Фото 9
    Продается студия 29.2 кв.м. - Фото 10
    Продается студия 29.2 кв.м. - Фото 11
    Продается студия 29.2 кв.м. - Фото 12
    Продается студия 29.2 кв.м. - Фото 13
    Продается студия 29.2 кв.м. - Фото 14
    Продается студия 29.2 кв.м. - Фото 15
    Продается студия 29.2 кв.м. - Фото 16
    Продается студия 29.2 кв.м. - Фото 17
    Продается студия 29.2 кв.м. - Фото 18
    Продается студия 29.2 кв.м. - Фото 19
    студия, без ремонта, общая площадь 29.2м², жилая 14м², кухня 6.2м²

    Последняя готовая студия! Продаётся квартира-студия номер 737 общей площадью 29.2 кв.м. на 2-м этаже 12 этажного здания. Без отделки. с учётом скидки. Особенности квартиры: Дополнительные условия: - Возможна покупка по программе Trade-In...
    • 29.2 м²
    • студия-ком
    • 2/22 эт.
    • монолит
    7 410 726 Р
    Агент
    +7 (495) Показать номер
    Посмотреть контакты
    2-к кв. Московская область, Высоковск Клин городской округ, ул. ... - Фото 1
    2-к кв. Московская область, Высоковск Клин городской округ, ул. ... - Фото 2
    2-комнатная квартира, общая площадь 54м², жилая 41м², кухня 8м²

    57599. Ваша новая квартира ждет вас Продается эксклюзивная 2-х комнатная квартира в г. Высоковск.Тип дома: кирпичный дом, а это значит очень теплая квартира с отличнейшей шумоизоляцией.Этаж: 5-й из 6-ти.Состояние: Идеальное, новый ремонт, никто не...
    • 54 м²
    • 2-ком
    • 5/6 эт.
    7 300 000 Р
    Агент
    +7 (968) Показать номер
    Посмотреть контакты
    Продается 1-комнатная квартира - Фото 1
    Продается 1-комнатная квартира - Фото 2
    1-комнатная квартира, общая площадь 45м², жилая 21м², кухня 12м²

    Продается уютная однокомнатная квартира с современным евро ремонтом на 18 этаже монолитно-кирпичного дома, построенного в 2009 году. Просторная кухня площадью 12 м2 станет отличным местом для кулинарных экспериментов. Комната с эркером. Из окон открывается...
    • 45 м²
    • 1-ком
    • 18/19 эт.
    7 400 000 Р
    Агент
    +7 (903) Показать номер
    Посмотреть контакты
    Продается студия - Фото 1
    Продается студия - Фото 2
    общая площадь 29м², жилая 12м², кухня 7м²

    Продаётся уютная тёплая квартира.Два полноценных окна. Застекленный балкон. Удобная планировка. Чистый ухоженный подъезд. Двор без машин. Развитая инфраструктура: детские сады, школа, магазины, аптеки, кафе, салоны красоты, детские и спортивные площадки....
    • 29 м²
    • 9/25 эт.
    7 500 000 Р
    Агент
    +7 (926) Показать номер
    Посмотреть контакты

    Не нашли подходящего объявления?

    Оставьте заявку, и наши риэлторы подберут квартиру в районе Клина

    (0)