28 800 000 Р 363 900 $ или 313 600

Информация об помещении

1
Этаж

Состояние и оснащение

Количество этажей
25
Развернуть
Агент
+7 (938) 656-74-88
Начать чат с агентом

Помещение свободного назначения в Московская область, Ленинский ...

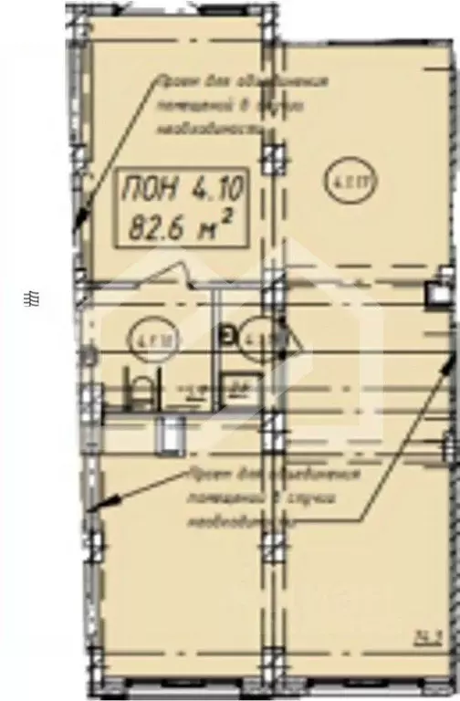
1087095. Предлагаем торговое помещение в ЖК 1-й Южный , площадью 82.6 кв. м, расположенное на первом этаже 25-этажного жилого дома. Корпус: 2. Без комиссии для покупателя.Преимущества объекта:-первая линия ул. Владимира Короткова;-ЖК состоит из 6 корпусов переменной этажности (от 24 до 25 этажей), рассчитанных на 4 774 квартиры;-20 минут пешком от ж/д станции Булатниково , 10 минут на автомобиле от станции МЦД-2 Битца ;-удобная транспортная доступность: 1.7 км до МКАД, 5.4 км до Белокаменного шоссе, 6.3 км до Каширского шоссе;-плотный жилой массив;-стабильный автомобильный и пешеходный трафик;-отлично просматривается, находится в легком доступе для потенциальных клиентов;-гибкая планировка, позволяющая адаптировать пространство под различные нужды;-современная инженерия;-витринное остекление;-возможность размещения вывески;-зона погрузки/разгрузки;-наземная парковка. Технические параметры объекта:-отдельный вход с улицы-электрическая мощность: 17 кВт.-высота потолков: 4.5 м.Свяжитесь с нами для получения дополнительной информации

Читать полностью
    Позвонить Написать
    28 800 000 Р363 900 $ или 313 600
    Агент
    +7 (938) 656-74-88
    Начать чат с агентом
    Похожие предложения
    Помещение свободного назначения в Московская область, Ленинский ... - Фото 1
    Помещение свободного назначения в Московская область, Ленинский ... - Фото 2
    1087095. Предлагаем торговое помещение в ЖК 1-й Южный , площадью 82.6 кв. м, расположенное на первом этаже 25-этажного жилого дома. Корпус: 2. Без комиссии для покупателя.Преимущества объекта:-первая линия ул. Владимира Короткова;-ЖК состоит из 6 корпусов...
    • 1/25 эт.
    28 800 000 Р
    Агент
    +7 (938) Показать номер
    Посмотреть контакты
    Помещение свободного назначения в Московская область, Ленинский ... - Фото 1
    Помещение свободного назначения в Московская область, Ленинский ... - Фото 2
    1087095-s . Предлагаем торговое помещение формата street-retail в ЖК 1-й Южный , площадью 82.6 кв. м, расположенное на первом этаже 25-этажного жилого дома. Корпус: 2. Без комиссии для покупателя.Преимущества объекта:-первая линия ул. Владимира Короткова;-ЖК...
    • 1/25 эт.
    28 800 000 Р
    Агент
    +7 (938) Показать номер
    Посмотреть контакты
    Помещение свободного назначения в Московская область, Люберцы ... - Фото 1
    Помещение свободного назначения в Московская область, Люберцы ... - Фото 2
    Номер лота: 10068 ЖК КВАДРО Россия, Московская область, городской округ Люберцы, рабочий посёлок Октябрьский, Школьная улица, Шоссе: Новорязанское Общая площадь: 140.00 м.кв. Продается готовый арендный бизнес. Коммерческое помещенение,...
    • 1/17 эт.
    30 000 000 Р
    Агент
    +7 (985) Показать номер
    Посмотреть контакты
    Помещение свободного назначения в Московская область, Люберцы ... - Фото 1
    Помещение свободного назначения в Московская область, Люберцы ... - Фото 2
    931574. Предлагаем помещение свободного назначения с арендатором Магнит у дома в ЖК Квадро , площадью 140 кв. м, расположенное на первом этаже 17-этажного жилого дома. Без комиссии для покупателя.Технические параметры объекта:-отдельный вход с улицы.-помещение...
    • 1/17 эт.
    30 000 000 Р
    Агент
    +7 (985) Показать номер
    Посмотреть контакты
    Помещение свободного назначения в Московская область, Люберцы ... - Фото 1
    Помещение свободного назначения в Московская область, Люберцы ... - Фото 2
    931574. Предлагаем помещение свободного назначения с арендатором Магнит у дома в ЖК Квадро , площадью 140 кв. м, расположенное на первом этаже 17-этажного жилого дома. Без комиссии для покупателя.Технические параметры объекта:-отдельный вход с улицы.-помещение...
    • 1/17 эт.
    30 000 000 Р
    Агент
    +7 (938) Показать номер
    Посмотреть контакты

    Не нашли подходящего объявления?

    Оставьте заявку, и наши риэлторы подберут псн в районе Ленинского

    (0)