46 080 000 Р 596 300 $ или 504 700

Информация об помещении

1
Этаж

Состояние и оснащение

Количество этажей
25
Развернуть
Агент
+7 (938) 656-74-88
Начать чат с агентом

Помещение свободного назначения в Московская область, Ленинский ...

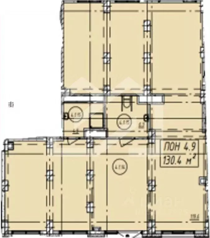
1087099-s . Предлагаем торговое помещение формата street-retail в ЖК 1-й Южный , площадью 130.4 кв. м, расположенное на первом этаже 25-этажного жилого дома. Корпус: 2. Без комиссии для покупателя.Преимущества объекта:-первая линия ул. Владимира Короткова;-ЖК состоит из 6 корпусов переменной этажности (от 24 до 25 этажей), рассчитанных на 4 774 квартир;-20 минут пешком от ж/д станции Булатниково , 10 минут на автомобиле от станции МЦД-2 Битца ;-удобная транспортная доступность: 1.7 км до МКАД, 5.4 км до Белокаменного шоссе, 6.3 км до Каширского шоссе;-плотный жилой массив;-стабильный автомобильный и пешеходный трафик;-отлично просматривается, находится в легком доступе для потенциальных клиентов;-гибкая планировка, позволяющая адаптировать пространство под различные нужды;-современная инженерия;-витринное остекление;-возможность размещения вывески;-зона погрузки/разгрузки;-наземная парковка. Технические параметры объекта:-отдельный вход с улицы-электрическая мощность: 26 кВт.-высота потолков: 4.5 м.Свяжитесь с нами для получения дополнительной информации

Читать полностью
    Позвонить Написать
    46 080 000 Р596 300 $ или 504 700
    Агент
    +7 (938) 656-74-88
    Начать чат с агентом
    Похожие предложения
    Помещение свободного назначения в Московская область, Ленинский ... - Фото 1
    Помещение свободного назначения в Московская область, Ленинский ... - Фото 2
    1087099. Предлагаем торговое помещение в ЖК 1-й Южный , площадью 130.4 кв. м, расположенное на первом этаже 25-этажного жилого дома. Корпус: 2. Без комиссии для покупателя.Преимущества объекта:-первая линия ул. Владимира Короткова;-ЖК состоит из 6 корпусов...
    • 1/25 эт.
    46 080 000 Р
    Агент
    +7 (938) Показать номер
    Посмотреть контакты
    Помещение свободного назначения в Московская область, Королев просп. ... - Фото 1
    Помещение свободного назначения в Московская область, Королев просп. ... - Фото 2
    Добрый день Продаем помещение на ЦЕНТРАЛЬНОМ проспекте города с ВИТРИННЫМИ окнами на 1 этаже и подвальное помещение для офиса или склада. ПРОДАЖА БЕЗ КОМИССИИ Описание и фотографии соответствуют действительности.ПРО ДОКУМЕНТЫ:- Собственник- ООО, учредители...
    • 1/12 эт.
    45 999 999 Р
    Агент
    +7 (939) Показать номер
    Посмотреть контакты
    Помещение свободного назначения в Московская область, Ленинский ... - Фото 1
    Помещение свободного назначения в Московская область, Ленинский ... - Фото 2
    Лот 998624 Предложение от Собственника Продаётся помещение свободного назначения 179,7 м, ЖК Пригород Лесное О помещении:Площадь — 179,7 м.Первый этаж жилого дома.Торцевое помещение с витринными окнами на три стороны.Два самостоятельных входа:— с улицы...
    • 1/17 эт.
    45 000 000 Р
    Агент
    +7 (986) Показать номер
    Посмотреть контакты
    Помещение свободного назначения в Московская область, Красногорск ... - Фото 1
    Помещение свободного назначения в Московская область, Красногорск ... - Фото 2
    В свободной продажеаспашное помещение на первой линии в ЖК Квартал Строгино Комплекс находится в непосредственной близости от МКАД со своим выездом. В 15 минутах пешком скоро откроется станция метро Липовая Роща, что позволяет охватывать большую часть...
    • 1/11 эт.
    46 500 000 Р
    Агент
    +7 (917) Показать номер
    Посмотреть контакты
    Помещение свободного назначения в Московская область, Чехов ... - Фото 1
    Помещение свободного назначения в Московская область, Чехов ... - Фото 2
    Площадь 480 м2 и цокольный этаж 100 м2.Продажа Рядом склады WB, РЦ Лента, РЦ Перекресток, РЦ Эльдорадо Отдельно стоящее здание с земельным участком 9,67 соток. в г.Чехов,село Новоселки,д 39Газовое отопление.Выделенная мощность 60 кВ.Категория земли-Земли...
    • -1/2 эт.
    45 300 000 Р
    Агент
    +7 (985) Показать номер
    Посмотреть контакты

    Не нашли подходящего объявления?

    Оставьте заявку, и наши риэлторы подберут псн в районе Ленинского

    (0)