46 080 000 Р 600 400 $ или 510 400

Информация об помещении

1
Этаж

Состояние и оснащение

Количество этажей
25
Развернуть
Агент
+7 (938) 656-74-88
Начать чат с агентом

Помещение свободного назначения в Московская область, Ленинский ...

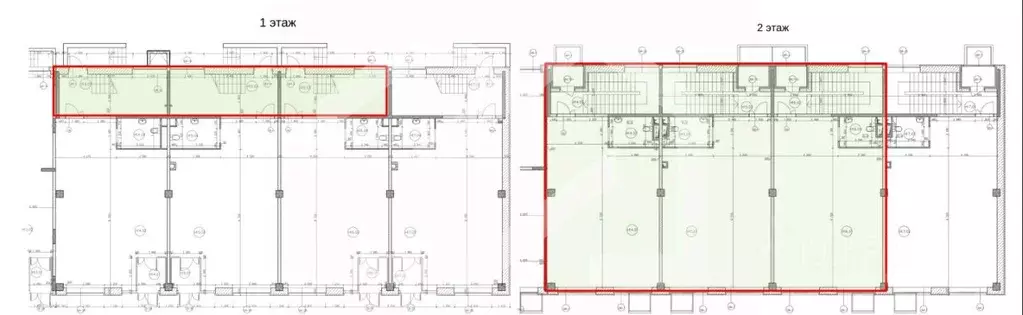
1087099-s . Предлагаем торговое помещение формата street-retail в ЖК 1-й Южный , площадью 130.4 кв. м, расположенное на первом этаже 25-этажного жилого дома. Корпус: 2. Без комиссии для покупателя.Преимущества объекта:-первая линия ул. Владимира Короткова;-ЖК состоит из 6 корпусов переменной этажности (от 24 до 25 этажей), рассчитанных на 4 774 квартир;-20 минут пешком от ж/д станции Булатниково , 10 минут на автомобиле от станции МЦД-2 Битца ;-удобная транспортная доступность: 1.7 км до МКАД, 5.4 км до Белокаменного шоссе, 6.3 км до Каширского шоссе;-плотный жилой массив;-стабильный автомобильный и пешеходный трафик;-отлично просматривается, находится в легком доступе для потенциальных клиентов;-гибкая планировка, позволяющая адаптировать пространство под различные нужды;-современная инженерия;-витринное остекление;-возможность размещения вывески;-зона погрузки/разгрузки;-наземная парковка. Технические параметры объекта:-отдельный вход с улицы-электрическая мощность: 26 кВт.-высота потолков: 4.5 м.Свяжитесь с нами для получения дополнительной информации

Читать полностью
    Позвонить Написать
    46 080 000 Р600 400 $ или 510 400
    Агент
    +7 (938) 656-74-88
    Начать чат с агентом
    Похожие предложения
    Помещение свободного назначения в Московская область, Люберцы ... - Фото 1
    Помещение свободного назначения в Московская область, Люберцы ... - Фото 2
    1054157 . Предлагаем помещение свободного назначения формата street-retail в ЖК Новотомилино , площадью 389.9 кв. м, расположенное на первом и втором этажах 17-этажного жилого дома. Корпус 2. Без комиссии для покупателя.Преимущества объекта:-первая линия...
    • 1/17 эт.
    46 788 000 Р
    Агент
    +7 (938) Показать номер
    Посмотреть контакты
    Помещение свободного назначения в Московская область, Ленинский ... - Фото 1
    Помещение свободного назначения в Московская область, Ленинский ... - Фото 2
    Лот 998624 Предложение от Собственника Продаётся помещение свободного назначения 179,7 м, ЖК Пригород Лесное О помещении:Площадь — 179,7 м.Первый этаж жилого дома.Торцевое помещение с витринными окнами на три стороны.Два самостоятельных входа:— с улицы...
    • 1/17 эт.
    45 000 000 Р
    Агент
    +7 (986) Показать номер
    Посмотреть контакты
    Помещение свободного назначения в Московская область, Ленинский ... - Фото 1
    Помещение свободного назначения в Московская область, Ленинский ... - Фото 2
    849918-gab . Предлагаем помещение свободного назначения формата street-retail с арендатором XFIT в ЖК UP квартал Римский , корпус 8, площадью 139.2 кв. м, расположенное на первом этаже 16-этажного жилого дома. Без комиссии для покупателя.Преимущества...
    • 1/2 эт.
    45 173 518 Р
    Агент
    +7 (938) Показать номер
    Посмотреть контакты
    Помещение свободного назначения в Московская область, Одинцово ... - Фото 1
    Помещение свободного назначения в Московская область, Одинцово ... - Фото 2
    757040-gab . Предлагаем помещение свободного назначения формата Street Retail с арендатором Самокат , площадью 203,1 кв. м., расположенное на первом этаже жилого дома в ЖК Сердце Одинцово , корпус Б. Без комиссии для покупателя.Преимущества объекта:-первая...
    • 1/26 эт.
    45 000 000 Р
    Агент
    +7 (938) Показать номер
    Посмотреть контакты
    Помещение свободного назначения в Московская область, Воскресенский ... - Фото 1
    Помещение свободного назначения в Московская область, Воскресенский ... - Фото 2
    678379-gab . Предлагаем отдельно стоящее здание с якорным арендатором - супермаркетом Дикси , площадью 370 кв. м., расположенное в г. Белозерский. Без комиссии для покупателя.Преимущества объекта:-первая линия ул. Молодёжная;-5 минут пешком от ж/д станции...
    • 1/1 эт.
    46 000 000 Р
    Агент
    +7 (938) Показать номер
    Посмотреть контакты

    Не нашли подходящего объявления?

    Оставьте заявку, и наши риэлторы подберут псн в районе Ленинского

    (0)