42 500 000 Р 523 500 $ или 454 500

Информация о таунхаусе

165 м2
Площадь
3
Этажность
2 cоток
Участок
Развернуть
Агент
+7 (986) 304-13-67
Начать чат с агентом

Таунхаус в Московская область, Истра муниципальный округ, д. Красный ...

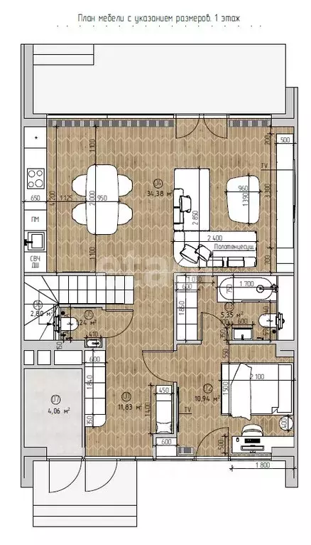
Идеальное сочетание уюта и современного дизайна Трёхэтажный таунхаус выполнен в актуальном минималистичном стиле с использованием дорогих отделочных материалов. Просторная кухня-гостиная с панорамными окнами, три уютные спальни, кабинет, гардеробные комнаты и продуманное зонирование создают комфортное пространство для жизни.Элегантная мягкая палитра интерьеров, дизайнерские светильники, европейская сантехника и кухонная техника премиум-класса (Bosch). Стеклянные перила входят в стоимость дома О доме:• Площадь: 165 м• Большой собственный участокПланировка:1 этаж: • Просторная прихожая с гардеробной • Кухня-гостиная с встроенной техникой и дизайнерской мебелью • Гостевой санузел • Отдельная постирочная2 этаж (мастер-блок): • Спальня с готовой меблировкой • Просторная гардеробная с системой хранения • Личный санузел с ванной и душевой кабиной • Дополнительное помещение (кабинет или детская)3 этаж: • Две изолированные спальни с гардеробными • Санузел с ванной и душевойПреимущества: • Полностью меблирован 1 этаж и мастер-блок • Все гардеробные оборудованы системами хранения • Кондиционеры установлены во всех комнатах • Качественный дизайнерский ремонт • Готовность 100 — можно заезжать сразу после сделки • Свой участок и парковкаСвободная продажа, один собственник.Звоните — организую показ в удобное для вас время

Читать полностью

    Для того, чтобы купить квартирутаунхаус по адресу: Красный Поселок, позвоните по телефону +7 (986) 304-13-67. Торопитесь! Объявление №50016513418 о продаже -1-комнатного таунхауса опубликовано 01 ноября 2025.

    Позвонить Написать
    42 500 000 Р523 500 $ или 454 500
    Агент
    +7 (986) 304-13-67
    Начать чат с агентом
    Похожие предложения
    Таунхаус в Московская область, Истра муниципальный округ, д. Красный ... - Фото 1
    Таунхаус в Московская область, Истра муниципальный округ, д. Красный ... - Фото 2
    3 этажа, общая площадь 135м², участок 3 сотки

    Предлагается к продаже исключительный трехэтажный кирпичный таунхаус с бетонными перекрытиями в коттеджном поселке Кембридж. Это не просто недвижимость, а готовое решение для жизни высочайшего уровня комфорта и безопасности, где продумана каждая деталь.ОСНОВНЫЕ...
    • 3 эт.
    • 135 м²
    • 3 сот.
    43 000 000 Р
    Агент
    +7 (986) Показать номер
    Посмотреть контакты
    Таунхаус в Московская область, Красногорск городской округ, д. ... - Фото 1
    Таунхаус в Московская область, Красногорск городской округ, д. ... - Фото 2
    3 этажа, общая площадь 230м², участок 3 сотки

    Арт.Продаётся стильный 3-этажный таунхаус 230 м в эко-районе Подмосковья Комфортная жизнь в окружении природы, уютный таунхаус в закрытом ЖК Эдем (д. Гаврилково). Дом готов к заселению: дизайнерский ремонт, дорогие материалы, мебель и техника — по вашему...
    • 3 эт.
    • 230 м²
    • 3 сот.
    42 000 000 Р
    Агент
    +7 (916) Показать номер
    Посмотреть контакты
    Таунхаус в Московская область, Истра муниципальный округ, д. ... - Фото 1
    Таунхаус в Московская область, Истра муниципальный округ, д. ... - Фото 2
    3 этажа, общая площадь 168м², участок 1 сотка

    169285 Futuro Park (Футуро Парк)Таунхаус с эксплуатируемой кровлей в коттеджном поселке Футуро Парк .Планировка:1 этаж: холл, кухня-гостиная, санузел, ванная, терраса;2 этаж: мастер-спальня со своим санузлом и гардеробной, 2 спальни с рабочими зонами,...
    • 3 эт.
    • 168 м²
    • 1 сот.
    43 000 000 Р
    Агент
    +7 (915) Показать номер
    Посмотреть контакты
    Таунхаус в Московская область, Истра муниципальный округ, д. ... - Фото 1
    Таунхаус в Московская область, Истра муниципальный округ, д. ... - Фото 2
    3 этажа, общая площадь 164м², участок 1 сотка

    Арт.К продаже представлен таунхаус площадью 169 м в престижном проекте Futuro Park от девелопера Villagio Estate.Ремонт выполнен на завершающей стадии — покупатель получает дом, готовый к финальной штрихам и установке мебели. Это позволяет сохранить индивидуальность...
    • 3 эт.
    • 164 м²
    • 1 сот.
    43 000 000 Р
    Агент
    +7 (923) Показать номер
    Посмотреть контакты
    Таунхаус в Московская область, Истра муниципальный округ, д. ... - Фото 1
    Таунхаус в Московская область, Истра муниципальный округ, д. ... - Фото 2
    3 этажа, общая площадь 168м², участок 1 сотка

    Номер в базе: 3818486. Продается уникальный таунхаус по индивидуальному проекту, с сауной на третьем этаже и уютной террасой на эксплуатируемой кровле ТАУНХАУС В ДИЗАЙНЕРСКОЙ ОТДЕЛКЕ ПОД КЛЮЧ.На первом этаже:-кухня-гостиная - 34,38 м2-мастер-спальня...
    • 3 эт.
    • 168 м²
    • 1 сот.
    42 900 000 Р
    Агент
    +7 (939) Показать номер
    Посмотреть контакты

    Не нашли подходящего объявления?

    Оставьте заявку, и наши риэлторы подберут таунхаус в районе Красного Поселка

    (0)