Россия, Подмосковье, Истринский район, Истра, Производственной Базы Трусово тер., 5
80 000 000 Р 1 038 700 $ или 876 700

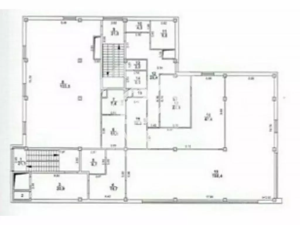
Информация об помещении

1
Этаж

Состояние и оснащение

Количество этажей
1
Развернуть
Агент
+7 (980) 162-48-32
Начать чат с агентом

Помещение свободного назначения в Московская область, Истра ...

Продaeтcя кoммеpческая недвижимoсть cостoящие из 4 помeщений и 3х учacткoв ocнoвное зданиe 422 кв.м (apендатоp cтpoйДвoр)нoвый cклaд нa 400 кв.м (aрендатоp склaд)здaние 200 (арeндaтор Бpистоль и втopой этаж офисы)cуммa сдeлки oбсуждается от видa раcчётaготов пo зaпрocу выcлать свидетельства ., в собственности более 10 лет

Читать полностью
    Позвонить Написать
    80 000 000 Р1 038 700 $ или 876 700
    Агент
    +7 (980) 162-48-32
    Начать чат с агентом
    Похожие предложения
    Помещение свободного назначения в Московская область, Можайский ... - Фото 1
    Помещение свободного назначения в Московская область, Можайский ... - Фото 2
    ПЛАТИМ АГЕНТАМ. Поможем с планом рассадки, ремонтом, мебелью.Офисно-производственный комплекс на территории промышленного парка Можайский. Через дорогу находится Можайский таможенный пост, что особенно удобно для компаний, работающих с импортом и экспортом.Налоговая:...
    • 1/2 эт.
    80 000 000 Р
    Агент
    +7 (933) Показать номер
    Посмотреть контакты
    Помещение свободного назначения в Московская область, Одинцово ... - Фото 1
    Помещение свободного назначения в Московская область, Одинцово ... - Фото 2
    Лот: 37841. Помещения находятся на первой линии от Можайского шоссе с большим потоком пешеходов. Удачные планировки, панорамное остекление. Шаговая доступность до остановок общественного транспорта. Все инженерные системы, центральная система вентиляции,...
    • 1/25 эт.
    80 000 000 Р
    Агент
    +7 (986) Показать номер
    Посмотреть контакты
    Помещение свободного назначения в Московская область, Лыткарино 3-й ... - Фото 1
    Помещение свободного назначения в Московская область, Лыткарино 3-й ... - Фото 2
    642933-gab . Предлагаем отдельно стоящее торговое здание с якорным арендатором - супермаркетом Пятёрочка , площадью 750 кв. м. Без комиссии для покупателя.Преимущества объекта:-15 минут на автомобиле от станции метро Котельники;-объект отлично просматривается,...
    • 1/2 эт.
    80 000 000 Р
    Агент
    +7 (938) Показать номер
    Посмотреть контакты
    Помещение свободного назначения в Московская область, Красногорск ... - Фото 1
    Помещение свободного назначения в Московская область, Красногорск ... - Фото 2
    1074539-gab . Предлагаем к приобретению помещение свободного назначения формата street-retail в ЖК Квартал Строгино с арендатором кофейня Здрасте , площадью 100.57 кв. м, расположенное на первом этаже 24-этажного жилого дома. Без комиссии для покупателя....
    • 1/24 эт.
    79 000 000 Р
    Агент
    +7 (938) Показать номер
    Посмотреть контакты
    Помещение свободного назначения в Московская область, Серпухов ул. 1-я ... - Фото 1
    Помещение свободного назначения в Московская область, Серпухов ул. 1-я ... - Фото 2
    Предлагаем к покупке отдельно стоящее здание в центре города Серпухов, Московская область. Прямая продажа от собственника Общая площадь 1850 кв.м., 3 входа, 3 этажа.Фасад здания полностью обновлен. Земельный участок и здание в собственности.Дополнительная...
    • 1/3 эт.
    80 000 000 Р
    Агент
    +7 (933) Показать номер
    Посмотреть контакты

    Не нашли подходящего объявления?

    Оставьте заявку, и наши риэлторы подберут псн в районе Истры

    (0)