Россия, Подмосковье, Химки, Подрезково мкр
9 971 500 Р 127 500 $ или 108 300

Информация об помещении

1
Этаж

Состояние и оснащение

Количество этажей
1
Развернуть
Агент
+7 (915) 266-41-29
Начать чат с агентом

Склад в Московская область, Химки Подрезково мкр, (5390 м)

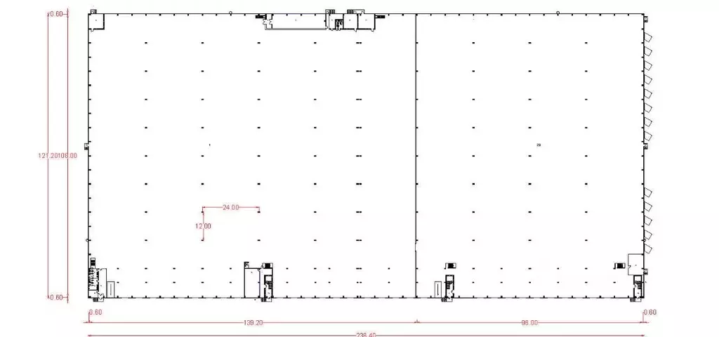
Складское помещение 5 390 кв. м в Химки Молжаниново / Валдай . Объект на стадии активного строительства, готовность ко въезду уточняется по запросу. Направление: Северо-Запад. Шоссе: Шереметьевское. Расстояние от МКАД: 7 км. Характеристики:- Класс: A; - Водоотведение: Да; - Водоснабжение: Да; - Общая площадь мезонина: 2954; - Ворота: Доки; - Тип склада: Сухой склад; - Высота потолков: 12.8 м; - Нагрузка на пол: 8 т/ кв.м; - Тип пола: Полы с антипылевым покрытием; - Уровень пола: 1.2 м; - Шаг колонн: 12x24 м. Арендная ставка:/кв. м в год. Финансовые условия: - В стоимость включено: НДС; - Оплачивается отдельно: Коммунальные услуги; - Налог: Включая НДС. Без комиссии и скрытых платежей для арендатора.Готовы оперативно организовать просмотр в удобное время, предоставить PDF-презентацию и план. Точное местоположение объекта можно найти по данным координатам: 55.957629,37.352987 ID = c_1767811

Читать полностью
    Позвонить Написать
    9 971 500 Р127 500 $ или 108 300
    Агент
    +7 (915) 266-41-29
    Начать чат с агентом
    Похожие предложения
    Склад в Московская область, Химки ш. Вашутинское, вл46 (9000 м) - Фото 1
    Склад в Московская область, Химки ш. Вашутинское, вл46 (9000 м) - Фото 2
    Уникальный номер помещения.Склад ответственного хранения класса А.Удобное расположение: 8 км. до МКАД.Добавьте объявление в избранное, чтобы не упустить выгодное предложение Склад ответственного хранения оснащен самыми современными технологиями, позволяющими...
    • 1/1 эт.
    10 044 000 Р
    Агент
    +7 (980) Показать номер
    Посмотреть контакты
    Склад в Московская область, Наро-Фоминский городской округ, д. Свитино ... - Фото 1
    Склад в Московская область, Наро-Фоминский городской округ, д. Свитино ... - Фото 2
    Складское помещение 6 588.3 кв. м в Меридиан Свитино .Направление: Юго-Запад. Шоссе: Киевское. Расстояние от МКАД: 35 км. Характеристики:- Класс: A; - Ворота: Ворота, Доки; - Тип склада: Сухой склад; - Высота потолков: 14.5 м; - Нагрузка на пол: 8 т/...
    • 1/1 эт.
    10 047 082 Р
    Агент
    +7 (915) Показать номер
    Посмотреть контакты
    Склад в Московская область, Солнечногорск городской округ, ... - Фото 1
    Склад в Московская область, Солнечногорск городской округ, ... - Фото 2
    Уникальный номер помещения.Собственник предлагает построить современные производственно-складские помещения класса А под ключ по вашему техническому заданию по модели Build-to-suit.Удобное расположение земельного участка под строительство: 35 км. до МКАД.Добавьте...
    • 1/1 эт.
    10 000 000 Р
    Агент
    +7 (980) Показать номер
    Посмотреть контакты
    Склад в Московская область, Подольск городской округ, д. Северово ул. ... - Фото 1
    Склад в Московская область, Подольск городской округ, д. Северово ул. ... - Фото 2
    Уникальный номер помещения.Склад ответственного хранения класса А.Удобное расположение: 28 км. до МКАД.Добавьте объявление в избранное, чтобы не упустить выгодное предложение Стеллажное и напольное хранение.Доковые ворота и ворота в ноль.5 тонный вилочный...
    • 1/1 эт.
    10 080 000 Р
    Агент
    +7 (980) Показать номер
    Посмотреть контакты
    Склад в Московская область, Раменский муниципальный округ, с. ... - Фото 1
    Склад в Московская область, Раменский муниципальный округ, с. ... - Фото 2
    Уникальный номер помещения.Склад ответственного хранения класса АУдобное расположение: 24 км. до МКАД.Добавьте объявление в избранное, чтобы не упустить выгодное предложение Полный комплекс услуг складской логистики, включая приемку, хранение, упаковку,...
    • 1/3 эт.
    10 080 000 Р
    Агент
    +7 (980) Показать номер
    Посмотреть контакты

    Не нашли подходящего объявления?

    Оставьте заявку, и наши риэлторы подберут склад в районе Химок

    (0)