300 000 Р 3 850 $ или 3 310

Информация об помещении

1
Этаж

Состояние и оснащение

Количество этажей
1
Развернуть
Агент
+7 (985) 813-01-54
Начать чат с агентом

Помещение свободного назначения в Московская область, Химки Сходня ...

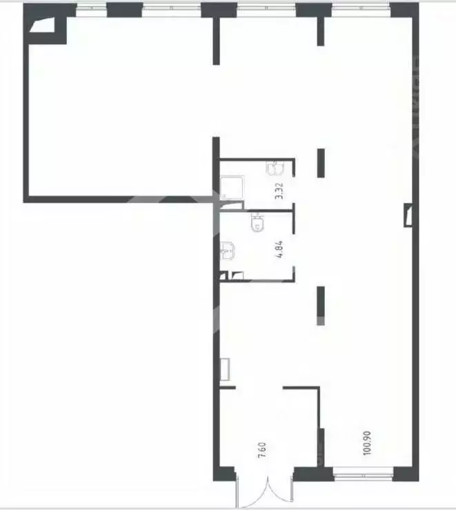
Номер лота: 12996 Россия, Московская область, городской округ Химки, Химки, Юбилейный проезд, 7с1 Шоссе: Новосходненское Общая площадь: 300.00 м.кв. Сдается в аренду нежилое помещение площадью 300 м, расположенное во втором ряду Юбилейного проезда, участок 7, в микрорайоне Сходня города Химки Московской области. Помещение находится в самом центре района Сходня, что обеспечивает удобный доступ и высокую проходимость. К помещениям подключены все центральные коммуникации: электричество (мощность уточняется по запросу), центральное водоснабжение, канализация и отопление. Предусмотрен подъезд для грузовых автомобилей, исключая крупнотоннажный транспорт (фуры). Удобство расположения дополняется развитой транспортной инфраструктурой с близостью к Ленинградскому шоссе (М-10), Новосходненскому шоссе, скоростной трассе М-11 и аэропорту Шереметьево. Население микрорайона и ближайших районов составляет около 120 000 человек. Общественный транспорт представлен автобусными остановками в шаговой доступности, железнодорожной станцией Сходня , а также ближайшими станциями метро Речной вокзал и Планерная . Любой срок договора. Этаж 1 из 1 Кол-во этажей: 1 ТИП КОММЕРЧЕСКОЙ НЕДВИЖИМОСТИ: ПОМЕЩЕНИЯ СВОБОДНОГО НАЗНАЧЕНИЯ ТИП ДОГОВОРА: прямая аренда Материал дома: М/К КОМФОРТ: Охраняемая территория, Огражденная территория

Читать полностью
    Позвонить Написать
    300 000 Р3 850 $ или 3 310
    Агент
    +7 (985) 813-01-54
    Начать чат с агентом
    Похожие предложения
    Помещение свободного назначения в Московская область, Химки ... - Фото 1
    Помещение свободного назначения в Московская область, Химки ... - Фото 2
    ==ЛОТ 222499 == ОТ СОБСТВЕННИКА, БЕЗ КОМИССИИ. В торговом центра Лига сдаются места под острова от 10 до 12 м кв. Трафик с утра до ночи нон-стоп, соседи известные бренды. Большой жилой массив. Ставка зависит от площади. Направления торговли приветствуются...
    • 1/2 эт.
    300 000 Р
    Агент
    +7 (923) Показать номер
    Посмотреть контакты
    Помещение свободного назначения в Московская область, Химки ... - Фото 1
    Помещение свободного назначения в Московская область, Химки ... - Фото 2
    Сдается на длительный период нежилое помещение на 1 этаже многоквартирного дома. Свободная планировка Два входа: Отдельный вход с улицыи и дополнительный со двора. Есть возможность организации наземной парковки перед входом. Выделенная электрическая...
    • 1/5 эт.
    300 000 Р
    Агент
    +7 (994) Показать номер
    Посмотреть контакты
    Помещение свободного назначения в Московская область, Люберцы ... - Фото 1
    Помещение свободного назначения в Московская область, Люберцы ... - Фото 2
    ==ЛОТ 223782 == ОТ СОБСТВЕННИКА, БЕЗ КОМИССИИ. Сдается помещение свободного назначения Этаж: 1. Общая площадь: 124 м2. Сдаётся в аренду торгово-офисное помещение. Все вопросы уточнять по телефону.
    • 1/17 эт.
    300 000 Р
    Агент
    +7 (923) Показать номер
    Посмотреть контакты
    Помещение свободного назначения в Московская область, Красногорск ... - Фото 1
    Помещение свободного назначения в Московская область, Красногорск ... - Фото 2
    714545-s . Предлагаем помещение свободного назначения формата Street Retail, площадью 116 кв. м., расположенное на первом этаже жилого дома в ЖК Большое Путилково . Преимущества объекта:-первая линия;-13 минут на автомобиле от станции метро Пятницкое...
    • 1/10 эт.
    300 000 Р
    Агент
    +7 (938) Показать номер
    Посмотреть контакты
    Помещение свободного назначения в Московская область, Домодедово ... - Фото 1
    Помещение свободного назначения в Московская область, Домодедово ... - Фото 2
    Арт.Без комиссии Прямой представитель собственника Помещение на закрытой охраняемой территории, доступ 24/7. Есть прилегающая территория для открытого хранения. Оборудован автоматической пожарной сигнализацией. Транспортная доступность - 10 мин остановка...
    • 1/1 эт.
    300 000 Р
    Агент
    +7 (916) Показать номер
    Посмотреть контакты

    Не нашли подходящего объявления?

    Оставьте заявку, и наши риэлторы подберут псн в районе Химок

    (0)