2 680 388 Р 34 170 $ или 28 990

Информация о помещении и здании

18
Этаж
20
Этажность
Развернуть
Агент
+7 (911) 147-09-38
Начать чат с агентом

Офис в Московская область, Химки Ленинградская ул., с25 (1739 м)

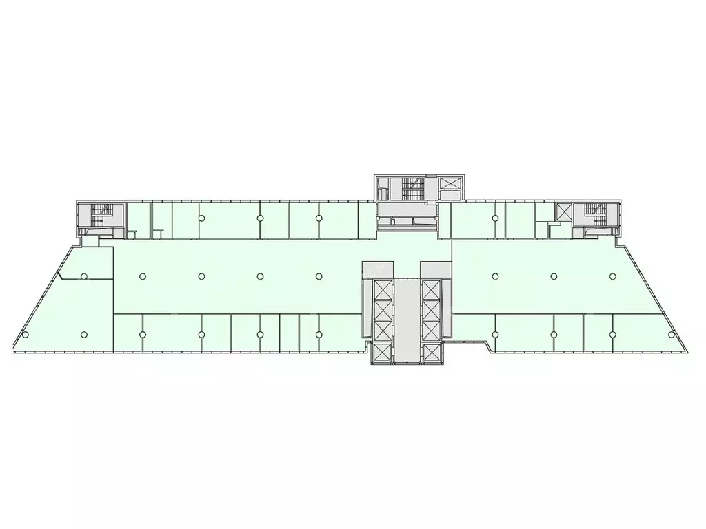
Бизнес-центр Khimki One класса AПлощадь: 1 738,6 м2Арендная ставка: 18 500,. за м2 в год включая НДССтоимость площади в месяц:,. включая НДССистема налогообложения: НДСГотовность: готово к въездуЭтаж: 18Планировка: смешаннаяНаличие с/у: , ВнутриСтатус: свободенВысота потолков, h: 3.75мХарактеристики зданияАдрес: Ленинградское ш., стр. 25, Химки, Московская областьКласс: AПлощадь здания: 44 000 м2Полезная площадь: 44 000 м2Этажность: 20Налоговая: 5047Год постройки: 2014Лифты: 13 пас.Безопасность: Охрана, Сигнализация, Видеонаблюдение, СКУД (электронные пропуска)Парковка: 336м/м, Платная открытая, На прилегающей территории, ПодземнаяИнфраструктура: Кафе/Ресторан/Столовая, Магазины, Банк/БанкоматБизнес-центр класса А (сертифицированопо стандарту LEED Gold)• Общая площадь здания: 41 632 м2• Арендопригодная площадь: 34 509 м2• Подземный и наземный паркинг• Получено Свидетельство о собственности• Централизованная система охраны:видеонаблюдение, контроль доступа,спринклерная система пожаротушения,система оповещения (Siemens) и др.Четырехтрубная система кондиционирования,центральная система вентиляции Alko• II категория электроснабжения от городскойэлектросети• 13 лифтов (ThyssenKrupp)• Высота типового этажа 3,75 м• Нагрузка на перекрытие не более 700 кг/м2• Шаг колонн 8,4 х 8,4, эффективная пла-нировка этажа

Читать полностью
    Позвонить Написать
    2 680 388 Р34 170 $ или 28 990
    Агент
    +7 (911) 147-09-38
    Начать чат с агентом
    Похожие предложения
    Офис в Московская область, Химки Ленинградская ул., с25 (2019 м) - Фото 1
    Офис в Московская область, Химки Ленинградская ул., с25 (2019 м) - Фото 2
    7-й этаж, всего 20 этажей

    Экономьте время и деньги: отрисуем планировку под вас бесплатно, с любым количеством правок. Предлагаем в аренду Офис в бизнес-центре Химки Уан по адресу: Московская область, Химки, Ленинградская улица, с25.Рабочих мест: от 253 до 448*.Площадь: 2 019...
    • 7/20 эт.
    2 799 875 Р
    Агент
    +7 (980) Показать номер
    Посмотреть контакты
    Офис в Московская область, Химки Ленинградская ул., с25 (1739 м) - Фото 1
    Офис в Московская область, Химки Ленинградская ул., с25 (1739 м) - Фото 2
    18-й этаж, всего 20 этажей

    Прямая аренда офиса от собственника без комиссии. Готов к въезду. Объявление актуально. Этаж: 18 из 20.Никаких скрытых платежей. Открыты к диалогу по условиям аренды. Сделаем рассадку бесплатно. >ID объекта - 48317. Добавьте в избранное, чтобы не потерять...
    • 18/20 эт.
    2 680 958 Р
    Агент
    +7 (980) Показать номер
    Посмотреть контакты
    Офис в Московская область, Химки Ленинградская ул., с25 (1739 м) - Фото 1
    Офис в Московская область, Химки Ленинградская ул., с25 (1739 м) - Фото 2
    18-й этаж, всего 19 этажей

    Аренда офиса от собственника 1738.63 кв.м.Подписание договора аренды напрямую с владельцем помещения. Работаем без комиссии, процентов и надбавок.В арендную ставку включено: - НДС,- эксплуат.расходы.В арендную ставку не входит: коммунальные услуги, электроэнергия,...
    • 18/19 эт.
    2 680 388 Р
    Агент
    +7 (932) Показать номер
    Посмотреть контакты
    Офис в Московская область, Химки Ленинградская ул., с25 (1739 м) - Фото 1
    Офис в Московская область, Химки Ленинградская ул., с25 (1739 м) - Фото 2
    18-й этаж, всего 19 этажей

    Офисное помещение 1 738.6 кв. м в бизнес-центре KHIMKI ONE. Характеристики:- Класс: A; - Код налоговой: 47; - Размер типового этажа: 1895; - Глубина этажа: 11; - Арендопригодная площадь: 34509; - Высота потолков: 3.75 м; - Наличие лифта: Есть; - Кол-во...
    • 18/19 эт.
    2 680 968 Р
    Агент
    +7 (915) Показать номер
    Посмотреть контакты
    Офис в Московская область, Химки Ленинградская ул., вл39с5 (1853 м) - Фото 1
    Офис в Московская область, Химки Ленинградская ул., вл39с5 (1853 м) - Фото 2
    14-й этаж, всего 15 этажей

    Экономьте время и деньги: отрисуем планировку под вас бесплатно, с любым количеством правок. Предлагаем в аренду Офис в бизнес-центре Химки Бизнес Парк по адресу: Московская область, Химки, Ленинградская улица, вл39с5.Рабочих мест: от 232 до 411*.Площадь:...
    • 14/15 эт.
    2 779 500 Р
    Агент
    +7 (980) Показать номер
    Посмотреть контакты

    Не нашли подходящего объявления?

    Оставьте заявку, и наши риэлторы подберут офис в районе Химок

    (0)