23 662 800 Р 299 000 $ или 257 700

Информация об помещении

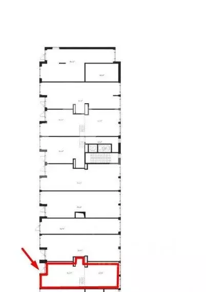
1
Этаж

Состояние и оснащение

Количество этажей
17
Развернуть
Агент
+7 (916) 235-89-20
Начать чат с агентом

Торговая площадь в Московская область, Химки Клязьма-Старбеево мкр, ...

Лот 159788.Продажа помещения свободного назначения в ЖК комфорт-класса по адресу: Мо, г. Химки, квартал Ивакино, ЖК 1-й Химкинский корпус 1.2Жилой комплекс 1-й Химкинский — один из самых масштабных проектов Первого ДСК (Группа ФСК). Это комплексное развитие территории, которое включает в себя всю необходимую для жизни инфраструктуру: 2 школы, 4 детских сада, поликлиника, спорткомплекс.ЖК 1-й Химкинский класса Комфорт -плюсасположен в Химках в 10 км от МКАД, в квартале Ивакино .Это комплекс, состоящий из 36 корпусов переменной этажности (4-17 этажей). Планируемая жилая площадь более 650 тыс тыс .кв .м.Транспортная доступность:• 10 минут на авто до станции МЦД Химки .• 15 минут на авто до станции МЦД Хлебниково .• 20 минут на авто до станции метро Физтех .Ключи 4 квартал 2026 года.Торговое окружение:В соседнем доме - магазин Магнит. Рядом, в ЖК Ивакино и Берегасположены: Пятерочка, ВкусВилл, барбершоп Чёрная кость, пункт выдачи Яндекс Маркет, зоомагазин, стоматология, магазин хозтоваров и бытовой химии.Технические характеристики:Корпус 1.2, первая линия, помещение общей площадью 76 кв. м., 1 этаж, Угловое, 2 входа Большие витринные окна. Высокие потолки: 5.65 м. - возможность устройства антресоли. Открытая планировка. Мокрая точка. Электрическая мощность 21кВт. Свободная планировка. Состояние помещения под отделку.Коммерческие условия:Стоимость объекта:Стоимость за 1 кв. м.:ДДУ

Читать полностью
    Позвонить Написать
    23 662 800 Р299 000 $ или 257 700
    Агент
    +7 (916) 235-89-20
    Начать чат с агентом
    Похожие предложения в Химках
    Торговая площадь в Московская область, Химки ул. Генерала Дьяконова, 3 ... - Фото 1
    Торговая площадь в Московская область, Химки ул. Генерала Дьяконова, 3 ... - Фото 2
    Арт.Помещение свободного назначения , 92м2ЖК RafinadМосковская область, Химки, мкр. Клязьма-Старбеево, ул. Генерала Дьяконова, 3Локация:ЖК более чем на 2500 квартир;Расположение в приватном ЖК по коцепции мини-полис;Метро Долгопрудная в пешей доступности;Расположение:Перва...
    • 1/14 эт.
    23 000 000 Р
    Агент
    +7 (923) Показать номер
    Посмотреть контакты
    Торговая площадь в Московская область, Химки Клязьма-Старбеево мкр, ... - Фото 1
    Торговая площадь в Московская область, Химки Клязьма-Старбеево мкр, ... - Фото 2
    1075904. Предлагаем помещение свободного назначения в ЖК Берег , площадью 98.1 кв. м, расположенное на первом этаже 12-этажного жилого дома. Корпус: 4. Без комиссии для покупателя.Преимущества объекта:-ЖК состоит из 10 корпусов переменной этажности (от...
    • 1/12 эт.
    24 525 000 Р
    Агент
    +7 (938) Показать номер
    Посмотреть контакты
    Торговая площадь в Московская область, Химки Клязьма-Старбеево мкр, ... - Фото 1
    Торговая площадь в Московская область, Химки Клязьма-Старбеево мкр, ... - Фото 2
    893195. Предлагаем помещение свободного назначения в ЖК Берег , площадью 94.5 кв. м, расположенное на первом этаже 12-этажного жилого дома. Корпус: 4. Без комиссии для покупателя.Преимущества объекта:-ЖК состоит из 10 корпусов переменной этажности (от...
    • 1/12 эт.
    23 625 000 Р
    Агент
    +7 (938) Показать номер
    Посмотреть контакты
    Торговая площадь в Московская область, Химки Клязьма-Старбеево мкр, ... - Фото 1
    Торговая площадь в Московская область, Химки Клязьма-Старбеево мкр, ... - Фото 2
    985256. Предлагаем помещение свободного назначения в ЖК 1-Химкинский , площадью 107.8 кв. м, расположенное на первом этаже 17-этажного жилого дома. Корпус: 1.3, 5 секция. Без комиссии для покупателя.Преимущества объекта:-первая линия;-ЖК состоит из 36...
    • 1/17 эт.
    24 031 000 Р
    Агент
    +7 (938) Показать номер
    Посмотреть контакты
    Торговая площадь в Московская область, Химки Клязьма-Старбеево мкр, ... - Фото 1
    Торговая площадь в Московская область, Химки Клязьма-Старбеево мкр, ... - Фото 2
    893198. Предлагаем помещение свободного назначения в ЖК Берег , площадью 97.4 кв. м, расположенное на первом этаже 12-этажного жилого дома. Корпус: 4. Без комиссии для покупателя.Преимущества объекта:-ЖК состоит из 10 корпусов переменной этажности (от...
    • 1/12 эт.
    24 350 000 Р
    Агент
    +7 (938) Показать номер
    Посмотреть контакты

    Не нашли подходящего объявления?

    Оставьте заявку, и наши риэлторы подберут торговое помещение в районе Химок

    (0)