24 350 000 Р 317 700 $ или 268 800

Информация об помещении

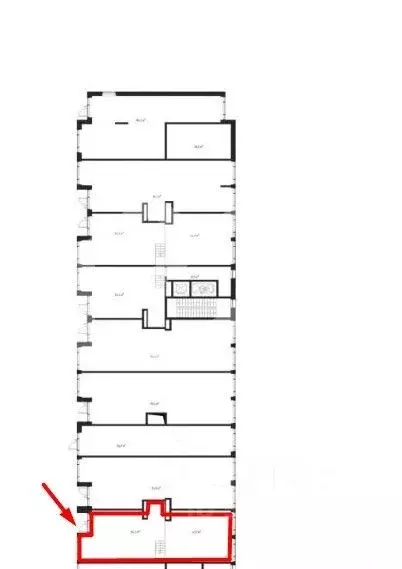
1
Этаж

Состояние и оснащение

Количество этажей
12
Развернуть
Агент
+7 (938) 656-74-88
Начать чат с агентом

Торговая площадь в Московская область, Химки Клязьма-Старбеево мкр, ...

893198-f . Предлагаем помещение свободного назначения формата street-retail в ЖК Берег , площадью 97.4 кв. м, расположенное на первом этаже 12-этажного жилого дома. Корпус: 4. Без комиссии для покупателя.Преимущества объекта:-ЖК состоит из 10 корпусов переменной этажности (от 7 до 12 этажей), рассчитанных на 1 189 квартир;-20 минут на автомобиле от станции МЦД-1 Хлебниково ;-удобная транспортная доступность: 2.6 км до Вашутинского шоссе, 4 км до Старошереметьевского шоссе, 4.5 км до Нового шоссе, 5.5 км до Шереметьевского шоссе, 6 км до Международного шоссе;-плотный жилой массив;-развитая инфраструктура района;-высокий автомобильный и пешеходный трафик;-отлично просматривается, находится в легком доступе для потенциальных клиентов;-гибкая планировка, позволяющая адаптировать пространство под различные нужды;-витринное остекление;-возможность размещения вывески;-наземная парковка;-рядом остановка общественного транспорта.Технические параметры объекта:-отдельный вход с улицы.-электрическая мощность: 20 кВт.-высота потолков: 4.25 м.Срок сдачи 2 кв. 2027.Свяжитесь с нами для получения дополнительной информации

Читать полностью
    Позвонить Написать
    24 350 000 Р317 700 $ или 268 800
    Агент
    +7 (938) 656-74-88
    Начать чат с агентом
    Похожие предложения в Химках
    Торговая площадь в Московская область, Химки Клязьма-Старбеево мкр, ... - Фото 1
    Торговая площадь в Московская область, Химки Клязьма-Старбеево мкр, ... - Фото 2
    893198-f . Предлагаем помещение свободного назначения формата street-retail в ЖК Берег , площадью 97.4 кв. м, расположенное на первом этаже 12-этажного жилого дома. Корпус: 4. Без комиссии для покупателя.Преимущества объекта:-ЖК состоит из 10 корпусов...
    • 1/12 эт.
    24 350 000 Р
    Агент
    +7 (938) Показать номер
    Посмотреть контакты
    Торговая площадь в Московская область, Химки Клязьма-Старбеево мкр, ... - Фото 1
    Торговая площадь в Московская область, Химки Клязьма-Старбеево мкр, ... - Фото 2
    893192-f . Предлагаем помещение свободного назначения формата street-retail в ЖК Берег , площадью 84.2 кв. м, расположенное на первом этаже 12-этажного жилого дома. Корпус: 4. Без комиссии для покупателя.Преимущества объекта:-ЖК состоит из 10 корпусов...
    • 1/12 эт.
    23 576 000 Р
    Агент
    +7 (938) Показать номер
    Посмотреть контакты
    Торговая площадь в Московская область, Химки Клязьма-Старбеево мкр, ... - Фото 1
    Торговая площадь в Московская область, Химки Клязьма-Старбеево мкр, ... - Фото 2
    985256-f . Предлагаем помещение свободного назначения формата street-retail в ЖК 1-Химкинский , площадью 107.8 кв. м, расположенное на первом этаже 17-этажного жилого дома. Корпус: 1.3, 5 секция. Без комиссии для покупателя.Преимущества объекта:-первая...
    • 1/17 эт.
    24 031 000 Р
    Агент
    +7 (938) Показать номер
    Посмотреть контакты
    Торговая площадь в Московская область, Химки Клязьма-Старбеево мкр, ... - Фото 1
    Торговая площадь в Московская область, Химки Клязьма-Старбеево мкр, ... - Фото 2
    893194-f . Предлагаем помещение свободного назначения формата street-retail в ЖК Берег , площадью 94.3 кв. м, расположенное на первом этаже 12-этажного жилого дома. Корпус: 4. Без комиссии для покупателя.Преимущества объекта:-ЖК состоит из 10 корпусов...
    • 1/12 эт.
    23 575 000 Р
    Агент
    +7 (938) Показать номер
    Посмотреть контакты
    Торговая площадь в Московская область, Химки Клязьма-Старбеево мкр, ... - Фото 1
    Торговая площадь в Московская область, Химки Клязьма-Старбеево мкр, ... - Фото 2
    1121234-f . Предлагаем помещение свободного назначения формата street-retail в ЖК 1-й Химкинский , площадью 46.6 кв. м, расположенное на первом этаже 17-этажного жилого дома. Так как корректный адрес отсутствует на Яндекс.Картах, введен ближайший. Без...
    • 1/18 эт.
    25 000 000 Р
    Агент
    +7 (938) Показать номер
    Посмотреть контакты

    Не нашли подходящего объявления?

    Оставьте заявку, и наши риэлторы подберут торговое помещение в районе Химок

    (0)