55 000 000 Р 689 800 $ или 596 600

Информация об помещении

1
Этаж

Состояние и оснащение

Количество этажей
17
Развернуть
Агент
+7 (916) 603-02-04
Начать чат с агентом

Торговая площадь в Московская область, Химки Клязьма-Старбеево мкр, ...

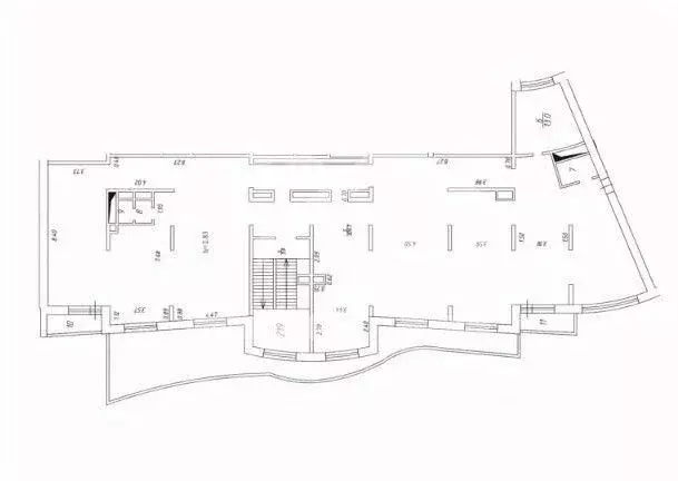
Продажа торгового помещения 167 м2 по адресу мкр. Клязьма-Старбеево, квартал Ивакино, корпус 1 (25 минут транспортом от метро Ховрино). Помещение 167 м2, располагается на 1 этаже, открытая планировка, два отдельных входа, высота потолка 4 м, витринные окна по фасаду. Электрическая мощность 20 кВт. Парковка перед фасадом. Место для размещения рекламы.Помещение располагается в новом строящемся жилом комплексе Ивакино . ЖК рассчитан на 18 тыс. жителей. Дом введён в эксплуатацию. Идет заселение, рядом уже открылись сетевые арендаторы такие как Магнит , аптека Горздрав , Пятёрочка .ЖК Квартал Ивакино — это уютные дома и дворы без машин в тихом районе Химок. Близость к реке Клязьме находит отражение в организации мест тихого отдыха, дизайне фасадов, сохранении естественной зелени.Арендаторы: магазин Улыбка радуги . Договор аренды на 5 лет от 01.12.25 года. Первые 6 месяцев, 6 месяцев, 12 месяцев, 12 месяцев. Безусловная индексация 5 .Стоимость продажи .. Без комиссии.

Читать полностью
    Позвонить Написать
    55 000 000 Р689 800 $ или 596 600
    Агент
    +7 (916) 603-02-04
    Начать чат с агентом
    Похожие предложения
    Предлагаем выгодную инвестицию в коммерческую недвижимость - Фото 1
    Предлагаем выгодную инвестицию в коммерческую недвижимость - Фото 2
    Предлагаем выгодную инвестицию в коммерческую недвижимость - Фото 3
    Предлагаем выгодную инвестицию в коммерческую недвижимость - Фото 4
    Предлагаем выгодную инвестицию в коммерческую недвижимость - Фото 5
    Предлагаем выгодную инвестицию в коммерческую недвижимость - Фото 6
    Предлагаем выгодную инвестицию в коммерческую недвижимость - Фото 7
    Предлагаем выгодную инвестицию в коммерческую недвижимость - Фото 8
    Предлагаем выгодную инвестицию в коммерческую недвижимость - Фото 9
    Предлагаем выгодную инвестицию в коммерческую недвижимость - Фото 10
    Предлагаем выгодную инвестицию в коммерческую недвижимость - Фото 11
    Предлагаем выгодную инвестицию в коммерческую недвижимость - Фото 12
    Предлагаем выгодную инвестицию в коммерческую недвижимость - Фото 13
    Предлагаем выгодную инвестицию в коммерческую недвижимость - Фото 14
    Предлагаем выгодную инвестицию в коммерческую недвижимость - Фото 15
    Предлагаем выгодную инвестицию в коммерческую недвижимость - Фото 16
    Предлагаем выгодную инвестицию в коммерческую недвижимость - Фото 17
    Предлагаем выгодную инвестицию в коммерческую недвижимость - Фото 18
    Предлагаем выгодную инвестицию в коммерческую недвижимость - Фото 19
    Предлагаем выгодную инвестицию в коммерческую недвижимость - Фото 20
    реализуемая площадь 1000м²

    Лот:. Предлагаем выгодную инвестицию в коммерческую недвижимость. В 19-ти км от МКАД, в 2- км. от Минского ш, в пешей доступности от ж. д. станции «Кокошкино» (Москва) продается отдельно стоящее здание, площадью 1000 кв.м., с земельным участком 744 кв.м....
    • 1 000 м²
    55 000 000 Р
    Агент
    +7 (977) Показать номер
    Посмотреть контакты
    Торговая площадь в Московская область, Красногорск бул. Павшинский, 34 ... - Фото 1
    Торговая площадь в Московская область, Красногорск бул. Павшинский, 34 ... - Фото 2
    692576. Предлагаем к приобретению двухуровневое помещение свободного назначения, площадью 510 кв. м., расположенное на первом этаже жилого дома в ЖК Красногорье делюкс . Без комиссии для покупателя.Преимущества объекта: -комплекс состоит из 10 корпусов...
    • 1/9 эт.
    55 000 000 Р
    Агент
    +7 (938) Показать номер
    Посмотреть контакты
    Торговая площадь в Московская область, Люберцы ул. Рождественская, 12 ... - Фото 1
    Торговая площадь в Московская область, Люберцы ул. Рождественская, 12 ... - Фото 2
    1074717. Предлагаем к приобретению помещение под автомойку, площадью 473,4 кв. м., расположенное на -1 этаже жилого дома в ЖК 1-й Лермонтовский . Корпус 3.2. Без комиссии для покупателя. Преимущества объекта:-ЖК состоит из 5 многосекционных корпусов...
    • -1/17 эт.
    54 441 000 Р
    Агент
    +7 (938) Показать номер
    Посмотреть контакты
    Торговая площадь в Московская область, Красногорск бул. Павшинский, 34 ... - Фото 1
    Торговая площадь в Московская область, Красногорск бул. Павшинский, 34 ... - Фото 2
    692576. Предлагаем к приобретению двухуровневое помещение свободного назначения, площадью 510 кв. м., расположенное на первом этаже жилого дома в ЖК Красногорье делюкс . Без комиссии для покупателя.Преимущества объекта: -комплекс состоит из 10 корпусов...
    • 1/9 эт.
    55 000 000 Р
    Агент
    +7 (938) Показать номер
    Посмотреть контакты
    Торговая площадь в Московская область, Балашиха 1 Мая мкр, 11А (380 м) - Фото 1
    Торговая площадь в Московская область, Балашиха 1 Мая мкр, 11А (380 м) - Фото 2
    Продажа торгового помещения 380 м2 в г. Балашиха, ул. 1 Мая, д 11А (10 минут транспортом от м. Щелковская). 1 линия домов.Земля и здание в собственности. Центральные коммуникации, мощность 50 кВт (возможность увеличения до 100 кВт). Капитальное строение...
    • 1/2 эт.
    55 000 000 Р
    Агент
    +7 (916) Показать номер
    Посмотреть контакты

    Не нашли подходящего объявления?

    Оставьте заявку, и наши риэлторы подберут торговое помещение в районе Химок

    (0)