19 000 000 Р 234 400 $ или 205 100

Информация об помещении

1
Этаж

Состояние и оснащение

Количество этажей
17
Развернуть
Агент
+7 (980) 287-93-78
Начать чат с агентом

Торговая площадь в Московская область, Химки Клязьма-Старбеево мкр, ...

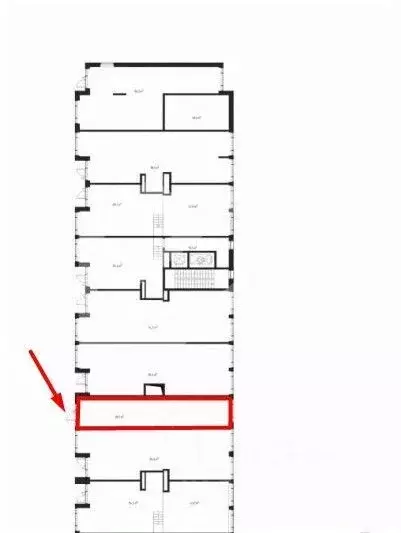
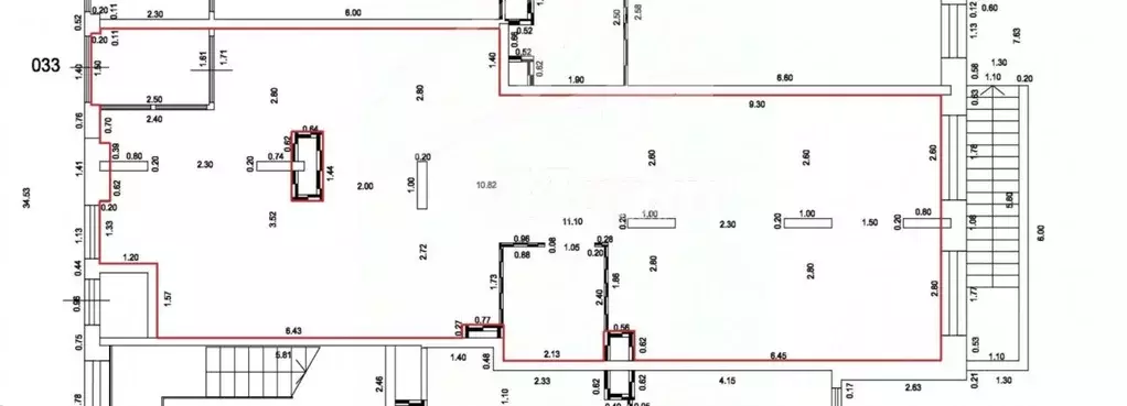
Арт.Продаётся помещение свободного назначения 83,3 м в ЖК Квартал Ивакино . Помещение в самом центре микрорайона с остеклением с трех сторон. Рядом с объектов остановка общественного транспорта. Количество квартир в 1 очереди 2 279 квартир. Электрическая мощность 16 кВт. Звоните для получения презентации и более подробной информации

Читать полностью
    Позвонить Написать
    19 000 000 Р234 400 $ или 205 100
    Агент
    +7 (980) 287-93-78
    Начать чат с агентом
    Похожие предложения
    Торговая площадь в Московская область, Химки Клязьма-Старбеево мкр, ... - Фото 1
    Торговая площадь в Московская область, Химки Клязьма-Старбеево мкр, ... - Фото 2
    Лот 157062.Предлагается в продажу торговое помещение в монолитном 17и этажном жилом доме по адресу: Московская обл., Химки, мкр. Клязьма-Старбеево, квартал Международный, ул. Олимпийская (ЖК Квартал Ивакино корп.1).Дорога до МКАД займет 15 минут на...
    • 1/17 эт.
    18 500 000 Р
    Агент
    +7 (916) Показать номер
    Посмотреть контакты
    Торговая площадь в Московская область, Химки Клязьма-Старбеево мкр, ... - Фото 1
    Торговая площадь в Московская область, Химки Клязьма-Старбеево мкр, ... - Фото 2
    893185. Предлагаем помещение свободного назначения в ЖК Берег , площадью 58.9 кв. м, расположенное на первом этаже 12-этажного жилого дома. Корпус: 4. Без комиссии для покупателя.Преимущества объекта:-ЖК состоит из 10 корпусов переменной этажности (от...
    • 1/12 эт.
    18 848 000 Р
    Агент
    +7 (938) Показать номер
    Посмотреть контакты
    Продажа торгового помещения, Островцы, Раменский район, Летчика ... - Фото 1
    Продажа торгового помещения, Островцы, Раменский район, Летчика ... - Фото 2
    Продажа торгового помещения, Островцы, Раменский район, Летчика ... - Фото 3
    Продажа торгового помещения, Островцы, Раменский район, Летчика ... - Фото 4
    общая площадь 58.4м², реализуемая площадь 58.4м²

    МО, Раменский г.о., дер. Островцы, ул. Летчика Волчкова, д.4. Большой новый ЖК. Продажа помещения свободного назначения, расположенного на 1-м этаже жилого 17-ти этажного дома. Общая площадь 58,4 кв.м. Открытая планировка, высокие потолки 3,5 м, электрическая...
    • 58.4 м²
    • 1/17 эт.
    19 900 000 Р
    Агент
    +7 (903) Показать номер
    Посмотреть контакты
    Торговая площадь в Московская область, Видное бул. Зеленые аллеи, 18 ... - Фото 1
    Торговая площадь в Московская область, Видное бул. Зеленые аллеи, 18 ... - Фото 2
    1134437. Предлагаем помещение свободного назначения, площадью 106.4 кв. м, расположенное на первом этаже 17-этажного жилого дома. Без комиссии для покупателя.Преимущества объекта:-ЖК состоит из 14 корпусов переменной этажности (от 13 до 17 этажей), рассчитанных...
    • 1/17 эт.
    18 088 000 Р
    Агент
    +7 (938) Показать номер
    Посмотреть контакты
    Торговая площадь в Московская область, Люберцы городской округ, ... - Фото 1
    Торговая площадь в Московская область, Люберцы городской округ, ... - Фото 2
    Код объекта: 1235424.Готовый арендный бизнес в Томилино Надежный и стабильный арендатор. Высокий рейтинг на Яндекс-картах. Договор аренды заключен на выгодных условиях с ежегодной индексацией.Окупаемость проекта - 8 ЛЕТДоходность 10,4 ПОМЕЩЕНИЕ:Общая...
    • 1/17 эт.
    19 490 000 Р
    Агент
    +7 (915) Показать номер
    Посмотреть контакты

    Не нашли подходящего объявления?

    Оставьте заявку, и наши риэлторы подберут торговое помещение в районе Химок

    (0)