24 031 000 Р 306 000 $ или 261 700

Информация об помещении

1
Этаж

Состояние и оснащение

Количество этажей
17
Развернуть
Агент
+7 (938) 656-74-88
Начать чат с агентом

Торговая площадь в Московская область, Химки Клязьма-Старбеево мкр, ...

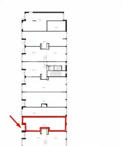
985256 . Предлагаем помещение свободного назначения формата street-retail в ЖК 1-Химкинский , площадью 107.8 кв. м, расположенное на первом этаже 17-этажного жилого дома. Корпус: 1.3, 5 секция. Без комиссии для покупателя.Преимущества объекта:-первая линия;-ЖК состоит из 36 корпусов переменной этажности (от 4 до 17 этажей), рассчитанных на 1 855 квартир;-шаговая доступность от станции МЦД-3 Химки (12 минут пешком);-удобная транспортная доступность: 3 км до Вашутинского шоссе, 4 км до Старошереметьевского шоссе, 4.5 км до Нового шоссе, 6.2 км до Международного шоссе;-плотный жилой массив;-развитая инфраструктура района;-высокий автомобильный и пешеходный трафик;-отлично просматривается, находится в легком доступе для потенциальных клиентов;-гибкая планировка, позволяющая адаптировать пространство под различные нужды;-витринное остекление;-возможность размещения вывески;-наземная парковка.Технические параметры объекта:-отдельный вход с улицы.-электрическая мощность: 9.2 кВт.-высота потолков: 5.5 м.Ввод объекта в эксплуатацию - IV квартал 2026 года.Свяжитесь с нами для получения дополнительной информации

Читать полностью
    Позвонить Написать
    24 031 000 Р306 000 $ или 261 700
    Агент
    +7 (938) 656-74-88
    Начать чат с агентом
    Похожие предложения
    Торговая площадь в Московская область, Химки Клязьма-Старбеево мкр, ... - Фото 1
    Торговая площадь в Московская область, Химки Клязьма-Старбеево мкр, ... - Фото 2
    Лот 156262.Продажа помещения свободного назначения в ЖК комфорт-класса по адресу: Мо, г. Химки, квартал Ивакино, ЖК 1-й Химкинский корпус 1.3Жилой комплекс 1-й Химкинский — один из самых масштабных проектов Первого ДСК (Группа ФСК). Это комплексное...
    • 1/17 эт.
    24 031 000 Р
    Агент
    +7 (985) Показать номер
    Посмотреть контакты
    Торговая площадь в Московская область, Химки Клязьма-Старбеево мкр, ... - Фото 1
    Торговая площадь в Московская область, Химки Клязьма-Старбеево мкр, ... - Фото 2
    1075904 . Предлагаем помещение свободного назначения формата street-retail в ЖК Берег , площадью 98.1 кв. м, расположенное на первом этаже 12-этажного жилого дома. Корпус: 4. Без комиссии для покупателя.Преимущества объекта:-ЖК состоит из 10 корпусов...
    • 1/12 эт.
    24 525 000 Р
    Агент
    +7 (938) Показать номер
    Посмотреть контакты
    Торговая площадь в Московская область, Химки Клязьма-Старбеево мкр, ... - Фото 1
    Торговая площадь в Московская область, Химки Клязьма-Старбеево мкр, ... - Фото 2
    893192 . Предлагаем помещение свободного назначения формата street-retail в ЖК Берег , площадью 84.2 кв. м, расположенное на первом этаже 12-этажного жилого дома. Корпус: 4. Без комиссии для покупателя.Преимущества объекта:-ЖК состоит из 10 корпусов...
    • 1/12 эт.
    23 576 000 Р
    Агент
    +7 (938) Показать номер
    Посмотреть контакты
    Торговая площадь в Московская область, Химки Клязьма-Старбеево мкр, ... - Фото 1
    Торговая площадь в Московская область, Химки Клязьма-Старбеево мкр, ... - Фото 2
    893195 . Предлагаем помещение свободного назначения формата street-retail в ЖК Берег , площадью 94.5 кв. м, расположенное на первом этаже 12-этажного жилого дома. Корпус: 4. Без комиссии для покупателя.Преимущества объекта:-ЖК состоит из 10 корпусов...
    • 1/12 эт.
    23 625 000 Р
    Агент
    +7 (938) Показать номер
    Посмотреть контакты
    Торговая площадь в Московская область, Химки Клязьма-Старбеево мкр, ... - Фото 1
    Торговая площадь в Московская область, Химки Клязьма-Старбеево мкр, ... - Фото 2
    893196 . Предлагаем помещение свободного назначения формата street-retail в ЖК Берег , площадью 94.5 кв. м, расположенное на первом этаже 12-этажного жилого дома. Корпус: 4. Без комиссии для покупателя.Преимущества объекта:-ЖК состоит из 10 корпусов...
    • 1/12 эт.
    23 625 000 Р
    Агент
    +7 (938) Показать номер
    Посмотреть контакты

    Не нашли подходящего объявления?

    Оставьте заявку, и наши риэлторы подберут торговое помещение в районе Химок

    (0)