Россия, Подмосковье, Химки, Вашутинское шоссе, 10А
211 056 007 Р

Информация об помещении

5588.0 м2
Площадь

Состояние и оснащение

Общая площадь складского комплекса, м2
5588.0
Количество этажей
1
Развернуть
Окулов Андрей Иванович
PRO
+7 (922) 204-22-27
Профессионал AFY.ru с 2013 г.
Начать чат с агентом

Продажа ПСН, Химки, Вашутинское шоссе

.
Производственный комплекс 5 588 м (главный цех 4 528 м, склад 535 м, цех металлоконструкций 575 м) на участках 16 722 м по адресу Московская область, г. Химки, Вашутинское шоссе, д. 10А.

Промышленная недвижимость Подмосковье — крупная база рядом с Ленинградским шоссе с ограничениями ВСM-1.

Преимущества расположения
Вашутинское шоссе — промзона Химок в 10 км от МКАД, рядом М-10 и М-11 Москва-СПб.
Северо-западная промкоммунальная зона — развитая логистика для производства и складов.
Близость к терминалам и ж/д — идеально для металлообработки и логистики.

Характеристики комплекса
Главный корпус с АБК 4 528 м — производство + офисы.

Цех металлоконструкций 575 м, склад 535 м, помещение 310 м.

Участки: 12 248 м + 1 851 м + 1 094 м + 529 м = 16 722 м.

Доп.объекты: резервуар 21 м, здание 51 м.

Юридические ограничения
Внимание! Участки в зоне КУРТ-48 (высокоскоростная магистраль РЖД):

Участок 12 248 м: 36,4% (4 459 м) под ВСM-1

Участок 1 851 м: 31,4% (344 м) под ВСM-1

Участок 1 094 м: полное ограничение строительства

Риски: Главный корпус (4 528 м) — предмет спора о самовольной постройке.

Инвестиционный потенциал
Высокий риск/высокая доходность — цена от при рыночной 200+ млн.
Возможна реставрация прав или компенсация от РЖД при изъятии.
Логистическое расположение сохраняет ценность оставшихся территорий.

Объект для опытных инвесторов с юридической поддержкой.

Читать полностью

    Для того, чтобы купить ПСН площадью 5588 кв. метров по адресу: Химки, Вашутинское шоссе, 10А, позвоните по телефону +7 (922) 204-22-27. Торопитесь! Объявление №901105417 о продаже ПСН площадью 5588 кв. метров опубликовано Вчера.

    Позвонить Написать
    211 056 007 Р
    Окулов Андрей Иванович
    PRO
    +7 (922) 204-22-27
    Профессионал AFY.ru с 2013 г.
    Начать чат с агентом
    Похожие предложения
    Помещение свободного назначения в Московская область, Химки Куркинское ... - Фото 1
    Помещение свободного назначения в Московская область, Химки Куркинское ... - Фото 2
    658538. Предлагаем офисное помещение площадью 1 427 кв. м, расположенное на 8 этаже БЦ Аэро Сити Преимущества объекта:- Бизнес-центр класса А- Шаговая доступность от станции МЦД Химки (20 минут пешком)- Этаж: 8- Помещение предлагается в состоянии под...
    • 8/27 эт.
    206 015 990 Р
    Агент
    +7 (938) Показать номер
    Посмотреть контакты
    Помещение свободного назначения в Московская область, Химки Куркинское ... - Фото 1
    Помещение свободного назначения в Московская область, Химки Куркинское ... - Фото 2
    658538. Предлагаем офисное помещение площадью 1 427 кв. м, расположенное на 8 этаже БЦ Аэро Сити Преимущества объекта:- Бизнес-центр класса А- Шаговая доступность от станции МЦД Химки (20 минут пешком)- Этаж: 8- Помещение предлагается в состоянии под...
    • 8/27 эт.
    206 015 990 Р
    Агент
    +7 (938) Показать номер
    Посмотреть контакты
    Помещение свободного назначения в Московская область, Воскресенский ... - Фото 1
    Помещение свободного назначения в Московская область, Воскресенский ... - Фото 2
    1119523. Предлагаем отдельно стоящее здание с арендаторами, площадью 1870 кв. м. Без комиссии для покупателя.Преимущества объекта:-первая линия ул. Юбилейная;-13 минут пешком от ж/д станции Белоозёрская ;-плотный жилой массив;-развитая инфраструктура...
    • 1/2 эт.
    215 000 000 Р
    Агент
    +7 (938) Показать номер
    Посмотреть контакты
    Помещение свободного назначения в Московская область, Красногорск ул. ... - Фото 1
    Помещение свободного назначения в Московская область, Красногорск ул. ... - Фото 2
    1068232. Предлагаем помещение свободного назначения с арендатором Магнит в ЖК Sky Sputnik , площадью 305.8 кв. м, расположенное на первом этаже 31-этажного жилого дома. Стилобатная часть. Без комиссии для покупателя.Преимущества объекта:-первая линия...
    • 1/31 эт.
    220 000 000 Р
    Агент
    +7 (938) Показать номер
    Посмотреть контакты
    Помещение свободного назначения в Московская область, Апрелевка ... - Фото 1
    Помещение свободного назначения в Московская область, Апрелевка ... - Фото 2
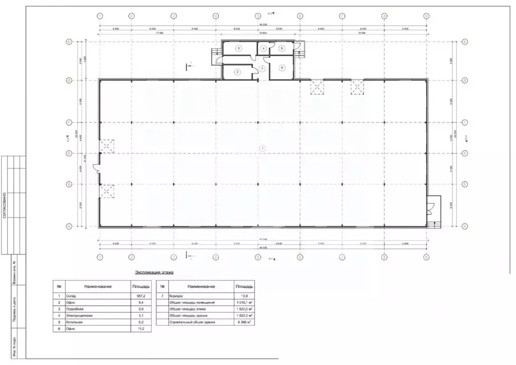
    1099653. Предлагаем в продажу современный теплый склад общей площадью 1 018 кв. м. в Апрелевке.Преимущества:Удобная транспортная доступность 28 км от МКАД по Киевскому шоссе.Близость к ЦКАД и Новой Москве.Локация: Апрелевка, удобный подъезд с Киевского...
    • 1/1 эт.
    220 000 000 Р
    Агент
    +7 (938) Показать номер
    Посмотреть контакты

    Не нашли подходящего объявления?

    Оставьте заявку, и наши риэлторы подберут псн в районе Химок

    (0)