112 000 000 Р 1 495 700 $ или 1 276 000

Информация об помещении

1
Этаж

Состояние и оснащение

Количество этажей
1
Развернуть
Агент
+7 (938) 656-74-88
Начать чат с агентом

Помещение свободного назначения в Московская область, Химки Подрезково ...

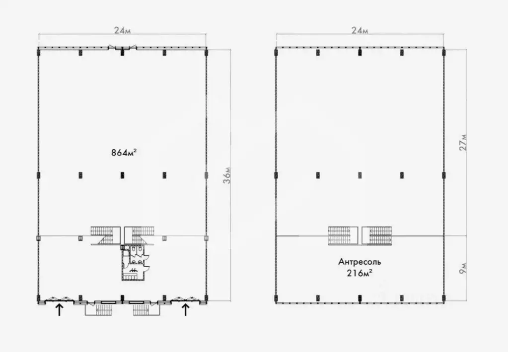
1098288. Предлагается помещение общей площадью 700 кв. м. в многофункциональном комплексе формата Лайт Индастриал в г.о. Химки.Преимущества:Первая линия Новосходненского шоссе.Удобная транспортная доступность.Вблизи Ленинградское шоссе, МКАД и аэропорт Шереметьево.Развитая инфраструктура.Введен в эксплуатацию.Бетонные полы.Рабочее пространство без колонн.Доковые ворота с докшелтерами и доклевеллерами.Огороженная территория.Парковка перед зданием.Рядом остановки общественного транспорта.Технические характеристики:Общая площадь: 700 кв. м, из них:складская площадь: 504 кв. м;площадь мезонина: 196 кв. м.Рабочая высота потолка: 10 метров, до мезонина - 5 метров.Количество ворот: 2 шт.Выделенная электрическая мощность: 75 кВт, с возможностью увеличения.Нагрузка на пол: 5 т/кв. м.Возможна покупка большей части здания площадью 801 кв. м.Так как корректный адрес отсутствует на Яндекс.Картах, введен ориентировочный.

Читать полностью
    Позвонить Написать
    112 000 000 Р1 495 700 $ или 1 276 000
    Агент
    +7 (938) 656-74-88
    Начать чат с агентом
    Похожие предложения
    Помещение свободного назначения в Московская область, Химки Подрезково ... - Фото 1
    Помещение свободного назначения в Московская область, Химки Подрезково ... - Фото 2
    1098288. Предлагается помещение общей площадью 665 кв. м. в многофункциональном комплексе формата Лайт Индастриал в г.о. Химки.Преимущества:Первая линия Новосходненского шоссе.Удобная транспортная доступность.Вблизи Ленинградское шоссе, МКАД и аэропорт...
    • 1/1 эт.
    112 000 000 Р
    Агент
    +7 (938) Показать номер
    Посмотреть контакты
    Помещение свободного назначения в Московская область, Химки ул. ... - Фото 1
    Помещение свободного назначения в Московская область, Химки ул. ... - Фото 2
    Лот 755707 Предложение от Собственника Предлагается на продажу помещение под офис площадью 500.00 м2. Помещение расположено у г Химки. 13 этаж. Система кондиционирования. Пропускная система. Есть круглосуточный доступ. Планировка - открытая. Есть лифт....
    • 13/22 эт.
    113 000 000 Р
    Агент
    +7 (986) Показать номер
    Посмотреть контакты
    Помещение свободного назначения в Московская область, Подольск ... - Фото 1
    Помещение свободного назначения в Московская область, Подольск ... - Фото 2
    1150788. Предлагается складское помещение общей площадью 771 кв. м. в производственно-складском комплекс формата Лайт Индастриал на Симферопольском шоссе.Преимущества:1 км до Симферопольского ш., 3 км до Варшавского ш., 7 км до Каширского ш.Удобный выезд...
    • 1/1 эт.
    104 085 000 Р
    Агент
    +7 (938) Показать номер
    Посмотреть контакты
    Помещение свободного назначения в Московская область, Дмитровский ... - Фото 1
    Помещение свободного назначения в Московская область, Дмитровский ... - Фото 2
    1121237. Предлагается помещение в производственно-складском комплексе Лайт Индастриал общей площадью 855 кв. м. в д. Глазово, Московская область. Очередь 1. Преимущества:Вблизи аэропорта Шереметьево. Развитая транспортная инфраструктура: выезд на ЦКАД,...
    • 1/1 эт.
    111 150 000 Р
    Агент
    +7 (938) Показать номер
    Посмотреть контакты
    Помещение свободного назначения в Московская область, Домодедово ... - Фото 1
    Помещение свободного назначения в Московская область, Домодедово ... - Фото 2
    1134573. Предлагается склад общей площадью 1 080 кв.м в Домодедово. 1 этаж + антресоль ОСЗ. Преимущества: Прямой выход на Каширское шоссе и на трассу М4 обеспечивает удобный доступ как к городу, так и к области.10 минут от МКАД, ЦКАД и от ж/д станции...
    • 1/2 эт.
    118 800 000 Р
    Агент
    +7 (938) Показать номер
    Посмотреть контакты

    Не нашли подходящего объявления?

    Оставьте заявку, и наши риэлторы подберут псн в районе Химок

    (0)