106 400 000 Р 1 370 200 $ или 1 156 400

Информация об помещении

1
Этаж

Состояние и оснащение

Количество этажей
1
Развернуть
Агент
+7 (938) 656-74-88
Начать чат с агентом

Помещение свободного назначения в Московская область, Химки Подрезково ...

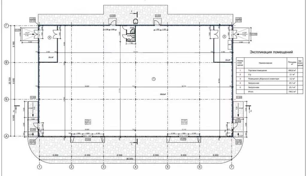
1098288-wf . Предлагается помещение общей площадью 665 кв. м. в многофункциональном комплексе формата light industrial в г.о. Химки.Преимущества:Первая линия Новосходненского шоссе.Удобная транспортная доступность.Вблизи Ленинградское шоссе, МКАД и аэропорт Шереметьево.Развитая инфраструктура.Ввод в эксплуатацию - декабрь 2025 г.Бетонные полы.Рабочее пространство без колонн.Доковые ворота с докшелтерами и доклевеллерами.Огороженная территория.Парковка перед зданием.Рядом остановки общественного транспорта.Технические характеристики:Общая площадь: 665 кв. м, из них:складская площадь: 515 кв. м;площадь мезонина: 150 кв. м.Рабочая высота потолка: 10 метров, до мезонина - 5 метров.Количество ворот: 2 шт.Выделенная электрическая мощность: 75 кВт, с возможностью увеличения.Нагрузка на пол: 5 т/кв. м.Возможна покупка большей части здания площадью 801 кв. м.Так как корректный адрес отсутствует на Яндекс.Картах, введен ориентировочный.

Читать полностью
    Позвонить Написать
    106 400 000 Р1 370 200 $ или 1 156 400
    Агент
    +7 (938) 656-74-88
    Начать чат с агентом
    Похожие предложения
    Продажа ПСН, Химки, Юбилейный пр-кт. - Фото 1
    Продажа ПСН, Химки, Юбилейный пр-кт. - Фото 2
    Продажа ПСН, Химки, Юбилейный пр-кт. - Фото 3
    Продажа ПСН, Химки, Юбилейный пр-кт. - Фото 4
    Продажа ПСН, Химки, Юбилейный пр-кт. - Фото 5
    Продажа ПСН, Химки, Юбилейный пр-кт. - Фото 6
    Продажа ПСН, Химки, Юбилейный пр-кт. - Фото 7
    Продажа ПСН, Химки, Юбилейный пр-кт. - Фото 8
    Продажа ПСН, Химки, Юбилейный пр-кт. - Фото 9
    общая площадь 830м², полезная площадь 830м²

    Продаётся помещение от собственника свободного назначения в центре города Химки (Новые Химки). Удобное расположение , рядом находится центральный офис Сбербанка, МФЦ, МОЭСК, МосОблЭнерго. Помещение состоит из двух этажей площадью 830 м2. Два отдельных...
    • 830 м²
    • 1-й эт.
    105 000 000 Р
    Агент
    +7 (926) Показать номер
    Посмотреть контакты
    Помещение свободного назначения в Московская область, Химки ш. ... - Фото 1
    Помещение свободного назначения в Московская область, Химки ш. ... - Фото 2
    1053658-gab . Предлагаем отдельно стоящее здание с арендаторами магазин Верный и ресторан Вино и Хинкали , площадью 750 кв. м. Без комиссии для покупателя. Преимущества объекта:-первая линия Вашутинского шоссе, прилегает к главному въезду в строящийся...
    • 1/1 эт.
    120 000 000 Р
    Агент
    +7 (938) Показать номер
    Посмотреть контакты
    Помещение свободного назначения в Московская область, Раменский ... - Фото 1
    Помещение свободного назначения в Московская область, Раменский ... - Фото 2
    829465-gab . Предлагаем отдельно стоящее двухэтажное административное здание с арендатором Чижик , площадью 1000 кв. м. Без комиссии для покупателя.Преимущества объекта:-первая линия;-8 минут на автомобиле от станции МЦД-3 Быково ;-удобная транспортная...
    • 1/2 эт.
    100 000 000 Р
    Агент
    +7 (938) Показать номер
    Посмотреть контакты
    Помещение свободного назначения в Московская область, Ленинский ... - Фото 1
    Помещение свободного назначения в Московская область, Ленинский ... - Фото 2
    Арт.Продажа помещения свободного назначения с окупаемостью 7 лет Адрес: Московская область, дер. Сапроново, ЖК 1-й Донской , корпус 5Локация:В районе дефицит помещений под супермаркеты;Первая линия проезжей улицы;Стабильный автомобильный и пешеходный...
    • 1/25 эт.
    115 000 000 Р
    Агент
    +7 (980) Показать номер
    Посмотреть контакты
    Продажа помещения 643,05 кв.м - Фото 1
    Продажа помещения 643,05 кв.м - Фото 2
    Продажа помещения 643,05 кв.м - Фото 3
    Продажа помещения 643,05 кв.м - Фото 4
    Продажа помещения 643,05 кв.м - Фото 5
    Продажа помещения 643,05 кв.м - Фото 6
    Продажа помещения 643,05 кв.м - Фото 7
    полезная площадь 643м²

    Продаётся универсальное производственно-складское помещение Light Industrial в современном промышленном парке -ICPARK ТИТАН. Назначение: под производство и склад Идеальное расположение для вашего бизнеса - всего 8 км от МКАД по скоростному шоссе М-4...
    • 643 м²
    • 1/1 эт.
    105 138 675 Р
    Агент
    +7 (495) Показать номер
    Посмотреть контакты

    Не нашли подходящего объявления?

    Оставьте заявку, и наши риэлторы подберут псн в районе Химок

    (0)