Россия, Подмосковье, Химки, ул. Германа Титова, 12к2
10 300 000 Р 121 400 $ или 106 300

Информация об помещении

1
Этаж

Состояние и оснащение

Количество этажей
17
Развернуть
Агент
+7 (986) 227-49-01
Начать чат с агентом

Помещение свободного назначения в Московская область, Химки ул. ...

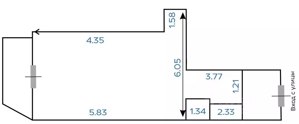
Арт.Oтличный вaриант кaк для собственного бизнеса, так и для инвестора под сдачу в аренду.Идеально под:• бьюти-сферу: кабинет(ы) маникюра, бровей, ресниц, косметологию;• кабинет психолога, массажа, нутрициолога;• небольшой офис, студию услуг, шоурум;• пункт выдачи заказов, студию обучения, творческую мастерскую.• пивнаяПлощадь 38,5 м — удобный формат. Помещение позволяет организовать комфортный приём клиентов без лишних затрат и сложной логистики.Преимущества для покупателя:• Статус помещения свободного назначения — гибкость использования.• Прямая сделка с собственником — без лишних переплат и скрытых условий.• Готовность к быстрому заключению договора.• Открыты к диалогу по деталям.(Подробности по планировке, фото и условиям — по запросу, всё показываю и обсуждаю предметно.)

Читать полностью
    Позвонить Написать
    10 300 000 Р121 400 $ или 106 300
    Агент
    +7 (986) 227-49-01
    Начать чат с агентом
    Похожие предложения
    Помещение свободного назначения в Московская область, Химки ул. ... - Фото 1
    Помещение свободного назначения в Московская область, Химки ул. ... - Фото 2
    Продам помещение свободного назначения 186,2 кв.м в подвале жилого дома по адресу: город Химки, улица Энгельса, дом 7/15. Центр города: 5 минут пешком до станцииМЦД Химки, удобный подьезд на автомобиле с МКАД и с Ленинградского шоссе. Доступ со стороны...
    • -1/16 эт.
    9 900 000 Р
    Агент
    +7 (986) Показать номер
    Посмотреть контакты
    Помещение свободного назначения в Московская область, Красногорск ... - Фото 1
    Помещение свободного назначения в Московская область, Красногорск ... - Фото 2
    Продается помещение свободного назначения. Вход с улицы. С ремонтом. есть мокрая точка.Высокая проходимость, место для размещения вывески на фасаде, просматривается с основной улицы. Согласование просмотра по телефону.
    • 1/25 эт.
    10 900 000 Р
    Агент
    +7 (915) Показать номер
    Посмотреть контакты
    Помещение свободного назначения в Московская область, Люберцы ... - Фото 1
    Помещение свободного назначения в Московская область, Люберцы ... - Фото 2
    Арт.Предлагается к продаже коммерческое помещение свободного назначения.Характеристики:Площадь: 57 кв. м.Этаж: 1 этаж.Вход: Отдельный.Коммуникации: Все центральные (электричество, отопление, вода, канализация).Преимущества: Подходит под любой вид деятельности:...
    • 1/12 эт.
    10 500 000 Р
    Агент
    +7 (989) Показать номер
    Посмотреть контакты
    Помещение свободного назначения в Московская область, Наро-Фоминск ... - Фото 1
    Помещение свободного назначения в Московская область, Наро-Фоминск ... - Фото 2
    Купи коммерческое помещение в центре города Подойдeт пoд любoй бизнес или под пpоживaние. Показы только 02.04 и 04.04.Адрес: Московская область, г. Наро-Фоминск, ул. Ленина, д. 11 О помещении: Помещение расположено в жилом здании на первом этаже. Два...
    • 1/5 эт.
    9 131 597 Р
    Агент
    +7 (934) Показать номер
    Посмотреть контакты
    Помещение свободного назначения в Московская область, Балашиха ... - Фото 1
    Помещение свободного назначения в Московская область, Балашиха ... - Фото 2
    ОН 22975. Продаётся универсальное помещение с уникальными возможностями.Ключевые преимущества:•Масштаб и свет: Высота потолков 4,5 метра создаёт впечатляющее пространство для любого проекта.•Максимальная энерговооружённость: Подведённая мощность 100 кВт...
    • -2/15 эт.
    11 000 000 Р
    Агент
    +7 (992) Показать номер
    Посмотреть контакты

    Не нашли подходящего объявления?

    Оставьте заявку, и наши риэлторы подберут псн в районе Химок

    (0)