Узнать последнюю цену

Реализация объекта недвижимости приостановлена

Информация об помещении

56000 м2
Площадь

Состояние и оснащение

Общая площадь складского комплекса, м2
56000.0

Оснащённость

Телефон
есть
Газоснабжение
имеется
Водоснабжение
центральное
Канализация
ценральная канализация
Отопление
центральное отопление
Электроснабжение
обеспечено действующим договором с электросбытовой компанией

Территория

Ограда
да
Асфальтирована
да
Парковка
да
Развернуть

Предлагается к продаже имущественный комплекс.

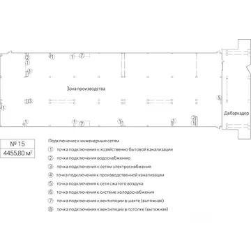
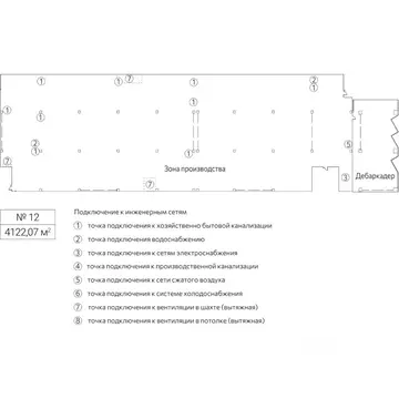
Предлагается к продаже имущественный комплекс производственно-складского назначения. Моск. обл, г. Химки, ул. Заводская, дом 2а. Общая площадь земельного участка – 24 Га. Общая площадь строений – 56 581 кв. м. Земельные участки и строения – в собственности. 2,5 км от МКАД. Охраняемая территория. Близость к аэропорту Шереметьево. Хорошая транспортная доступность. Предоставляется необходимая электрическая мощность, общая выделенная мощность 18 мвт. Имеются все коммуникации.Возможна продажа частями. Разрешенное использование земельных участков - для эксплуатации существующих зданий. На комплекс подведены централизованные коммуникации: электроэнергия, водоснабжение, канализация. Коммерческие условия подлежат обсуждению с заинтересованными лицами.

Читать полностью
    Узнать последнюю цену

    Реализация объекта недвижимости приостановлена

    Не нашли подходящего объявления?

    Оставьте заявку, и наши риэлторы подберут производственное помещение в районе Химок

    (0)