Реализация объекта недвижимости приостановлена

Информация об помещении

1
Этаж

Состояние и оснащение

Количество этажей
1
Развернуть

Производственное помещение в Московская область, Химки Подрезково мкр, ...

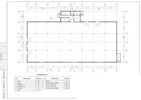
973258. Предлагается помещение общей площадью 1 457 кв. м. в многофункциональном комплексе формата Лайт индастриал в г.о. Химки.Преимущества:Первая линия Новосходненского шоссе.Удобная транспортная доступность.Вблизи Ленинградское шоссе, МКАД и аэропорт Шереметьево.Развитая инфраструктура.Ввод в эксплуатацию - апрель 2026 г.Бетонные полы.Рабочее пространство без колонн.Доковые ворота с докшелтерами и доклевеллерами.Земельный участок в собственности.Огороженная территория.Парковка перед зданием.Рядом остановки общественного транспорта.Технические характеристики:Общая площадь: 1 457 кв. м., из них:складская площадь: 1093 кв. м;площадь мезонина: 364 кв. м.Рабочая высота потолка: 10 метров, до мезонина - 5 метров.Количество ворот: 4 шт.Выделенная электрическая мощность: 150 кВт, с возможностью увеличения.Нагрузка на пол: 5 т/кв. м.Общая площадь ЗУ: 0,44 Га.Так как корректный адрес отсутствует на Яндекс.Картах, введен ориентировочный.

Читать полностью

    Реализация объекта недвижимости приостановлена

    Не нашли подходящего объявления?

    Оставьте заявку, и наши риэлторы подберут производственное помещение в районе Химок

    (0)