7 902 073 Р 103 000 $ или 87 530

Информация о квартире

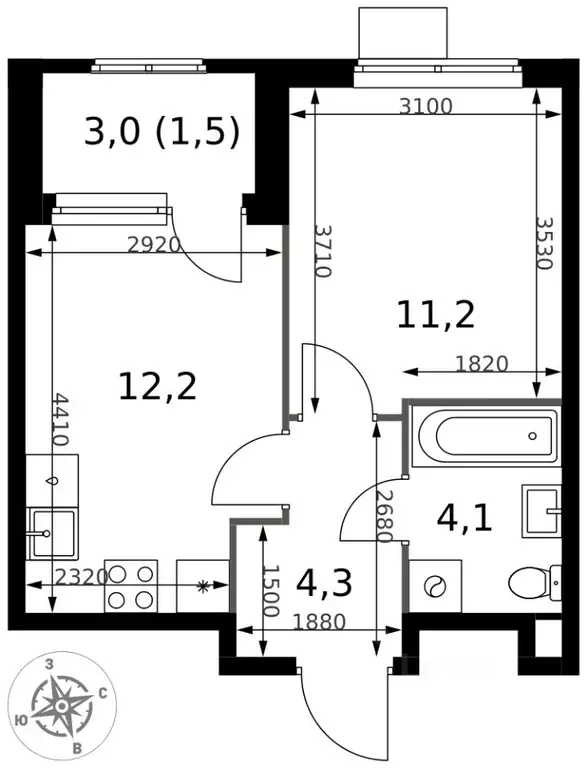
38 м2
Площадь
17 м2
Кухня
1
Комната
4
Этаж
11
Этажность

Дополнительная информация

Тип дома
монолит
Развернуть
Агент
+7 (934) 109-15-36
Начать чат с агентом

1-к кв. Московская область, Химки Клязьма-Старбеево мкр, Международный ...

Продаётся 1-комнатная квартира в строящемся доме (Корпус 8 (2 очередь)), общей площадью 38.60 кв.м., на 4 этаже. ЖК Берегасположен в живописном месте на берегу канала им. Москвы с хорошей экологией, вдали от шума в окружении леса и парков. Это микрорайон Клязьма-Старбеево, в квартале Международный, городского округа Химки. Проект класса Комфорт + предлагает отличные условия для жизни в окружении природы и современной инфраструктуры. На территории будут велопарковки, воркаут, спорт площадка, детская площадка с игровыми комплексами для детей младшего и старшего возраста, площадка отдыха, озеленение с разнообразными деревьями и кустарниками. Каждый день дарит новые впечатления и новые возможности не только для спокойной жизни, но развития и отдыха.

Читать полностью
    Позвонить Написать
    7 902 073 Р103 000 $ или 87 530
    Агент
    +7 (934) 109-15-36
    Начать чат с агентом
    Похожие предложения в Химках
    1-к кв. Московская область, Химки Клязьма-Старбеево мкр, Международный ... - Фото 1
    1-к кв. Московская область, Химки Клязьма-Старбеево мкр, Международный ... - Фото 2
    1-комнатная квартира, общая площадь 33м², жилая 11м², кухня 12м²

    БЕЗ ПЕРВОНАЧАЛЬНОГО ВЗНОСА • ИПОТЕКА 10 ДЛЯ ВСЕХ БЕЗ НАЦЕНОК • ДОСТУПНО ПО СЕМЕЙНОЙ ИПОТЕКЕ Прямая продажа от застройщика Жилой Комплекс класса Комфорт. Продаётся 1-к квартира номер 214 общей площадью 33.9 кв.м. на 5-м этаже 8 этажного здания. Без...
    • 33 м²
    • 1-ком
    • 5/17 эт.
    7 961 347 Р
    Агент
    +7 (933) Показать номер
    Посмотреть контакты
    1-к кв. Московская область, Химки Клязьма-Старбеево мкр, Международный ... - Фото 1
    1-к кв. Московская область, Химки Клязьма-Старбеево мкр, Международный ... - Фото 2
    1-комнатная квартира, общая площадь 33м², жилая 11м², кухня 12м²

    БЕЗ ПЕРВОНАЧАЛЬНОГО ВЗНОСА • ИПОТЕКА 10 ДЛЯ ВСЕХ БЕЗ НАЦЕНОК • ДОСТУПНО ПО СЕМЕЙНОЙ ИПОТЕКЕ Прямая продажа от застройщика Жилой Комплекс класса Комфорт. Продаётся 1-к квартира номер 87 общей площадью 33.7 кв.м. на 8-м этаже 10 этажного здания. Без...
    • 33 м²
    • 1-ком
    • 8/17 эт.
    7 944 775 Р
    Агент
    +7 (933) Показать номер
    Посмотреть контакты
    1-к кв. Московская область, Химки Клязьма-Старбеево мкр, Международный ... - Фото 1
    1-к кв. Московская область, Химки Клязьма-Старбеево мкр, Международный ... - Фото 2
    1-комнатная квартира, общая площадь 36м², жилая 12м², кухня 14м²

    БЕЗ ПЕРВОНАЧАЛЬНОГО ВЗНОСА • ИПОТЕКА 10 ДЛЯ ВСЕХ БЕЗ НАЦЕНОК • ДОСТУПНО ПО СЕМЕЙНОЙ ИПОТЕКЕ Прямая продажа от застройщика Жилой Комплекс класса Комфорт. Продаётся 1-к квартира номер 39 общей площадью 36.5 кв.м. на 4-м этаже 10 этажного здания. Без...
    • 36 м²
    • 1-ком
    • 4/17 эт.
    7 964 373 Р
    Агент
    +7 (933) Показать номер
    Посмотреть контакты
    1-к кв. Московская область, Химки Клязьма-Старбеево мкр, Международный ... - Фото 1
    1-к кв. Московская область, Химки Клязьма-Старбеево мкр, Международный ... - Фото 2
    1-комнатная квартира, общая площадь 33м², жилая 11м², кухня 12м²

    БЕЗ ПЕРВОНАЧАЛЬНОГО ВЗНОСА • ИПОТЕКА 10 ДЛЯ ВСЕХ БЕЗ НАЦЕНОК • ДОСТУПНО ПО СЕМЕЙНОЙ ИПОТЕКЕ Прямая продажа от застройщика Жилой Комплекс класса Комфорт. Продаётся 1-к квартира номер 93 общей площадью 33.3 кв.м. на 9-м этаже 10 этажного здания. Без...
    • 33 м²
    • 1-ком
    • 9/17 эт.
    7 907 818 Р
    Агент
    +7 (933) Показать номер
    Посмотреть контакты
    1-к кв. Московская область, Химки Клязьма-Старбеево мкр, Международный ... - Фото 1
    1-к кв. Московская область, Химки Клязьма-Старбеево мкр, Международный ... - Фото 2
    1-комнатная квартира, общая площадь 38м²

    Продаётся 1-комнатная квартира в строящемся доме (Корпус 8 (2 очередь)), общей площадью 38.50 кв.м., на 6 этаже. ЖК Берегасположен в живописном месте на берегу канала им. Москвы с хорошей экологией, вдали от шума в окружении леса и парков....
    • 38 м²
    • 1-ком
    • 6/11 эт.
    • монолит
    7 864 405 Р
    Агент
    +7 (934) Показать номер
    Посмотреть контакты

    Не нашли подходящего объявления?

    Оставьте заявку, и наши риэлторы подберут квартиру в новостройке в районе Химок

    (0)