Реализация объекта недвижимости приостановлена

Информация о квартире

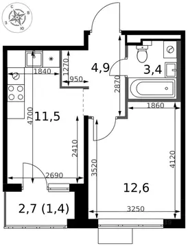
38.0 м2
Площадь
13.0 м2
Жилая
16.0 м2
Кухня
1
Комната
10
Этаж
12
Этажность

Дополнительная информация

Тип дома
монолит
Развернуть

1-к кв. Московская область, Химки Клязьма-Старбеево мкр, Международный ...

Продаётся 1-комнатная квартира в строящемся доме (Корпус 4 (2 очередь)), общей площадью 38.50 кв.м., на 10 этаже. ЖК Берегасположен в живописном месте на берегу канала им. Москвы с хорошей экологией, вдали от шума в окружении леса и парков. Это микрорайон Клязьма-Старбеево, в квартале Международный, городского округа Химки. Проект класса Комфорт + предлагает отличные условия для жизни в окружении природы и современной инфраструктуры. На территории будут велопарковки, воркаут, спорт площадка, детская площадка с игровыми комплексами для детей младшего и старшего возраста, площадка отдыха, озеленение с разнообразными деревьями и кустарниками. Каждый день дарит новые впечатления и новые возможности не только для спокойной жизни, но развития и отдыха.

Читать полностью

    Реализация объекта недвижимости приостановлена

    Не нашли подходящего объявления?

    Оставьте заявку, и наши риэлторы подберут квартиру в новостройке в районе Химок

    (0)