Россия, Подмосковье, Химки, ул. Генерала Дьяконова, 2

Реализация объекта недвижимости приостановлена

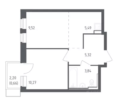
Информация о квартире

40.0 м2
Площадь
1
Комната
7
Этаж
8
Этажность
Развернуть

1-к кв. Московская область, Химки ул. Генерала Дьяконова, 2 (40.5 м)

Продаётся 1-комнатная квартира общей площадью 40.50 м на 7 этаже.Рафинад — это новый формат жилой застройки город на природе, расположившийся в городском округе Химки в 10 км от столицы. Современная архитектура здесь словно вплетается в природный ландшафт, создавая атмосферу тихого европейского города, где высоко ценятся безопасность и комфорт, природное окружение и внимание к деталям.

Читать полностью

    Реализация объекта недвижимости приостановлена

    Не нашли подходящего объявления?

    Оставьте заявку, и наши риэлторы подберут квартиру в новостройке в районе Химок

    (0)