25 000 000 Р 305 200 $ или 268 400

Информация об помещении

1
Этаж

Состояние и оснащение

Количество этажей
17
Развернуть
Агент
+7 (989) 607-46-52
Начать чат с агентом

Помещение свободного назначения в Московская область, Электросталь ул. ...

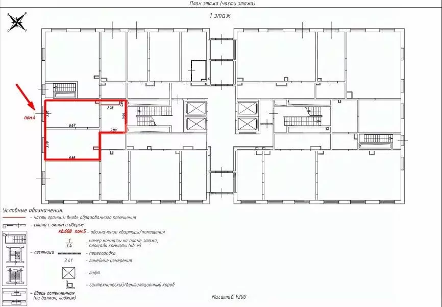
Хотите масштабировать свой бизнес и ищите новое помещение? Это то, что Вам нужно Помещение-распашонка, свободного назначения 167 кв.м в новом ЖК Высоково .Расположено на 1 этаже жилого многоквартирного дома с выходом на пешеходную часть улицы, а так же окнами во двор. Адрес: Захарченко 12, монолитно-кирпичный дом 2022 года. Имеется парковка напротив входа (редкое преимущество).Панорамное остекление, свободная планировка, отличный рекламный потенциал, потолки высотой 4,5 метра, мокрые точки, все коммуникации центральные. Свой отдельный вход, доступ 24/7.Помещение под отделку, поэтому у Вас имеется прекрасная возможность воплотить любые дизайнерские идеи и создать свой интерьер в современном стиле, не переделывая старый ремонт Развитая инфраструктура района, рядом расположены остановка общественного транспорта и ж/д станция. Отличное транспортное сообщение, удобный выезд на трассы А-107, 103, ЦКАД. От МКАД 40 км, до Москвы 60 минут, на электричке до ст.Курская.В окружении находятся центры притяжения клиентов, такие как кафе, продуктовые магазины и другие арендаторы, обеспечивающие постоянный поток людей.Идеально подойдет под стрит ретейл, представительство, флагманский салон, банк, бутик, продукты, магазин брендовой одежды, часов и/или аксессуаров, салон связи, электроники и различные виды деятельности.Можно разбить на два помещения, планировка позволяет. Прямая продажа от собственника, обременений и задолженностей нет.Главные преимущества для Вашего бизнеса: Новый густонаселенный ЖК с платежеспособным населением. Свой вход + парковка напротив. Можно сделать два отдельных помещения и сдавать разным арендаторам. Панорамное остекление, отличная просматриваемость. Потолки 4,5 метра возможность создать свой уникальный дизайн любого уровня. Центральные коммуникации. Готовы рассмотреть Ваши предложения Номер объекта: 1/538106/17193

Читать полностью
    Позвонить Написать
    25 000 000 Р305 200 $ или 268 400
    Агент
    +7 (989) 607-46-52
    Начать чат с агентом
    Похожие предложения
    Помещение свободного назначения в Московская область, Люберцы ул. 8 ... - Фото 1
    Помещение свободного назначения в Московская область, Люберцы ул. 8 ... - Фото 2
    1095407. Предлагаем помещение свободного назначения с арендатором пункт выдачи заказов ОЗОН , площадью 58,1 кв. м., расположенное на первом этаже жилого дома в ЖК Люберцы парк . Без комиссии для покупателя. Преимущества объекта:-комплекс состоит из...
    • 1/25 эт.
    25 550 000 Р
    Агент
    +7 (938) Показать номер
    Посмотреть контакты
    Помещение свободного назначения в Московская область, Ленинский ... - Фото 1
    Помещение свободного назначения в Московская область, Ленинский ... - Фото 2
    948355. Предлагаем торцевое торговое помещение с арендатором Магазин морепродуктов Шеф Порт , площадью 56 кв. м., расположенное на первом этаже 17-этажного жилого дома в ЖК Пригород Лесное . Без комиссии для покупателя.Преимущества объекта:-ЖК состоит...
    • 1/17 эт.
    24 000 000 Р
    Агент
    +7 (938) Показать номер
    Посмотреть контакты
    Помещение свободного назначения в Московская область, Красноармейск ... - Фото 1
    Помещение свободного назначения в Московская область, Красноармейск ... - Фото 2
    954518. Предлагаем помещение свободного назначения с сетевым арендатором ДоДо Пицца , площадью 190.5 кв. м, расположенное на первом этаже 9-этажного жилого дома. Без комиссии для покупателя.Преимущества объекта:-на пересечении ул. Спортивная и Комсомольская;-20...
    • 1/9 эт.
    25 000 000 Р
    Агент
    +7 (938) Показать номер
    Посмотреть контакты
    Помещение свободного назначения в Московская область, Мытищи ул. ... - Фото 1
    Помещение свободного назначения в Московская область, Мытищи ул. ... - Фото 2
    908622. Предлагаем помещение свободного назначения с сетевым арендатором Wildberries в ЖК Ярославский , площадью 87 кв. м, расположенное на первом этаже 25-этажного жилого дома. Без комиссии для покупателя.Преимущества объекта:-ЖК состоит из 34 корпусов...
    • 1/25 эт.
    25 500 000 Р
    Агент
    +7 (938) Показать номер
    Посмотреть контакты
    Помещение свободного назначения в Московская область, Красногорск ... - Фото 1
    Помещение свободного назначения в Московская область, Красногорск ... - Фото 2
    727533. Предлагаем помещение свободного назначения с арендаторами Салон красоты и Кувшин Радости , площадью 62 кв. м., расположенное в ЖК Большое Путилково , г. Красногорск. Угловой блок. Без комиссии для покупателя.Преимущества объекта:-первая линия...
    • 1/20 эт.
    25 000 000 Р
    Агент
    +7 (938) Показать номер
    Посмотреть контакты

    Не нашли подходящего объявления?

    Оставьте заявку, и наши риэлторы подберут псн в районе Электростали

    (0)