439 900 Р 5 690 $ или 4 820

Информация об помещении

1
Этаж

Состояние и оснащение

Количество этажей
9
Развернуть
Агент
+7 (966) 127-31-70
Начать чат с агентом

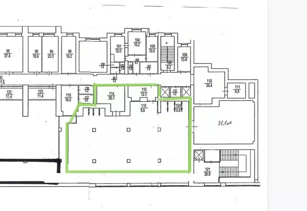
Помещение свободного назначения (125.7 м)

Вашему внимание ПСН 125.7 м Все условия обсуждаются индивидуально с каждым арендатором Характеристики объекта: Этажность – Первый этаж Общая площадь - 125.7 м. Высота потолка - 4,22 м. Отдельный вход Коммуникации: Электрическая мощность – 30 Кв/ч (возможно увеличение). Канализация, система вентиляции. Состояние объекта – Без ремонта Коммунальные платежи не включены в стоимость Налогообложение – с НДС Оперативный показ Все готово к заключению договора аренды Звоните Арт.

Читать полностью
    Позвонить Написать
    439 900 Р5 690 $ или 4 820
    Агент
    +7 (966) 127-31-70
    Начать чат с агентом
    Похожие предложения
    Помещение свободного назначения в Московская область, Электросталь ... - Фото 1
    Помещение свободного назначения в Московская область, Электросталь ... - Фото 2
    ==ЛОТ 222784 == ОТ СОБСТВЕННИКА, БЕЗ КОМИССИИ. Сдаётся просторное коммерческое помещение 600 м кв, на 1 этаже, ОПЕН СПЕЙС планировка. несколько входов.Отличное расположение, парковка, трафик. Густонаселеный район как для офлайн торговли так и для онлайн...
    • 1/1 эт.
    450 000 Р
    Агент
    +7 (923) Показать номер
    Посмотреть контакты
    Помещение свободного назначения в Московская область, Подольск ... - Фото 1
    Помещение свободного назначения в Московская область, Подольск ... - Фото 2
    Без комиссии Прямой представитель собственника Предлагается в аренду помещение по адресу: г. Подольск, ул. Комсомольская, 46, в ТЦ Комсомольский Общая площадь помещения составляет 332 кв.м. Второй этаж ТЦ.Трафик: высокий пешеходный и автомобильный трафик.Имеются...
    • 2/2 эт.
    435 000 Р
    Агент
    +7 (989) Показать номер
    Посмотреть контакты
    Помещение свободного назначения в Московская область, Люберцы пос. ... - Фото 1
    Помещение свободного назначения в Московская область, Люберцы пос. ... - Фото 2
    Отапливаемое Помещение 460 кв.м. в производственно-складском комплексе на огороженной охраняемой территории 3 га от Собственника БЕЗ Комиссии. Высота потолков 3,4 метра, Эл.мощность по Вашему запросу, отопление,водоснабжение и канализация центральные,...
    • 1/1 эт.
    440 000 Р
    Агент
    +7 (989) Показать номер
    Посмотреть контакты
    Помещение свободного назначения в Московская область, Мытищи ... - Фото 1
    Помещение свободного назначения в Московская область, Мытищи ... - Фото 2
    Сдается в аренду помещение свободного назначения на 1 этаже в ЖК Ярославский кварталы, А класса, который находится по адресу: г. Мытищи, Ярославское шоссе, д. 120Б, к. 3. Без комиссии для Арендатора ЛОКАЦИЯ:- Транспортная доступность от м. Медведково,...
    • 1/25 эт.
    440 000 Р
    Агент
    +7 (989) Показать номер
    Посмотреть контакты
    Помещение свободного назначения в Московская область, Жуковский ул. ... - Фото 1
    Помещение свободного назначения в Московская область, Жуковский ул. ... - Фото 2
    Компания УСПЕХ предлагает Вашему вниманию коммерческое помещение, свободного назначения в аренду, расположенное по адресу: г. Жуковский, ул. Маяковского, д. 9, на 1 этаже 5-этажного кирпичного жилого дома.Данное пространство идеально подходит для реализации...
    • 1/5 эт.
    450 000 Р
    Агент
    +7 (916) Показать номер
    Посмотреть контакты

    Не нашли подходящего объявления?

    Оставьте заявку, и наши риэлторы подберут псн в районе Заречья

    (0)