55 000 000 Р 661 600 $ или 581 000

Информация об помещении

1
Этаж

Состояние и оснащение

Количество этажей
2
Развернуть
Агент
+7 (938) 656-74-88
Начать чат с агентом

Помещение свободного назначения в Московская область, Егорьевск ...

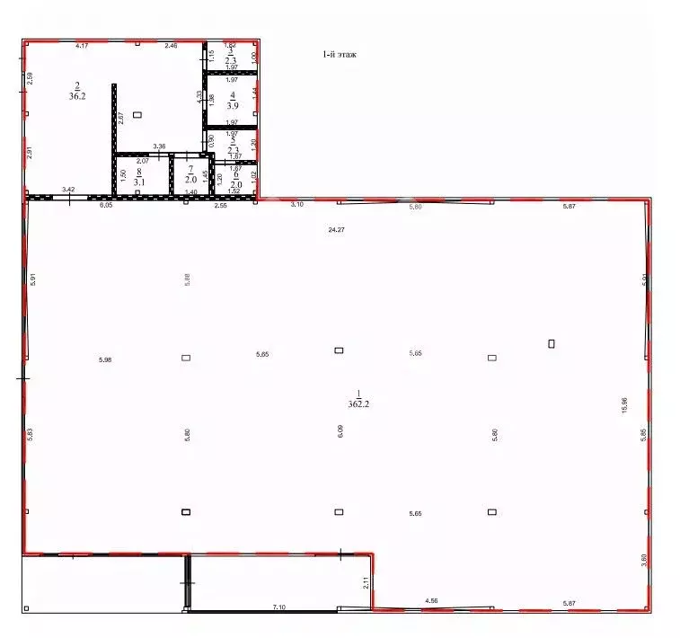
723164. Предлагаем торговое помещение с якорным арендатором Ростикс (КФС), площадью 309,1 кв. м., расположенное в административном здании. 1 и 2 этажи. Без комиссии для покупателя.Преимущества объекта:-первая линия ул. Советская, центр города Егорьевск;-развитая транспортная инфраструктура: выезд на Егорьевское шоссе в 3 км;-густонаселенный жилой район;-интенсивный пешеходный и автомобильный трафик;-объект отлично просматривается, находится в лёгком доступе для клиентов;-надежный сетевой арендатор;-открытая планировка;-витринное остекление;-место для вывески;-подключены все центральные коммуникации, канализация, жироуловители, ХВС;-земля в собственности;-наземная парковка;-вблизи остановка общественного транспорта.Технические параметры объекта:-2 отдельные входные группы;-площадь по этажам:1 этаж: 131,3 кв. м.,2 этаж: 177,8 кв. м.;-электрическая мощность: 150 кВт;-высота потолков: 3 м.Информация об арендаторе: -арендатор: Ростикс (КФС);-доход:/мес.Свяжитесь с нами для получения дополнительной информации

Читать полностью
    Позвонить Написать
    55 000 000 Р661 600 $ или 581 000
    Агент
    +7 (938) 656-74-88
    Начать чат с агентом
    Похожие предложения
    Помещение свободного назначения в Московская область, Егорьевск ... - Фото 1
    Помещение свободного назначения в Московская область, Егорьевск ... - Фото 2
    723164. Торговое помещение с сетевым арендатором KFC (Rostic s) в г. Егорьевск. Центр города. Развитая транспортная инфраструктура: выезд на Егорьевское шоссе в 3 км. Густонаселенный жилой район. Интенсивный пешеходный и автомобильный трафик. 1,2 этаж....
    • 1/2 эт.
    55 000 000 Р
    Агент
    +7 (938) Показать номер
    Посмотреть контакты
    Помещение свободного назначения в Московская область, Солнечногорск ... - Фото 1
    Помещение свободного назначения в Московская область, Солнечногорск ... - Фото 2
    1099688. Предлагаем помещение свободного назначения с сетевым арендатором Дикси в ЖК Солнечная Аллея , площадью 533.8 кв. м, расположенное на первом этаже 12-этажного жилого дома. Без комиссии для покупателя.Преимущества объекта:-первая линия ул. Куйбышева;-ЖК...
    • 1/12 эт.
    55 000 000 Р
    Агент
    +7 (938) Показать номер
    Посмотреть контакты
    Помещение свободного назначения в Московская область, Звенигород ... - Фото 1
    Помещение свободного назначения в Московская область, Звенигород ... - Фото 2
    1062235. Предлагаем помещение свободного назначения с сетевым арендатором супермаркет Магнит , площадью 325.3 кв. м, расположенное на первом этаже 9-этажного жилого дома. Без комиссии для покупателя.Преимущества объекта:-первая линия;-6 минут на автомобиле...
    • 1/9 эт.
    55 900 000 Р
    Агент
    +7 (938) Показать номер
    Посмотреть контакты
    Помещение свободного назначения в Московская область, Подольск проезд ... - Фото 1
    Помещение свободного назначения в Московская область, Подольск проезд ... - Фото 2
    885622. Предлагаем отдельно стоящее здание с сетевым арендатором Верный , площадью 430.8 кв. м. Без комиссии для покупателя.Преимущества объекта:-первая линия проезда Некрасова;-9 минут на автомобиле от станции МЦД Подольск и Силикатная ;-удобная...
    • 1/1 эт.
    54 000 000 Р
    Агент
    +7 (938) Показать номер
    Посмотреть контакты
    Помещение свободного назначения в Московская область, Одинцовский ... - Фото 1
    Помещение свободного назначения в Московская область, Одинцовский ... - Фото 2
    Первая линия напротив торгового центра Атлас с крупными ритейлерами таким как Перекресток, М.Видео, Детский мир, Летуаль и др. Прямая видимость с Можайского шоссе, густонаселенный район с высотной жилой застройкой. Спешите приобрести этот уникальный объект.Здесь...
    • 1/17 эт.
    56 000 000 Р
    Агент
    +7 (916) Показать номер
    Посмотреть контакты

    Не нашли подходящего объявления?

    Оставьте заявку, и наши риэлторы подберут псн в районе Егорьевска

    (0)