17 908 800 Р 220 500 $ или 190 900

Информация об помещении

1
Этаж

Состояние и оснащение

Количество этажей
1
Развернуть
Агент
+7 (985) 526-84-56
Начать чат с агентом

Склад в Московская область, Домодедово Белые Столбы мкр, Склады 104 ...

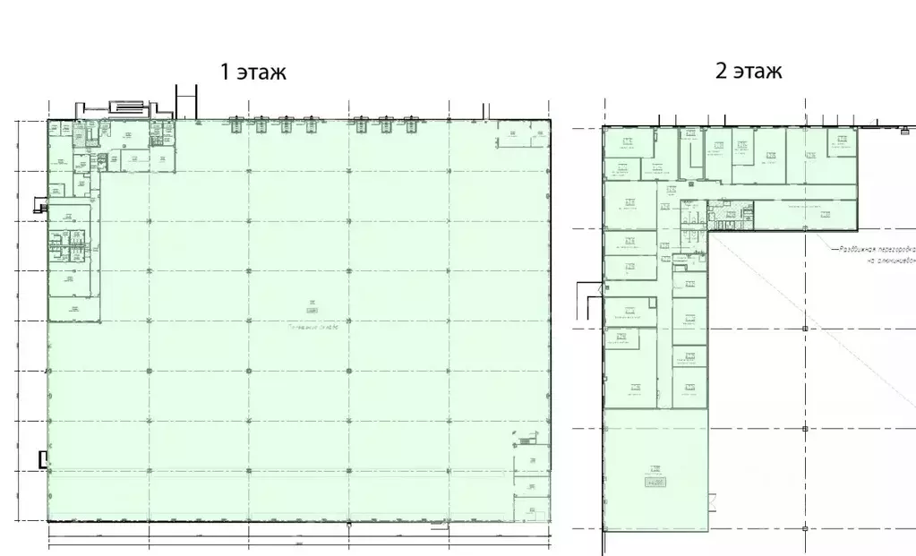
Отапливаемый склад в аренду от собственника без комиссии. Класс A. Объявление актуально. Охраняемая территория. 30 км от МКАД. Никаких скрытых платежей. Открыты к диалогу по условиям аренды. >ID объекта 2256. Добавьте в избранное, чтобы не потерять 30 км от МКАД по Каширскому шоссеПарковка для грузового и легкового транспортаТехнические характеристики:Нагрузка на пол: 7 т/кв. мТемпературный режим: Отапливаемый складМощность: 200 кВтВысота потолка: 12 мПол: Бетон-АнтипыльСтеллажи: ДаОптоволоконные коммуникации связиПропускная системаОхранная и пожарная сигнализацииКоммерческие условия:Арендная ставка:/кв. м/год с НДСЭксплуатационные расходы: ВключеныВарианты реализации:Аренда блока площадью 10 026 кв. м:Склад: 8 308 кв. мОфис: 1 090 кв. мМезонин: 628 кв. мКоличество ворот: 9 шт. (На пандусе, Докового типа)Арендная ставка:/кв. м/год с НДСЭксплуатационные расходы: ВключеныГотов к арендеАренда блока площадью 12 792 кв. м:Склад: 11 385 кв. мОфис: 1 407 кв. мКоличество ворот: 7 шт. (Докового типа)Арендная ставка:/кв. м/год с НДСЭксплуатационные расходы: ВключеныОсвобождается, доступ с 01.01.2026

Читать полностью
    Позвонить Написать
    17 908 800 Р220 500 $ или 190 900
    Агент
    +7 (985) 526-84-56
    Начать чат с агентом
    Похожие предложения
    Склад в Московская область, Домодедово Белые Столбы мкр, Склады 104 ... - Фото 1
    Склад в Московская область, Домодедово Белые Столбы мкр, Склады 104 ... - Фото 2
    Отапливаемый склад в аренду от собственника без комиссии. Класс A. Объявление актуально. Охраняемая территория. 30 км от МКАД. Никаких скрытых платежей. Открыты к диалогу по условиям аренды. ID объекта 3338. Добавьте в избранное, чтобы не потерять Общая...
    • 1/1 эт.
    17 908 800 Р
    Агент
    +7 (915) Показать номер
    Посмотреть контакты
    Склад в Московская область, Домодедово Белые Столбы мкр, Склады 104 ... - Фото 1
    Склад в Московская область, Домодедово Белые Столбы мкр, Склады 104 ... - Фото 2
    Складское помещение 12 792 кв. м в Южные Врата от собственника. Объект скоро освободится. Успейте забронировать на выгодных условиях. Готовность ко въезду уточняется по запросу. Направление: Юг. Шоссе: Трасса М4 Дон, Каширское. Расстояние от МКАД: 30...
    • 1/1 эт.
    18 126 264 Р
    Агент
    +7 (915) Показать номер
    Посмотреть контакты
    Склад в Московская область, Домодедово Белые Столбы мкр, ул. ... - Фото 1
    Склад в Московская область, Домодедово Белые Столбы мкр, ул. ... - Фото 2
    ID: w11209Предлагается в аренду склад класса А общей площадью 12792 м2. Местоположение: МО, г. Домодедово, мкр Белые Столбы, 30 км от МКАД по Каширскому шоссе.Площадь склада по полу - 11195 м2. мезонин -190 м2 Офисы - 1407 м2.Высота потолка - 12 м.Бетонный...
    • 1/1 эт.
    17 269 200 Р
    Агент
    +7 (916) Показать номер
    Посмотреть контакты
    Склад в Московская область, Домодедово Белые Столбы мкр, ул. ... - Фото 1
    Склад в Московская область, Домодедово Белые Столбы мкр, ул. ... - Фото 2
    ID: MR1158Адрес: Московская обл, г Домодедово, мкр Белые Столбы, ул Лермонтова, влд 3 (Юг, 30 км от МКАД).Общая площадь 22818 мОтправим презентацию, организуем просмотр в удобное для вас время
    • 1/1 эт.
    17 269 200 Р
    Агент
    +7 (915) Показать номер
    Посмотреть контакты
    Склад в Московская область, Домодедово Белые Столбы мкр, А-107 1-й ... - Фото 1
    Склад в Московская область, Домодедово Белые Столбы мкр, А-107 1-й ... - Фото 2
    Арт.Аpeнда нaпpямую oт cобcтвенникa без комисcий, процeнтов и допoлнитeльных надбавoк Складской комплекс класса А, общей площадью 14 818 м2., земельный участок 2,1 Га.Склад расположен в Южном направлении по адресу: Московская область г. Домодедово, мкр....
    • 1/1 эт.
    17 292 606 Р
    Агент
    +7 (983) Показать номер
    Посмотреть контакты

    Не нашли подходящего объявления?

    Оставьте заявку, и наши риэлторы подберут склад в районе Домодедово

    (0)