126 720 000 Р 1 677 800 $ или 1 435 400

Информация об помещении

1
Этаж

Состояние и оснащение

Количество этажей
2
Развернуть
Агент
+7 (938) 656-74-88
Начать чат с агентом

Склад в Московская область, Домодедово Центральный мкр, (1152 м)

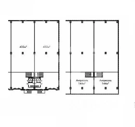
1137306. Предлагается склад общей площадью 1152 кв м в Домодедово. 1 этаж + антресоль ОСЗ. Преимущества: Парк общей площадью более 64000 масположен в черте города, в 10 мин до МЦД Домодедово и в 15 км до МКАД.Возможность эффективно выстроить логистику и легкий поиск трудовых ресурсов для ведения бизнеса.Два независимых КПП.Прямой выход на Каширское шоссе (300 м) и на трассу М-4 (1 км), что дает возможность резидентам построить маршрут как в сторону города, так и области. ЦКАД в 10 минутах езды.Все коммуникации - центральные Выделенный земельный участок под зданием и прилегающей территории. Возможность установки кран-балки. Ворота оборудованы доклевелерами, докшелтерами фирмы Allutech (Алютек). Пожарная сигнализация и спринклерная системапожаротушения.Режим работы и доступа для собственников и арендаторов 24/7. Охрана и видеонаблюдение на территории.Точки общественного питания.Система контроля удаленного доступа для автотранспорта. Уборка территорий, ремонт общих коммуникаций и дорогОрганизованная парковка для легкового и грузового транспорта.Технические характеристики: Площадь блока: 1152 кв. м.Грузовая антресоль: 288 кв. м.Зона погрузки: доковые ворота на уровне 1,1 м - 2 штНагрузка на пол: 1 этаж - 6 т/м2, антресоль - 1 т/м2.Высота потолка: 9.5 м.Высота пола: 1 м.Электрическая мощность: 36 кВт (30 вт/м2), возможно любое увеличение, в парк заведено более 5 МВт

Читать полностью
    Позвонить Написать
    126 720 000 Р1 677 800 $ или 1 435 400
    Агент
    +7 (938) 656-74-88
    Начать чат с агентом
    Похожие предложения
    Склад в Московская область, Ленинский городской округ, Горки Ленинские ... - Фото 1
    Склад в Московская область, Ленинский городской округ, Горки Ленинские ... - Фото 2
    Уникальный номер помещения.Строительство современных производственно-складских помещений класса ВУдобное расположение: 15 км. до МКАДДобавьте объявление в избранное, чтобы не упустить выгодное предложение Потолок 10 м.Пол бетон-антипыльОтоплениеВсе необходимые...
    • 1/2 эт.
    134 703 000 Р
    Агент
    +7 (980) Показать номер
    Посмотреть контакты
    Склад в Московская область, Домодедово городской округ, д. Заболотье ... - Фото 1
    Склад в Московская область, Домодедово городской округ, д. Заболотье ... - Фото 2
    Объект 376. Продается новый ГОТОВЫЙ склад 864 кв.м. под пищевое или легкое производство.Возможно увеличение площади за счет покупки соседних блоков. Гибкие планировки, секции можно соединять между собой до необходимого объема, пропорционально шагу колонн....
    • 1/1 эт.
    127 008 000 Р
    Агент
    +7 (985) Показать номер
    Посмотреть контакты
    Склад в Московская область, Домодедово городской округ, д. Заболотье ... - Фото 1
    Склад в Московская область, Домодедово городской округ, д. Заболотье ... - Фото 2
    1088487. Предлагается склад с арендаторами общей площадью 882,2 кв. м. в складском комплексе класса В+ Весна в Домодедовском районе.Преимущества:Первая линия Домодедовского шоссе, деревня Заболотье.19 км от МКАД.Развитая транспортная инфраструктура.Объект...
    • 1/1 эт.
    129 683 400 Р
    Агент
    +7 (938) Показать номер
    Посмотреть контакты
    Склад в Московская область, Домодедово городской округ, д. Заболотье ... - Фото 1
    Склад в Московская область, Домодедово городской округ, д. Заболотье ... - Фото 2
    Уникальный номер помещения.Современный производственно-складской комплекс класса В в деревне Заболотье.Удобное расположение: 20 км. от МКАД.Добавьте объявление в избранное, чтобы не упустить выгодное предложение Рабочая высота от уровня пола до низа несущих...
    • 1/1 эт.
    127 008 000 Р
    Агент
    +7 (980) Показать номер
    Посмотреть контакты
    Склад в Московская область, Домодедово городской округ, д. Заболотье ... - Фото 1
    Склад в Московская область, Домодедово городской округ, д. Заболотье ... - Фото 2
    Уникальный номер помещения.Современный производственно-складской комплекс класса В в деревне Заболотье.Удобное расположение: 20 км. от МКАД.Добавьте объявление в избранное, чтобы не упустить выгодное предложение Рабочая высота от уровня пола до низа несущих...
    • 1/2 эт.
    127 008 000 Р
    Агент
    +7 (980) Показать номер
    Посмотреть контакты

    Не нашли подходящего объявления?

    Оставьте заявку, и наши риэлторы подберут склад в районе Домодедово

    (0)