475 200 000 Р 6 316 000 $ или 5 377 000

Информация об помещении

1
Этаж

Состояние и оснащение

Количество этажей
2
Развернуть
Агент
+7 (938) 656-74-88
Начать чат с агентом

Помещение свободного назначения в Московская область, Домодедово ...

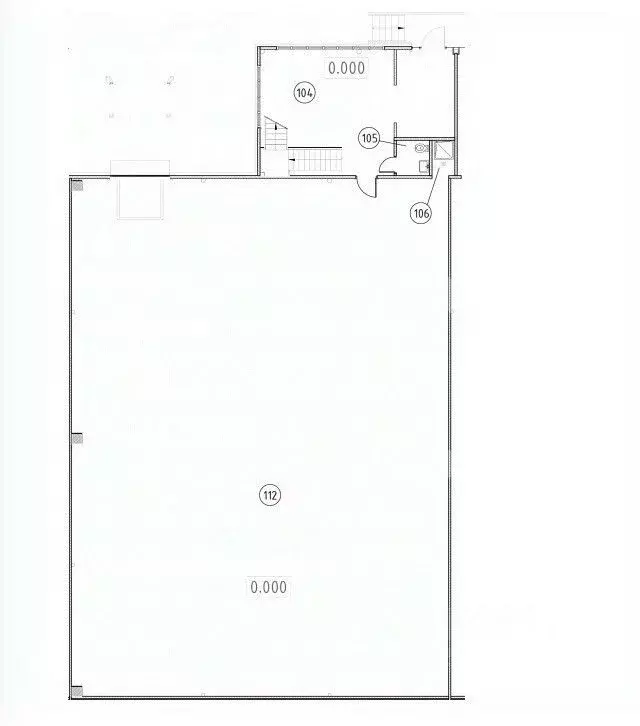
1134611. Предлагается склад общей площадью 4 320 кв. м в Домодедово. 1 этаж + антресоль ОСЗ. Преимущества: Парк расположен в черте города. Возможность эффективно выстроить логистику и поиск трудовых ресурсов для ведения бизнеса.Два независимых КПП.Прямой выход на Каширское шоссе и на трассу М4, что дает возможность резидентам построить маршрут как в сторону города, так и области. МКАД и ЦКАД в 10 минутах езды. 10 минут от ж/д станции Домодедово.Выделенный земельный участок под зданием и прилегающей территории. Возможность установки кран-балки. Температурные режимы: сухой, холодильный, морозильный. Ворота оборудованы доклевелерами, докшелтерами фирмы Allutech (Алютек). Пожарная сигнализация и спринклерная системапожаротушения.Режим работы и доступа для собственников и арендаторов 24/7. Охрана и видеонаблюдение на территории.Точки общественного питания.Система контроля удаленного доступа для автотранспорта. Уборка территорий, ремонт общих коммуникаций и дорогОрганизованная парковка для легкового и грузового транспорта.Технические характеристики: Площадь блока: 4 320 кв м.Складская площадь: 3 456 кв. м.Антресоль: 864 кв. м. Нагрузка на пол: 1 этаж - 6 т/кв. м, антресоль - 1 т/кв. м.Высота потолка: 9.5 м.Высота пола: 1 м.Электрическая мощность: 240 кВт.

Читать полностью
    Позвонить Написать
    475 200 000 Р6 316 000 $ или 5 377 000
    Агент
    +7 (938) 656-74-88
    Начать чат с агентом
    Похожие предложения
    Помещение свободного назначения в Московская область, Домодедово ... - Фото 1
    Помещение свободного назначения в Московская область, Домодедово ... - Фото 2
    1134611. Предлагается склад общей площадью 4 320 кв. м в Домодедово. 1 этаж + антресоль ОСЗ. Преимущества: Парк расположен в черте города. Возможность эффективно выстроить логистику и поиск трудовых ресурсов для ведения бизнеса.Два независимых КПП.Прямой...
    • 1/2 эт.
    475 200 000 Р
    Агент
    +7 (938) Показать номер
    Посмотреть контакты
    Помещение свободного назначения в Московская область, Домодедово ... - Фото 1
    Помещение свободного назначения в Московская область, Домодедово ... - Фото 2
    1134611. Предлагается склад общей площадью 4 320 кв. м в Домодедово. 1 этаж + антресоль ОСЗ. Преимущества: Парк расположен в черте города. Возможность эффективно выстроить логистику и поиск трудовых ресурсов для ведения бизнеса.Два независимых КПП.Прямой...
    • 1/2 эт.
    475 200 000 Р
    Агент
    +7 (938) Показать номер
    Посмотреть контакты
    Помещение свободного назначения в Московская область, Домодедово ... - Фото 1
    Помещение свободного назначения в Московская область, Домодедово ... - Фото 2
    Помещение свободного назначения на продажу от собственника без комиссии. Класс B+. Объявление актуально. 19 км от МКАД. Никаких скрытых платежей. Открыты к диалогу по условиям продажи. ID объекта 2789. Добавьте в избранное, чтобы не потерять Общая площадь:...
    • 1/1 эт.
    486 654 000 Р
    Агент
    +7 (923) Показать номер
    Посмотреть контакты
    Помещение свободного назначения в Московская область, Солнечногорск ... - Фото 1
    Помещение свободного назначения в Московская область, Солнечногорск ... - Фото 2
    1065377. Предлагаем складское помещение общей площадью 2 944,98 м2 в индустриальном парке Есипово-4. Корпус G, блоки 2+3+4.Преимущества объекта:32 км. от МКАД по Ленинградскому шоссе, вблизи трассы А-107 и ЦКАД.Комплекс складских помещений.Развитая транспортная...
    • 1/2 эт.
    481 502 818 Р
    Агент
    +7 (938) Показать номер
    Посмотреть контакты
    Уважаемые интересанты, данный объект реализуется с торгов по банкротству.Вы можете воспользоваться сопровождением нашего агентства на всех этапах торгов, вплоть до регистрации права собственности.Также у Вас есть возможность принять участие в торгах самостоятельно,...
    • -1/17 эт.
    488 234 192 Р
    Агент
    +7 (917) Показать номер
    Посмотреть контакты

    Не нашли подходящего объявления?

    Оставьте заявку, и наши риэлторы подберут псн в районе Домодедово

    (0)