113 400 000 Р 1 501 400 $ или 1 284 500

Информация об помещении

1
Этаж

Состояние и оснащение

Количество этажей
1
Развернуть
Агент
+7 (938) 880-86-32
Начать чат с агентом

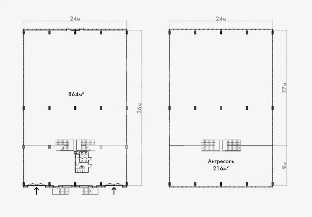
Помещение свободного назначения (1080 м)

Предлагается в покупку производственно-складское помещение в новом индустриальном паркеВвод в эксплуатацию - 3 кв 2026 г.ВАЖНОПрямая продажа от собственникаОСНОВНЫЕ ХАРАКТЕРИСТИКИ- Площадь: 1080 кв.м- Температура склада: Сухой- Высота потолка: 9,5 м- Нагрузка на пол: 6 т/кв.м- Тип пола: Бетонный пол с антипылевым покрытием- Спринклерная система пожаротушения- Ворота оборудованы доклевелерами, докшелтерами фирмы Allutech- Электрическая мощность: 30 ватт/кв.м с возможностью увеличения лимитов- Централизованный водопровод и водоотведение- Возможность установки кран-балки- Выделенный земельный участок под зданием и прилегающей территорииРАСПОЛОЖЕНИЕ- Уникальная доступность: 15 км до МКАДНомер объекта: 5/538680/20317

Читать полностью
    Позвонить Написать
    113 400 000 Р1 501 400 $ или 1 284 500
    Агент
    +7 (938) 880-86-32
    Начать чат с агентом
    Похожие предложения
    Помещение свободного назначения в Московская область, Домодедово ... - Фото 1
    Помещение свободного назначения в Московская область, Домодедово ... - Фото 2
    Номер объекта: 538680. Предлагается в покупку производственно-складское помещение в новом индустриальном паркеВвод в эксплуатацию - 3 кв 2026 г.ВАЖНОПрямая продажа от собственникаОСНОВНЫЕ ХАРАКТЕРИСТИКИ- Площадь: 1080 кв.м- Температура склада: Сухой-...
    • 1/1 эт.
    113 400 000 Р
    Агент
    +7 (923) Показать номер
    Посмотреть контакты
    Помещение свободного назначения в Московская область, Домодедово ... - Фото 1
    Помещение свободного назначения в Московская область, Домодедово ... - Фото 2
    1134573. Предлагается склад общей площадью 1 080 кв.м в Домодедово. 1 этаж + антресоль ОСЗ. Преимущества: Прямой выход на Каширское шоссе и на трассу М4, что дает возможность резидентам построить маршрут как в сторону города, так и области. 10 минут от...
    • 1/2 эт.
    118 800 000 Р
    Агент
    +7 (938) Показать номер
    Посмотреть контакты
    Помещение свободного назначения в Московская область, Домодедово ... - Фото 1
    Помещение свободного назначения в Московская область, Домодедово ... - Фото 2
    1134573. Предлагается склад общей площадью 1 080 кв. м в Домодедово. 1 этаж + антресоль ОСЗ. Преимущества: Парк расположен в черте города. Возможность эффективно выстроить логистику и поиск трудовых ресурсов для ведения бизнеса.Два независимых КПП.Прямой...
    • 1/2 эт.
    118 800 000 Р
    Агент
    +7 (938) Показать номер
    Посмотреть контакты
    Помещение свободного назначения в Московская область, Домодедово ... - Фото 1
    Помещение свободного назначения в Московская область, Домодедово ... - Фото 2
    1134573. Предлагается склад общей площадью 1 080 кв. м в Домодедово. 1 этаж + антресоль ОСЗ. Преимущества: Парк расположен в черте города. Возможность эффективно выстроить логистику и поиск трудовых ресурсов для ведения бизнеса.Два независимых КПП.Прямой...
    • 1/2 эт.
    118 800 000 Р
    Агент
    +7 (938) Показать номер
    Посмотреть контакты
    Помещение свободного назначения в Московская область, Домодедово ... - Фото 1
    Помещение свободного назначения в Московская область, Домодедово ... - Фото 2
    856105. Предлагается помещение общей площадью 853 кв. м. в складском комплексе класса В в г.о Домодедово, дер. Заболотье, логистический комплекс Весна . Преимущества: Первая линия Домодедовского шоссе. Выезд на Симферопольское и Каширское шоссе. Развитая...
    • 1/1 эт.
    119 420 000 Р
    Агент
    +7 (938) Показать номер
    Посмотреть контакты

    Не нашли подходящего объявления?

    Оставьте заявку, и наши риэлторы подберут псн в районе Домодедово

    (0)