118 800 000 Р 1 480 800 $ или 1 291 500

Информация об помещении

1
Этаж

Состояние и оснащение

Количество этажей
2
Развернуть
Агент
+7 (938) 656-74-88
Начать чат с агентом

Помещение свободного назначения в Московская область, Домодедово ...

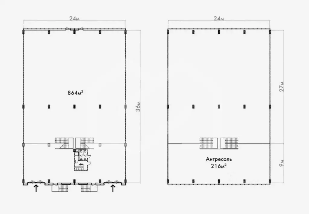
1134573. Предлагается склад общей площадью 1 080 кв. м в Домодедово. 1 этаж + антресоль ОСЗ. Преимущества: Парк расположен в черте города. Возможность эффективно выстроить логистику и поиск трудовых ресурсов для ведения бизнеса.Два независимых КПП.Прямой выход на Каширское шоссе и на трассу М4, что дает возможность резидентам построить маршрут как в сторону города, так и области. ЦКАД в 10 минутах езды. 10 минут от ж/д станции Домодедово.Выделенный земельный участок под зданием и прилегающей территории. Возможность установки кран-балки. Температурные режимы: сухой, холодильный, морозильный. Ворота оборудованы доклевелерами, докшелтерами фирмы Allutech (Алютек). Пожарная сигнализация и спринклерная системапожаротушения.Режим работы и доступа для собственников и арендаторов 24/7. Охрана и видеонаблюдение на территории.Точки общественного питания.Система контроля удаленного доступа для автотранспорта. Уборка территорий, ремонт общих коммуникаций и дорогОрганизованная парковка для легкового и грузового транспорта.Технические характеристики: Площадь блока: 1 080 кв. м.Складская площадь: 864 кв. м.Антресоль: 216 кв. м. Нагрузка на пол: 1 этаж - 6 т/ кв. м, антресоль - 1 т/ кв. м.Высота потолка: 9.5 м.Высота пола: 1 м.Электрическая мощность: 60 кВт.

Читать полностью
    Позвонить Написать
    118 800 000 Р1 480 800 $ или 1 291 500
    Агент
    +7 (938) 656-74-88
    Начать чат с агентом
    Похожие предложения
    Помещение свободного назначения в Московская область, Домодедово ... - Фото 1
    Помещение свободного назначения в Московская область, Домодедово ... - Фото 2
    1134573. Предлагается склад общей площадью 1 080 кв. м в Домодедово. 1 этаж + антресоль ОСЗ. Преимущества: Парк расположен в черте города. Возможность эффективно выстроить логистику и поиск трудовых ресурсов для ведения бизнеса.Два независимых КПП.Прямой...
    • 1/2 эт.
    118 800 000 Р
    Агент
    +7 (938) Показать номер
    Посмотреть контакты
    Помещение свободного назначения в Московская область, Домодедово ... - Фото 1
    Помещение свободного назначения в Московская область, Домодедово ... - Фото 2
    Продажа производственно-складского помещения 864 м в ДомодедовоВысота: 8 м.Нагрузка на пол: 6 т/кв.мГотов к заездуВАЖНОПрямая продажа от собственникаОСНОВНЫЕ ХАРАКТЕРИСТИКИ- Площадь: 864 м- Температура: Сухой- Шаг колонн: 12 x 24- Возможность высотного...
    • 1/2 эт.
    120 960 000 Р
    Агент
    +7 (923) Показать номер
    Посмотреть контакты
    Помещение свободного назначения в Московская область, Домодедово ... - Фото 1
    Помещение свободного назначения в Московская область, Домодедово ... - Фото 2
    898172. Предлагается помещения от 1154 кв. м. в складском комплексе в формате Лайт индастриал в пос. Долматово. Преимущества:Расположен на первой линии ЦКАД, 13 км от г. Домодедово, 6 км до трассы Дон М-4, 5 км до Каширского шоссе. Современный формат...
    • 1/1 эт.
    116 820 000 Р
    Агент
    +7 (938) Показать номер
    Посмотреть контакты
    Помещение свободного назначения в Московская область, Истра ... - Фото 1
    Помещение свободного назначения в Московская область, Истра ... - Фото 2
    642904. Предлагаем отдельно стоящее двухэтажное здание с сетевыми надежными арендаторами Дикси , Красное и Белое и Постамат OZON, площадью 698,3 кв. м., расположенное в г. Истра. Без комиссии для покупателя.Преимущества объекта:-первая линия;-25 минут...
    • 1/2 эт.
    130 000 000 Р
    Агент
    +7 (938) Показать номер
    Посмотреть контакты
    Помещение свободного назначения в Московская область, Домодедово ... - Фото 1
    Помещение свободного назначения в Московская область, Домодедово ... - Фото 2
    898172. Предлагается помещения от 1154 кв. м. в складском комплексе в формате Light Industrial в пос. Долматово. Преимущества:Расположен на первой линии ЦКАД, 13 км от г. Домодедово, 6 км до трассы Дон М-4, 5 км до Каширского шоссе. Современный формат...
    • 1/1 эт.
    116 820 000 Р
    Агент
    +7 (938) Показать номер
    Посмотреть контакты

    Не нашли подходящего объявления?

    Оставьте заявку, и наши риэлторы подберут псн в районе Домодедово

    (0)