237 600 000 Р 3 052 500 $ или 2 614 400

Информация об помещении

1
Этаж

Состояние и оснащение

Количество этажей
2
Развернуть
Агент
+7 (938) 656-74-88
Начать чат с агентом

Производственное помещение в Московская область, Домодедово ...

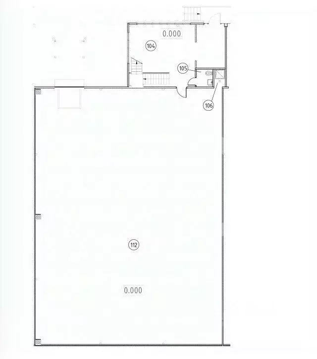
1134609. Предлагается склад общей площадью 2 160 кв. м в Домодедово. 1 этаж + антресоль ОСЗ. Преимущества: Парк расположен в черте города. Возможность эффективно выстроить логистику и поиск трудовых ресурсов для ведения бизнеса.Два независимых КПП.Прямой выход на Каширское шоссе и на трассу М4, что дает возможность резидентам построить маршрут как в сторону города, так и области.МКАД и ЦКАД в 10 минутах езды. 10 минут от ж/д станции Домодедово.Выделенный земельный участок под зданием и прилегающей территории. Возможность установки кран-балки. Температурные режимы: сухой, холодильный, морозильный. Ворота оборудованы доклевелерами, докшелтерами фирмы Allutech (Алютек). Пожарная сигнализация и спринклерная системапожаротушения.Режим работы и доступа для собственников и арендаторов 24/7. Охрана и видеонаблюдение на территории.Точки общественного питания.Система контроля удаленного доступа для автотранспорта. Уборка территорий, ремонт общих коммуникаций и дорогОрганизованная парковка для легкового и грузового транспорта.Технические характеристики: Площадь блока: 2 160 кв. м.Складская площадь: 1 728 кв. м.Антресоль: 432 кв. м. Нагрузка на пол: 1 этаж - 6 т/кв. м, антресоль - 1 т/ кв. м.Высота потолка: 9.5 м.Высота пола: 1 м.Электрическая мощность: 120 кВт.

Читать полностью
    Позвонить Написать
    237 600 000 Р3 052 500 $ или 2 614 400
    Агент
    +7 (938) 656-74-88
    Начать чат с агентом
    Похожие предложения
    Производственное помещение в Московская область, Домодедово ... - Фото 1
    Производственное помещение в Московская область, Домодедово ... - Фото 2
    1134609. Предлагается склад общей площадью 2 160 кв. м в Домодедово. 1 этаж + антресоль ОСЗ. Преимущества: Парк расположен в черте города. Возможность эффективно выстроить логистику и поиск трудовых ресурсов для ведения бизнеса.Два независимых КПП.Прямой...
    • 1/2 эт.
    237 600 000 Р
    Агент
    +7 (938) Показать номер
    Посмотреть контакты
    Производственное помещение в Московская область, Домодедово ... - Фото 1
    Производственное помещение в Московская область, Домодедово ... - Фото 2
    1134609. Предлагается склад общей площадью 2 160 кв. м в Домодедово. 1 этаж + антресоль ОСЗ. Преимущества: Парк расположен в черте города. Возможность эффективно выстроить логистику и поиск трудовых ресурсов для ведения бизнеса.Два независимых КПП.Прямой...
    • 1/2 эт.
    237 600 000 Р
    Агент
    +7 (938) Показать номер
    Посмотреть контакты
    Производственное помещение в Московская область, Солнечногорск ... - Фото 1
    Производственное помещение в Московская область, Солнечногорск ... - Фото 2
    1065391. Предлагаем складское помещение в индустриальном парке Есипово-5. Корпус: F, блок: 14.Преимущества:32 км. от МКАД по Ленинградскому шоссе, вблизи трассы А-107 и ЦКАД.Комплекс складских помещений.Развитая транспортная инфраструктура.Открытая планировка:...
    • 1/2 эт.
    231 332 106 Р
    Агент
    +7 (938) Показать номер
    Посмотреть контакты
    Производственное помещение в Московская область, Раменский ... - Фото 1
    Производственное помещение в Московская область, Раменский ... - Фото 2
    960646. Современный логистический комплекс на территории Промышленного парка Альфа , Раменский район Московской области. Отличная транспортная доступность, прямой съезд с ЦКАД.. 50 км до МКАД, 6.6 км до Рязанского шоссе, 9.4 км до федеральной трассы...
    • 1/1 эт.
    235 200 000 Р
    Агент
    +7 (938) Показать номер
    Посмотреть контакты
    Производственное помещение в Московская область, Мытищи городской ... - Фото 1
    Производственное помещение в Московская область, Мытищи городской ... - Фото 2
    933055. Предлагается производственный комплекс общей площадью 5000 кв..м в Ульянково, гор. о. Мытищи. Преимущества: Центр промышленной зоны. Выезд на Осташковское шоссе. Удаленность от МКАД - 16 км. Развитая инфраструктура с якорными арендаторами. Доступ...
    • 1/1 эт.
    250 000 000 Р
    Агент
    +7 (938) Показать номер
    Посмотреть контакты

    Не нашли подходящего объявления?

    Оставьте заявку, и наши риэлторы подберут производственное помещение в районе Домодедово

    (0)