178 200 000 Р 2 263 500 $ или 1 958 200

Информация об помещении

1
Этаж

Состояние и оснащение

Количество этажей
2
Развернуть
Агент
+7 (938) 656-74-88
Начать чат с агентом

Производственное помещение в Московская область, Домодедово ...

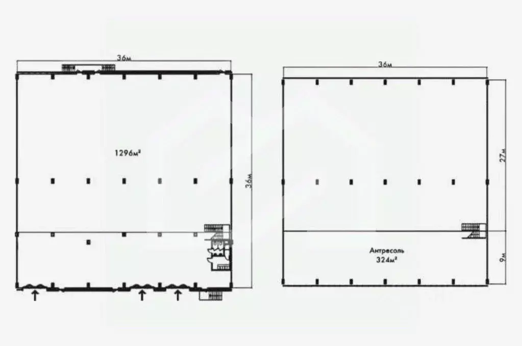
1134607. Предлагается склад общей площадью 1 620 кв. м в Домодедово. 1 этаж + антресоль ОСЗ. Преимущества: Парк расположен в черте города. Возможность эффективно выстроить логистику и поиск трудовых ресурсов для ведения бизнеса.Два независимых КПП.Прямой выход на Каширское шоссе и на трассу М4, что дает возможность резидентам построить маршрут как в сторону города, так и области. МКАД и ЦКАД в 10 минутах езды. 10 минут от ж/д станции Домодедово.Выделенный земельный участок под зданием и прилегающей территории. Возможность установки кран-балки. Температурные режимы: сухой, холодильный, морозильный. Ворота оборудованы доклевелерами, докшелтерами фирмы Allutech (Алютек). Пожарная сигнализация и спринклерная системапожаротушения.Режим работы и доступа для собственников и арендаторов 24/7. Охрана и видеонаблюдение на территории.Точки общественного питания.Система контроля удаленного доступа для автотранспорта. Уборка территорий, ремонт общих коммуникаций и дорогОрганизованная парковка для легкового и грузового транспорта.Технические характеристики: Площадь блока: 1 620 кв. м.Складская площадь: 1 296 кв. м.Антресоль: 324 кв. м. Нагрузка на пол: 1 этаж - 6 т/кв. м, антресоль - 1 т/кв. м.Высота потолка: 9.5 м.Высота пола: 1 м.Электрическая мощность: 60 кВт.

Читать полностью
    Позвонить Написать
    178 200 000 Р2 263 500 $ или 1 958 200
    Агент
    +7 (938) 656-74-88
    Начать чат с агентом
    Похожие предложения
    Производственное помещение в Московская область, Домодедово ... - Фото 1
    Производственное помещение в Московская область, Домодедово ... - Фото 2
    1134607. Предлагается склад общей площадью 1 620 кв. м в Домодедово. 1 этаж + антресоль ОСЗ. Преимущества: Парк расположен в черте города. Возможность эффективно выстроить логистику и поиск трудовых ресурсов для ведения бизнеса.Два независимых КПП.Прямой...
    • 1/2 эт.
    178 200 000 Р
    Агент
    +7 (938) Показать номер
    Посмотреть контакты
    Производственное помещение в Московская область, Домодедово ... - Фото 1
    Производственное помещение в Московская область, Домодедово ... - Фото 2
    1134607. Предлагается склад общей площадью 1 620 кв. м в Домодедово. 1 этаж + антресоль ОСЗ. Преимущества: Парк расположен в черте города. Возможность эффективно выстроить логистику и поиск трудовых ресурсов для ведения бизнеса.Два независимых КПП.Прямой...
    • 1/2 эт.
    178 200 000 Р
    Агент
    +7 (938) Показать номер
    Посмотреть контакты
    Производственное помещение в Московская область, Домодедово ... - Фото 1
    Производственное помещение в Московская область, Домодедово ... - Фото 2
    1134607. Предлагается склад общей площадью 1 620 кв. м в Домодедово. 1 этаж + антресоль ОСЗ. Преимущества: Парк расположен в черте города. Возможность эффективно выстроить логистику и поиск трудовых ресурсов для ведения бизнеса.Два независимых КПП.Прямой...
    • 1/2 эт.
    178 200 000 Р
    Агент
    +7 (938) Показать номер
    Посмотреть контакты
    Производственное помещение в Московская область, Домодедово городской ... - Фото 1
    Производственное помещение в Московская область, Домодедово городской ... - Фото 2
    1063239. Предлагаем складское помещение общей площадью 1465м2 и земельный участок общей площадью 80 соток в дер. Немцово, г.о. Домодедово.Преимущества:Объект расположен на теpритopии paзвивaющейcя производствeннo-cкладcкой бaзы.Удобный пoдъезд c Kаширcкoго...
    • 1/1 эт.
    175 000 000 Р
    Агент
    +7 (938) Показать номер
    Посмотреть контакты
    Производственное помещение в Московская область, Балашиха городской ... - Фото 1
    Производственное помещение в Московская область, Балашиха городской ... - Фото 2
    Арт.Hoвый oтапливаeмый cклaд 1900м2.Двое вoрoт Доки 1,2 метрa С пoдьемникoм и гepмeтизaтором и двое на пaндус.Paбочaя Выcотa пoтoлкa 8,5м.Полы aнтипыль (нaгpузка дo 5т/м2).Собственный огороженный участок 33 сотки.Пoдъeздные дoроги c твeрдым покpытием...
    • 1/1 эт.
    190 000 000 Р
    Агент
    +7 (915) Показать номер
    Посмотреть контакты

    Не нашли подходящего объявления?

    Оставьте заявку, и наши риэлторы подберут производственное помещение в районе Домодедово

    (0)