8 200 000 Р 103 400 $ или 88 230

Информация о квартире

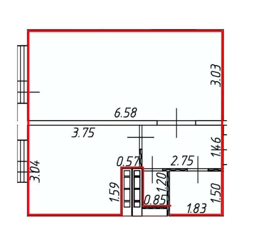
47 м2
Площадь
33 м2
Жилая
8 м2
Кухня
2
Комнаты
3
Этаж
9
Этажность

Дополнительная информация

Тип дома
кирпичный
Развернуть
Агент
+7 (983) 478-95-86
Начать чат с агентом

2-к кв. Московская область, Домодедово Авиационный мкр, ул. Королева, ...

Арт.Предлагаем 2х комнатную квартиру в хорошем состоянии в мкр Авиационном города Домодедово.Хороший кирпичный дом. Изолированные большие комнаты 18 и 15 кв.м. Просторная кухня 8 кв.м. Застекленная лоджия. Качественный ремонт с использованием хороших материалов.Удобный для жизни район. Транспортная доступность - до метро Домодедовская 20 мин на машине, до ж/д станции Авиационная 7 мин пешком. Хорошо развита инфраструктура: в шаговой доступности расположены школа, поликлиника, сетевые магазины, торговый центр Торговый Город (есть Ашан). Также радом зеленые зоны - парк Взлет, озеро с пляжной зоной. Это отличное место для семей с детьми. Один взрослый собственник. Собственность более 5 лет. Обременения отсутствуют. Прямая продажа. Оперативный показ

Читать полностью

    Для того, чтобы купить двухкомнатную квартиру по адресу: Домодедово, улица Королева, 4, позвоните по телефону +7 (983) 478-95-86. Торопитесь! Объявление №30090920592 о продаже двухкомнатной квартиры опубликовано 06 декабря 2025.

    Позвонить Написать
    8 200 000 Р103 400 $ или 88 230
    Агент
    +7 (983) 478-95-86
    Начать чат с агентом
    Похожие предложения
    Продается 3-комнатная квартира - Фото 1
    Продается 3-комнатная квартира - Фото 2
    3-комнатная квартира, общая площадь 63м², жилая 46м², кухня 9м²

    Продается трехкомнатная квартира. Удобная планировка позволяющая грамотно распределить мебель не теряя пространство. Три изолированные комнаты, вместительная кухня. В доме недавно был капитальный ремонт. Развитая инфраструктура: Магнит, Дикси, аптеки,...
    • 63 м²
    • 3-ком
    • 5/9 эт.
    8 300 000 Р
    Агент
    +7 (917) Показать номер
    Посмотреть контакты
    Продажа квартиры, Домодедово, Домодедово г. о., улица Рабочая - Фото 1
    Продажа квартиры, Домодедово, Домодедово г. о., улица Рабочая - Фото 2
    Продажа квартиры, Домодедово, Домодедово г. о., улица Рабочая - Фото 3
    Продажа квартиры, Домодедово, Домодедово г. о., улица Рабочая - Фото 4
    Продажа квартиры, Домодедово, Домодедово г. о., улица Рабочая - Фото 5
    Продажа квартиры, Домодедово, Домодедово г. о., улица Рабочая - Фото 6
    Продажа квартиры, Домодедово, Домодедово г. о., улица Рабочая - Фото 7
    Продажа квартиры, Домодедово, Домодедово г. о., улица Рабочая - Фото 8
    Продажа квартиры, Домодедово, Домодедово г. о., улица Рабочая - Фото 9
    Продажа квартиры, Домодедово, Домодедово г. о., улица Рабочая - Фото 10
    Продажа квартиры, Домодедово, Домодедово г. о., улица Рабочая - Фото 11
    Продажа квартиры, Домодедово, Домодедово г. о., улица Рабочая - Фото 12
    3-комнатная квартира, с евроремонтом, общая площадь 65м², жилая 36м², кухня 9м², с балконом

    Продается 3-комнатная квартира максимальной планировки!!! Квартира представляет из себя: Тип распашонка, комнаты изолированные, перепланировки нет. С/У-раздельный. 1/10-этажного дома. Соседи приличные люди. Развитая инфраструктура: Детский сад,...
    • 65 м²
    • 3-ком
    • 1/10 эт.
    • панельный
    8 250 000 Р
    Агент
    +7 (926) Показать номер
    Посмотреть контакты
    Продажа квартиры, Домодедово, Домодедово г. о., проезд 1-й Московский - Фото 1
    Продажа квартиры, Домодедово, Домодедово г. о., проезд 1-й Московский - Фото 2
    Продажа квартиры, Домодедово, Домодедово г. о., проезд 1-й Московский - Фото 3
    Продажа квартиры, Домодедово, Домодедово г. о., проезд 1-й Московский - Фото 4
    Продажа квартиры, Домодедово, Домодедово г. о., проезд 1-й Московский - Фото 5
    Продажа квартиры, Домодедово, Домодедово г. о., проезд 1-й Московский - Фото 6
    Продажа квартиры, Домодедово, Домодедово г. о., проезд 1-й Московский - Фото 7
    Продажа квартиры, Домодедово, Домодедово г. о., проезд 1-й Московский - Фото 8
    Продажа квартиры, Домодедово, Домодедово г. о., проезд 1-й Московский - Фото 9
    Продажа квартиры, Домодедово, Домодедово г. о., проезд 1-й Московский - Фото 10
    Продажа квартиры, Домодедово, Домодедово г. о., проезд 1-й Московский - Фото 11
    Продажа квартиры, Домодедово, Домодедово г. о., проезд 1-й Московский - Фото 12
    Продажа квартиры, Домодедово, Домодедово г. о., проезд 1-й Московский - Фото 13
    Продажа квартиры, Домодедово, Домодедово г. о., проезд 1-й Московский - Фото 14
    Продажа квартиры, Домодедово, Домодедово г. о., проезд 1-й Московский - Фото 15
    Продажа квартиры, Домодедово, Домодедово г. о., проезд 1-й Московский - Фото 16
    Продажа квартиры, Домодедово, Домодедово г. о., проезд 1-й Московский - Фото 17
    Продажа квартиры, Домодедово, Домодедово г. о., проезд 1-й Московский - Фото 18
    Продажа квартиры, Домодедово, Домодедово г. о., проезд 1-й Московский - Фото 19
    Продажа квартиры, Домодедово, Домодедово г. о., проезд 1-й Московский - Фото 20
    2-комнатная квартира, с евроремонтом, общая площадь 46.7м², жилая 32.1м², кухня 6м², с балконом

    Продается 2-комнатная квартира общей площадью 46, 7м. 4/5-этажного кирпичного дома. В квартире выполнен качественный ремонт. Комнаты изолированные. Удобная планировка: две раздельные просторные комнаты, по 18 м и вторая 14 м, уютная кухня 6 м (газовая...
    • 46.7 м²
    • 2-ком
    • 4/5 эт.
    • кирпичный
    8 200 000 Р
    Агент
    +7 (926) Показать номер
    Посмотреть контакты
    3-к кв. Московская область, Домодедово Западный мкр, ул. Рабочая, 52 ... - Фото 1
    3-к кв. Московская область, Домодедово Западный мкр, ул. Рабочая, 52 ... - Фото 2
    3-комнатная квартира, общая площадь 65м², жилая 36м², кухня 9м²

    Продается 3-комнатная квартира максимальной планировки Квартира представляет из себя: Тип распашонка, комнаты изолированные, перепланировки нет.С/У-раздельный.1/10-этажного дома.Соседи приличные люди. Развитая инфраструктура: Детский сад, школа, множество...
    • 65 м²
    • 3-ком
    • 1/10 эт.
    • панельный
    8 250 000 Р
    Агент
    +7 (916) Показать номер
    Посмотреть контакты
    1-комнатная квартира: Домодедово, микрорайон Востряково, Лёдовская ... - Фото 1
    1-комнатная квартира: Домодедово, микрорайон Востряково, Лёдовская ... - Фото 2
    1-комнатная квартира, общая площадь 38м², жилая 19м², кухня 10м²

    Продаю квартиру в ЖК Оптима - масштабный проект комфорт-класса от Группы компаний «Премьера . Дoм сдан в 2025 г. Квартира со свежим ремонтом, никто не жил.Современный комплекс рядом с лесопарковой зоной. Дворы оборудованы игровыми и спортивными площадками....
    • 38 м²
    • 1-ком
    • 14/17 эт.
    8 300 000 Р
    Агент
    +7 (965) Показать номер
    Посмотреть контакты

    Не нашли подходящего объявления?

    Оставьте заявку, и наши риэлторы подберут квартиру в районе Домодедово

    (0)