21 000 000 Р 259 600 $ или 224 900

Информация об помещении

1
Этаж

Состояние и оснащение

Количество этажей
17
Развернуть
Агент
+7 (916) 957-70-06
Начать чат с агентом

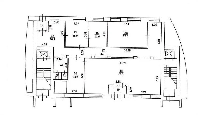
Помещение свободного назначения в Московская область, Домодедово ...

814291 . Предлагаем помещение свободного назначения формата Street Retail в ЖК Прибрежный парк , площадью 58.38 кв. м, расположенное на первом этаже 17-этажного жилого дома. Корпус 9.1. Без комиссии для покупателя.Преимущества объекта:-ЖК состоит из 22 корпусов переменной этажности (от 12 до 17 этажей), рассчитанных на 5 882 квартиры и более 25 000 жителей;-шаговая доступность от ж/д станции Ленинская (17 минут пешком);-удобная транспортная доступность: 1.5 км до Каширского шоссе, 3 км до трассы М-4, 4 км до Домодедовского шоссе;-плотный жилой массив;-развитая инфраструктура района;-рядом супермаркет Дикси ;-стабильный автомобильный и пешеходный трафик;-отлично просматривается, находится в легком доступе для потенциальных клиентов;-гибкая планировка, позволяющая адаптировать пространство под различные нужды;-витринное остекление;-место для вывески;-наземная парковка;-рядом остановка общественного транспорта.Технические параметры объекта:-отдельный вход с улицы;-электрическая мощность: 10 кВт (возможно увеличение мощности);-высота потолков: 3 м.Свяжитесь с нами для получения дополнительной информации

Читать полностью
    Позвонить Написать
    21 000 000 Р259 600 $ или 224 900
    Агент
    +7 (916) 957-70-06
    Начать чат с агентом
    Похожие предложения
    Продажа ПСН, Лесной, Советская улица - Фото 1
    Продажа ПСН, Лесной, Советская улица - Фото 2
    Продажа ПСН, Лесной, Советская улица - Фото 3
    Продажа ПСН, Лесной, Советская улица - Фото 4
    Продажа ПСН, Лесной, Советская улица - Фото 5
    Продажа ПСН, Лесной, Советская улица - Фото 6
    Продажа ПСН, Лесной, Советская улица - Фото 7
    Продажа ПСН, Лесной, Советская улица - Фото 8
    Продажа ПСН, Лесной, Советская улица - Фото 9
    Продажа ПСН, Лесной, Советская улица - Фото 10
    Продажа ПСН, Лесной, Советская улица - Фото 11
    Продажа ПСН, Лесной, Советская улица - Фото 12
    Продажа ПСН, Лесной, Советская улица - Фото 13
    Продажа ПСН, Лесной, Советская улица - Фото 14
    Продажа ПСН, Лесной, Советская улица - Фото 15
    Продажа ПСН, Лесной, Советская улица - Фото 16
    Продажа ПСН, Лесной, Советская улица - Фото 17
    Продажа ПСН, Лесной, Советская улица - Фото 18
    Продажа ПСН, Лесной, Советская улица - Фото 19
    Продажа ПСН, Лесной, Советская улица - Фото 20
    общая площадь 184.5м², полезная площадь 184.5м²

    Код объекта: 1383658. Продаетcя помещение в Пушкинском районе, пос. Лесной, на улице Советской, дом 3в. На первом этаже общей площадью 184,5 метров расположены 5 апартаментов (все разных размеров от 18 до 57 метров). Во всех помещениях сделан ремонт...
    • 184.5 м²
    • 1-й эт.
    20 900 000 Р
    Агент
    +7 (925) Показать номер
    Агентство
    ТСН Владис
    Посмотреть контакты
    Помещение свободного назначения в Московская область, Одинцовский ... - Фото 1
    Помещение свободного назначения в Московская область, Одинцовский ... - Фото 2
    Продаётся коммерческое помещение на 1-м этаже ЖК комфорт-класса Равновесие ОТ ЗАСТРОЙЩИКА общей площадью 95,40 кв.м и стоимостью. Квартал Равновесие - малоэтажный ЖК комфорт-класса клубного формата застройки. Расположен в Одинцовском городском округе...
    • 1/6 эт.
    20 034 000 Р
    Агент
    +7 (986) Показать номер
    Посмотреть контакты
    Помещение свободного назначения в Московская область, Ленинский ... - Фото 1
    Помещение свободного назначения в Московская область, Ленинский ... - Фото 2
    ID 7822. Предлагается к продаже коммерческое помещение в ЖК Пригород Лесное . Помещение расположено на первом этаже и на первой линии улицы, что обеспечивает максимальную видимость и удобство для посетителей. Общая площадь 87,3 кв.м. Полностью оборудовано...
    • 1/17 эт.
    21 700 000 Р
    Агент
    +7 (915) Показать номер
    Посмотреть контакты
    Продается ПСН 194.9 м2 - Фото 1
    Продается ПСН 194.9 м2 - Фото 2
    Продается ПСН 194.9 м2 - Фото 3
    Продается ПСН 194.9 м2 - Фото 4
    Продается ПСН 194.9 м2 - Фото 5
    Продается ПСН 194.9 м2 - Фото 6
    Продается ПСН 194.9 м2 - Фото 7
    Продается ПСН 194.9 м2 - Фото 8
    Продается ПСН 194.9 м2 - Фото 9
    Продается ПСН 194.9 м2 - Фото 10
    Продается ПСН 194.9 м2 - Фото 11
    Продается ПСН 194.9 м2 - Фото 12
    полезная площадь 194.9м²

    Нежилое помещение площадью 194.9 кв.м. по адресу Московская область, р-н. Мытищинский, г. Мытищи, ул. Академика Каргина, д. 38, корп. 1, пом. III, кадастровый номер: 50:12:0101704:3117, Этаж № 1. Кадастровые номера иных объектов недвижимости, в пределах...
    • 194.9 м²
    • 1/9 эт.
    21 539 219 Р
    Агент
    +7 (930) Показать номер
    Посмотреть контакты
    Прямая продажа от застройщика - Фото 1
    Прямая продажа от застройщика - Фото 2
    Прямая продажа от застройщика - Фото 3
    Прямая продажа от застройщика - Фото 4
    Прямая продажа от застройщика - Фото 5
    Прямая продажа от застройщика - Фото 6
    Прямая продажа от застройщика - Фото 7
    Прямая продажа от застройщика - Фото 8
    Прямая продажа от застройщика - Фото 9
    Прямая продажа от застройщика - Фото 10
    Прямая продажа от застройщика - Фото 11
    Прямая продажа от застройщика - Фото 12
    Прямая продажа от застройщика - Фото 13
    Прямая продажа от застройщика - Фото 14
    Прямая продажа от застройщика - Фото 15
    Прямая продажа от застройщика - Фото 16
    Прямая продажа от застройщика - Фото 17
    Прямая продажа от застройщика - Фото 18
    Прямая продажа от застройщика - Фото 19
    Прямая продажа от застройщика - Фото 20
    полезная площадь 81.8м²

    Предлагается в продажу торговое помещение, расположенное в ЖК «1-й Химкинский»
    • 81.8 м²
    • 1/14 эт.
    20 898 100 Р
    Агент
    +7 (495) Показать номер
    Посмотреть контакты

    Не нашли подходящего объявления?

    Оставьте заявку, и наши риэлторы подберут псн в районе Яма

    (0)