28 000 000 Р 345 100 $ или 299 700

Информация об помещении

1
Этаж

Состояние и оснащение

Количество этажей
17
Развернуть
Агент
+7 (915) 156-71-68
Начать чат с агентом

Помещение свободного назначения в Московская область, Долгопрудный ...

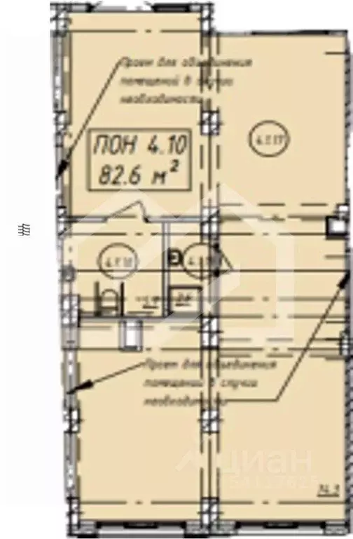
Продается помещение свободного назначения 182 кв.м., по адресу : лихачевский проспект 70 к 4. 2 отдельных входа с разных сторон, 3 санузла , окна выходят на 2 стороны . Возможно разделить на 2 отдельных помещения . Помещение с ремонтом , частично сдаётся .Цена . Оперативный показ , быстрый выход на сделку . Помещение находится на 1 этаже жилого дома , назначение свободное - можно открыть магазин, пекарю , или использовать как офис. По дополнительной информации - звоните

Читать полностью
    Позвонить Написать
    28 000 000 Р345 100 $ или 299 700
    Агент
    +7 (915) 156-71-68
    Начать чат с агентом
    Похожие предложения
    Помещение свободного назначения в Московская область, Химки Планерный ... - Фото 1
    Помещение свободного назначения в Московская область, Химки Планерный ... - Фото 2
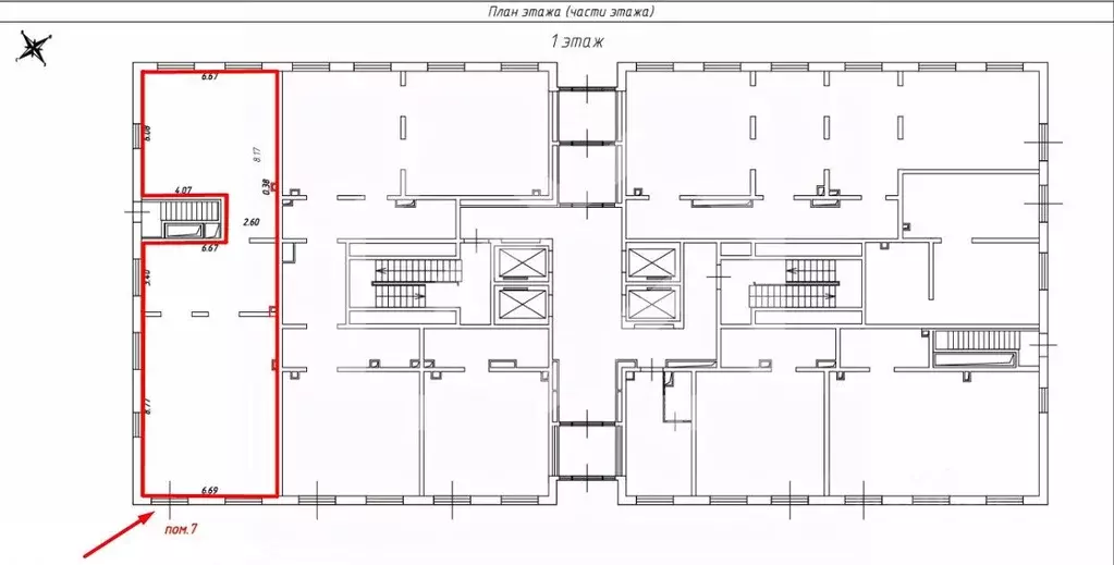
    1068998. Предлагаем помещение свободного назначения в ЖК Планерный квартал , площадью 66.69 кв. м, расположенное на первом этаже 17-этажного жилого дома. Без комиссии для покупателя.Преимущества объекта:-ЖК состоит из 7 корпусов переменной этажности...
    • 1/17 эт.
    27 207 695 Р
    Агент
    +7 (938) Показать номер
    Посмотреть контакты
    Помещение свободного назначения в Московская область, Ленинский ... - Фото 1
    Помещение свободного назначения в Московская область, Ленинский ... - Фото 2
    1087095. Предлагаем торговое помещение в ЖК 1-й Южный , площадью 82.6 кв. м, расположенное на первом этаже 25-этажного жилого дома. Корпус: 2. Без комиссии для покупателя.Преимущества объекта:-первая линия ул. Владимира Короткова;-ЖК состоит из 6 корпусов...
    • 1/25 эт.
    28 800 000 Р
    Агент
    +7 (938) Показать номер
    Посмотреть контакты
    Помещение свободного назначения в Московская область, Химки Планерный ... - Фото 1
    Помещение свободного назначения в Московская область, Химки Планерный ... - Фото 2
    1068996. Предлагаем помещение свободного назначения в ЖК Планерный квартал , площадью 75.42 кв. м, расположенное на первом этаже 17-этажного жилого дома. Без комиссии для покупателя.Преимущества объекта:-ЖК состоит из 7 корпусов переменной этажности...
    • 1/17 эт.
    28 339 597 Р
    Агент
    +7 (938) Показать номер
    Посмотреть контакты
    Помещение свободного назначения в Московская область, Люберцы ... - Фото 1
    Помещение свободного назначения в Московская область, Люберцы ... - Фото 2
    1109533. Предлагаем помещение свободного назначения с арендатором Автошкола, площадью 127.9 кв. м., расположенное на первом этаже жилого дома в ЖК Люберецкий . Угловой блок. Без комиссии для покупателя.Преимущества объекта:-комплекс состоит из 18 корпусов...
    • 1/22 эт.
    28 100 000 Р
    Агент
    +7 (938) Показать номер
    Посмотреть контакты
    Прямая продажа от застройщика - Фото 1
    Прямая продажа от застройщика - Фото 2
    Прямая продажа от застройщика - Фото 3
    Прямая продажа от застройщика - Фото 4
    Прямая продажа от застройщика - Фото 5
    Прямая продажа от застройщика - Фото 6
    Прямая продажа от застройщика - Фото 7
    Прямая продажа от застройщика - Фото 8
    Прямая продажа от застройщика - Фото 9
    Прямая продажа от застройщика - Фото 10
    Прямая продажа от застройщика - Фото 11
    Прямая продажа от застройщика - Фото 12
    Прямая продажа от застройщика - Фото 13
    Прямая продажа от застройщика - Фото 14
    Прямая продажа от застройщика - Фото 15
    Прямая продажа от застройщика - Фото 16
    Прямая продажа от застройщика - Фото 17
    Прямая продажа от застройщика - Фото 18
    Прямая продажа от застройщика - Фото 19
    Прямая продажа от застройщика - Фото 20
    полезная площадь 94м²

    Предлагается в продажу помещение свободного назначения, расположенное в ЖК 1-й Донской площадью 94 кв.м. Располагается на 1 этаже 12-этажного корпуса. Помещение идеально подойдет для магазина, кафе, офиса или другого бизнеса благодаря функциональной планировке...
    • 94 м²
    • 1/12 эт.
    27 951 000 Р
    Агент
    +7 (495) Показать номер
    Посмотреть контакты

    Не нашли подходящего объявления?

    Оставьте заявку, и наши риэлторы подберут псн в районе Долгопрудного

    (0)