Россия, Подмосковье, Долгопрудный, Набережная ул., 21к1
17 600 000 Р 219 400 $ или 191 300

Информация о квартире

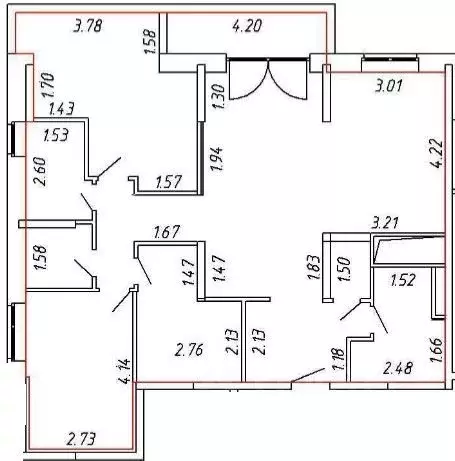
89 м2
Площадь
46 м2
Жилая
13 м2
Кухня
3
Комнаты
13
Этаж
18
Этажность

Дополнительная информация

Тип дома
монолит
Развернуть
Агент
+7 (910) 488-74-96
Начать чат с агентом

3-к кв. Московская область, Долгопрудный Набережная ул., 21к1 (89.3 м)

ТОРГ УМЕСТЕН ПРИ БЫСТРОЙ СДЕЛКЕ. Очень просторная еврочетырешка. Изолированные комнаты. Большие утепленные лоджии. Качественная отделка. Окна во двор.Свободная, прямая продажа. Зарегистрированных и проживающих нет. Без обременений. Один собственник, юридическое лицо. Полная стоимость в договоре. Все документы готовы к сделке. Гарантия чистоты и безопасности сделки Квартира подходит для приобретения в ипотеку, нотариальной сделки, материнский капитал, сертификата и т.д.Станция метро Физтех в 10 минутах на транспорте. В 15 минутах пешком находится яхт-клуб Адмирал. Вся необходимая инфраструктура имеется на территории жилого комплекса. Магазины, кафе, рестораны, пляж.

Читать полностью

    Для того, чтобы купить трехкомнатную квартиру по адресу: Долгопрудный, Набережная ул., 21к1, позвоните по телефону +7 (910) 488-74-96. Торопитесь! Объявление №30094022756 о продаже трехкомнатной квартиры опубликовано 05 марта 2026.

    Позвонить Написать
    17 600 000 Р219 400 $ или 191 300
    Агент
    +7 (910) 488-74-96
    Начать чат с агентом
    Похожие предложения
    Продается 3-комнатная квартира - Фото 1
    Продается 3-комнатная квартира - Фото 2
    3-комнатная квартира, общая площадь 66м², жилая 38м², кухня 14м²

    Код объекта: 2056472.Просторная квартира с двумя санузлами и дизайнерским ремонтом в Долгопрудном ОПИСАНИЕ КВАРТИРЫ Просторная и очень светлая квартира с качественным ремонтом, идеально подходящая для большой семьи.Планировка и состояние:Комнаты: Две...
    • 66 м²
    • 3-ком
    • 6/23 эт.
    18 650 000 Р
    Агент
    +7 (499) Показать номер
    Посмотреть контакты
    3-к кв. Московская область, Долгопрудный Парковая ул., 52к1 (66.5 м) - Фото 1
    3-к кв. Московская область, Долгопрудный Парковая ул., 52к1 (66.5 м) - Фото 2
    3-комнатная квартира, общая площадь 66м², жилая 38м², кухня 14м²

    Код объекта: 2056472.Просторная квартира с двумя санузлами и дизайнерским ремонтом в Долгопрудном ОПИСАНИЕ КВАРТИРЫПросторная и очень светлая квартира с качественным ремонтом, идеально подходящая для большой семьи.Планировка и состояние:Комнаты: Две...
    • 66 м²
    • 3-ком
    • 6/23 эт.
    • монолит
    18 650 000 Р
    Агент
    +7 (915) Показать номер
    Посмотреть контакты
    2-к кв. Московская область, Долгопрудный Новый бул., 19 (69.2 м) - Фото 1
    2-к кв. Московская область, Долгопрудный Новый бул., 19 (69.2 м) - Фото 2
    2-комнатная квартира, общая площадь 69м², жилая 38м², кухня 14м²

    Номер в базе:. Предлагается 2-х комнатная квартира общей площадью 65,5кв.м в шаговой доступности от МЦД ДолгопруднаяО КВАРТИРЕ:- Хороший ремонт, - Удобная планировка, окна выходят на 2 стороны- Большая площадь квартиры- Открытая парковкаО ЛОКАЦИИ:-15...
    • 69 м²
    • 2-ком
    • 11/18 эт.
    • кирпичный
    18 550 000 Р
    Агент
    +7 (933) Показать номер
    Посмотреть контакты
    3-к кв. Московская область, Долгопрудный Набережная ул., 29 (88.5 м) - Фото 1
    3-к кв. Московская область, Долгопрудный Набережная ул., 29 (88.5 м) - Фото 2
    3-комнатная квартира, общая площадь 88м², жилая 46м², кухня 15м²

    Продается 3-комнатная квартира с видом из окон на канал им. Москвы ЖК Московские Водники , ул. Набережная, д. 29, на 4 этаже 18 этажного монолитно-кирпичного дома. Общая площадь 88,5 кв. м с учетом лоджии, 83,9 кв. м без учета лоджии, жилая 46,9 (18,6/15,3/13)...
    • 88 м²
    • 3-ком
    • 4/18 эт.
    18 000 000 Р
    Агент
    +7 (924) Показать номер
    Посмотреть контакты
    3-комнатная квартира: Долгопрудный, Парковая улица, 48 (64.5 м) - Фото 1
    3-комнатная квартира: Долгопрудный, Парковая улица, 48 (64.5 м) - Фото 2
    3-комнатная квартира, общая площадь 64м², жилая 38м², кухня 10м²

    Уважаемые Коллеги и Покупатели Вашему вниманию предлагается на продажу 3-х комн. квартира, мкр-н Бригантина, ул. Парковая, д.48, 5/23МК, S-64,5/38,1/10,3, большой холл-11,4кв.м, комнаты раздельные, на две стороны, с/у-совм., застекленная лоджия,...
    • 64 м²
    • 3-ком
    • 5/23 эт.
    17 000 000 Р
    Агент
    +7 (965) Показать номер
    Посмотреть контакты

    Не нашли подходящего объявления?

    Оставьте заявку, и наши риэлторы подберут квартиру в районе Долгопрудного

    (0)