9 700 000 Р 124 000 $ или 105 300

Информация о коттедже

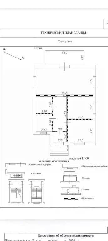
82 м2
Площадь
1
Этажность
7 cоток
Участок

Дополнительная информация

Дом продаётся вместе с участком
есть
Развернуть
Агент
+7 (985) 166-53-78
Начать чат с агентом

Дом в Московская область, Дмитровский муниципальный округ, Дмитровские ...

Арт.Дом возможно приобрести по программе семейная ипотека от 6 . А так же как вторичное жильё.Отличное предложение, которое сочетает в себе комфорт и качество. Дом площадью 82 кв.м с двумя спальными комнатами площадью 12 кв.м + 12 кв.м, с большой кухней-гостиной площадью 27 кв.м с выходом на террасу, которая станет любимым местом Вашей семьи. Качество строительства и коммуникации:Дом выполнен из газоблоков 300 мм, утеплен пенопластом 100 мм, что обеспечивает отличную теплоизоляцию и звукоизоляцию. Сделана наружная отделка декоративная штукатурка/панели под дерево. Сделана входная группа, отмостка, водостоки и водоприемники, дренаж участка. Автоматические ворота, калитка, забор на ленте с кирпичными столбами. На участке скважина, глубиной 40 м. Электричество заведено в дом, выделено 15 кв.т мощности. Дом подключен к коммуникациям. Семейный дом обладает удобной планировкой: бойлерная, санузел, две спальни и кухня-гостиная станет идеальным местом для семейных посиделок и совместного времяпрепровождения. Окна Rehau. Участок и дополнительные возможностиНа участке, помимо жилого дома, предусмотрено место для парковки, а также возможность строительства дополнительных построек. Это открывает широкие горизонты для реализации различных идей и потребностей семьи. В итоге, приобретение просторного дома для семьи с такими характеристиками представляет собой отличное решение для тех, кто ценит качество, комфорт и функциональность жилья. Это уютное место станет идеальным домом для создания семейных воспоминаний и проведения счастливых моментов вместе.Дом расположен в 500м от автобусной остановки - сообщение с ж/д станциями Савеловского направления. Ряном большое поселение Зверково, Горшково со школой, детским садом и д.р инфрастурктурой. До города Дмитров 10 минут на машине. Климат в этом районе мягкий, что делает проживание здесь комфортным в любое время года. Чистый воздух и живописные пейзажи способствуют формированию здоровой и гармоничной атмосферы, что особенно важно для семей с детьми. Здесь есть все условия для воспитания подрастающего поколения в окружении природы вдали от городской суеты.С точки зрения транспортной доступности, Дмитров находится в пределах досягаемости Москвы, что дает возможность комфортно добираться до столицы как на личном автомобиле, так и на общественном транспорте. Регулярные автобусные рейсы и удобные железнодорожные сообщения позволяют легко добраться до центра Москвы за относительно короткое время, что особенно ценно для тех, кто работает в столице, но предпочитает жить в более спокойной и уютной обстановке.

Читать полностью

    Для того, чтобы купить 1-этажный коттедж по адресу: улица Царские Поля, позвоните по телефону +7 (985) 166-53-78. Торопитесь! Объявление №50016682204 о продаже одноэтажного коттеджа опубликовано Сегодня.

    Позвонить Написать
    9 700 000 Р124 000 $ или 105 300
    Агент
    +7 (985) 166-53-78
    Начать чат с агентом
    Похожие предложения
    Продается дом в с. Абрамцево - Фото 1
    Продается дом в с. Абрамцево - Фото 2
    общая площадь 214м², участок 27 соток

    ОН 22896. Дом общей площадью 214 кв. м., включая подвал и монсардный этаж. Ровный, ухоженный участок 27 соток. Преимущества дома: Полная готовность к заселению: дом полностью оборудован современной техникой посудомоечной и стиральной машинами. Высокоэффективные...
    • 214 м²
    • 27 сот.
    9 800 000 Р
    Агент
    +7 (495) Показать номер
    Посмотреть контакты
    Дом в Московская область, Дмитровский муниципальный округ, Дюна кп 52 ... - Фото 1
    Дом в Московская область, Дмитровский муниципальный округ, Дюна кп 52 ... - Фото 2
    1 этаж, общая площадь 80м², участок 15 соток

    Продается уютный каркасный дом с панорамными окнами в живописном коттеджном посёлке Дюна Преимущества объекта:— Стильный интерьер— Дом полностью укомплектован современной мебелью, что обеспечит вам комфорт и уют с первого дня. —Лесной участок (СНТ) 15...
    • 1 эт.
    • 80 м²
    • 15 сот.
    9 800 000 Р
    Агент
    +7 (916) Показать номер
    Посмотреть контакты
    Дом 100 м2 на участке 10 сот. - Фото 1
    Дом 100 м2 на участке 10 сот. - Фото 2
    Дом 100 м2 на участке 10 сот. - Фото 3
    Дом 100 м2 на участке 10 сот. - Фото 4
    Дом 100 м2 на участке 10 сот. - Фото 5
    Дом 100 м2 на участке 10 сот. - Фото 6
    Дом 100 м2 на участке 10 сот. - Фото 7
    Дом 100 м2 на участке 10 сот. - Фото 8
    Дом 100 м2 на участке 10 сот. - Фото 9
    Дом 100 м2 на участке 10 сот. - Фото 10
    Дом 100 м2 на участке 10 сот. - Фото 11
    Дом 100 м2 на участке 10 сот. - Фото 12
    Дом 100 м2 на участке 10 сот. - Фото 13
    Дом 100 м2 на участке 10 сот. - Фото 14
    Дом 100 м2 на участке 10 сот. - Фото 15
    Дом 100 м2 на участке 10 сот. - Фото 16
    2 этажа, общая площадь 100м², жилая 52м², кол-во комнат 3, год постройки 2022, участок 10 соток

    Продается дом из газ блока 100 кв. м на участке 10 соток в уютном коттеджном поселке! &127795; Ищете идеальное место для жизни, вдали от городской суеты? Этот современный дом — отличный выбор для семейных проживаний и отдыха на природе! Основные...
    • 2 эт.
    • 100 м²
    • 10 сот.
    • 3-ком
    9 700 000 Р
    PRO
    +7 (926) Показать номер
    Агентство
    Альтернатива
    Посмотреть контакты
    Дом в Московская область, Пушкинский городской округ, д. Лепешки 34 ... - Фото 1
    Дом в Московская область, Пушкинский городской округ, д. Лепешки 34 ... - Фото 2
    1 этаж, общая площадь 100м², участок 10 соток

    Код объекта: 1930406.Продаётся уютный дом в деревне Лепёшки, Пушкинский городской округ Московской области — идеальное место для тех, кто ценит спокойствие загородной жизни и хочет быть ближе к природе.Построенный в 2024 году, этот каркасный дом площадью...
    • 1 эт.
    • 100 м²
    • 10 сот.
    9 600 000 Р
    Агент
    +7 (915) Показать номер
    Посмотреть контакты
    Дом в Московская область, Ступино городской округ, д. Толочаново ул. ... - Фото 1
    Дом в Московская область, Ступино городской округ, д. Толочаново ул. ... - Фото 2
    1 этаж, общая площадь 122м², участок 6 соток

    Арт.Представляем вашему вниманию каркасный одноэтажный дом, расположенный в живописной местности Подмосковья, в деревне Толочаново городского округа Ступино. Это отличный вариант для тех, кто ценит комфорт загородной жизни и стремится создать уютное пространство...
    • 1 эт.
    • 122 м²
    • 6 сот.
    9 800 000 Р
    Агент
    +7 (986) Показать номер
    Посмотреть контакты

    Не нашли подходящего объявления?

    Оставьте заявку, и наши риэлторы подберут купить дом в районе Дмитровского района

    (0)