1 900 000 Р 24 970 $ или 21 250

Информация о коттедже

41 м2
Площадь
2
Этажность
4
Количество комнат
12 cоток
Участок

Состояние и оснащение

Дом
каркасный

Дополнительная информация

Расположение туалета
на улице
Расположение душа
на улице
Дом продаётся вместе с участком
есть
Категория назначения землепользования
знп земли населенных пунктов
Вид разрешенного использования для участка
знп для лпх
Ближайший населённый пункт
дмитров
Ближайшая железнодорожная станция
дмитров

Коммуникации

Водоснабжение
колодец, колонка, родник
Канализация
выгребная яма
Электроснабжение
обеспечено действующим договором с электросбытовой компанией в количестве 15 квт.
Развернуть
Алексеев Сергей Юрьевич
PRO
+7 (926) 594-03-44
Профессионал AFY.ru с 2023 г.
Начать чат с агентом

Дом 41 м2 на участке 12 сот.

Продается дом в деревне, расположенный по адресу: Московская, р-н Дмитровский, с/о Якотский, с. Вороново.
10 км. От г.Дмитров, 75 км от МКАД.

Дом двухэтажный 41 кв.м.
Каркасный.
Фундамент: Лента.
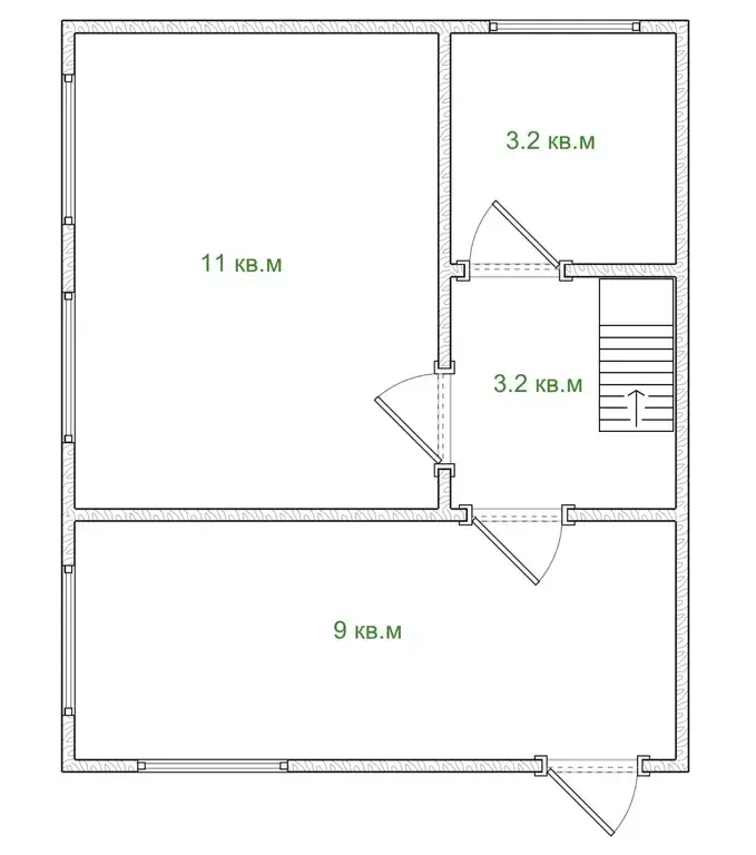
Практичная планировка:
На первом этаже три комнаты: 11 кв.м., 9 кв.м., 3.2 кв.м., второй этаж мансардный 15 кв.м.

Участок 1200 кв.м
Правильной прямоугольной формы, сухой, под небольшим уклоном, угловой. При желании можно докупить землю и расширить участок.
Полностью огорожен, есть заезд для вашего авто.

На участке так же расположены баня и хозблок.

Коммуникации:
Электричество 15 КвТ.
Колодец 8 колец.

Отличное начало вашей загородной жизни!

Соседи вокруг живут круглый год.
Дорога до деревни асфальтирована.
Автобусная остановка с транспортным сообщением до г.Дмитров в пешей доступности.

Рядом так же расположен большой поселок Буденовец, со всей необходимой инфраструктурой: школа, детский сад, продуктовые и хозяйственные магазины, пункты выдачи онлайн заказов.

Для любителей активного отдыха рядом большой водоем, с пляжем, зонами кемпинга и рыбной ловли. Так же есть несколько конно-спортивных клубов.

Деревня вдали от шума и пыли дорог со всеми благами цивилизации!
Остались вопросы? Звоните!
Показ в удобное для вас время.

Читать полностью

    Для того, чтобы купить 2-этажный коттедж по адресу: Вороново, позвоните по телефону +7 (926) 594-03-44. Торопитесь! Объявление №506735089 о продаже двухэтажного коттеджа опубликовано 19 марта 2026.

    Позвонить Написать
    1 900 000 Р24 970 $ или 21 250
    Алексеев Сергей Юрьевич
    PRO
    +7 (926) 594-03-44
    Профессионал AFY.ru с 2023 г.
    Начать чат с агентом
    Похожие предложения
    Продается дача в СНТ Шустино - Фото 1
    Продается дача в СНТ Шустино - Фото 2
    общая площадь 45м², участок 6 соток

    Продается дача в СНТ Шустино Дмитровского района. В доме подключенное электричество, бойлер (вода подается из летнего водопровод). В хозблоке имеется накопительный бойлер, душевая кабина. На участке- туалет. Рядом пруд с пляжем, местами для рыбной ловли....
    • 45 м²
    • 6 сот.
    1 900 000 Р
    Агент
    +7 (963) Показать номер
    Посмотреть контакты
    Дом в Московская область, Дмитровский муниципальный округ, Зверобой ... - Фото 1
    Дом в Московская область, Дмитровский муниципальный округ, Зверобой ... - Фото 2
    2 этажа, общая площадь 55м², участок 10 соток

    Код объекта: 1750693.В экологически чистом районе подмосковья Журавлиная родина в близи д. Тимошкино, СНТ Зверобой продаётся летний ( утеплённый ) дом 2009 г. постройки, общей площадью = 55 кв.м. Дом полностью меблирован и готов для проживания....
    • 2 эт.
    • 55 м²
    • 10 сот.
    2 000 000 Р
    Агент
    +7 (915) Показать номер
    Посмотреть контакты
    Дом в Московская область, Дмитров Росток СНТ, 36 (20 м) - Фото 1
    Дом в Московская область, Дмитров Росток СНТ, 36 (20 м) - Фото 2
    1 этаж, общая площадь 20м², участок 10 соток

    Продаётся дача в СНТ Росток , Дмитровского г. о., на участке 10 соток.Участок правильной формы, сухой, со всех сторон огорожен, оборудованы въездные ворота. На участке расположен дачный домик, площадью 25 кв.м и хоз. постройка.Коммуникации- электричество...
    • 1 эт.
    • 20 м²
    • 10 сот.
    2 000 000 Р
    Агент
    +7 (915) Показать номер
    Посмотреть контакты
    Дом в Дмитров, СНТ Росток (20 м) - Фото 1
    Дом в Дмитров, СНТ Росток (20 м) - Фото 2
    общая площадь 20м², участок 10 соток

    Продаётся дача в СНТ Росток , Дмитровского г. о., на участке 10 соток.Участок правильной формы, сухой, со всех сторон огорожен, оборудованы въездные ворота. На участке расположен дачный домик, площадью 25 кв.м и хоз. постройка.Коммуникации- электричество...
    • 20 м²
    • 10 сот.
    2 000 000 Р
    Агент
    +7 (919) Показать номер
    Посмотреть контакты
    Дом в Московская область, Дмитровский муниципальный округ, Почтовик ... - Фото 1
    Дом в Московская область, Дмитровский муниципальный округ, Почтовик ... - Фото 2
    2 этажа, общая площадь 54м², участок 10 соток

    Продается дача СНТ Почтовик с. Орудьево, Дмитровский р-н. Участок 10 соток, на участке садовый двухэтажный дом 54 кв.м. На первом этаже терраса, две комнаты.отапливать дом можно печью.Второй этаж под отделку - большая площадь, можно разместить еще несколько...
    • 2 эт.
    • 54 м²
    • 10 сот.
    1 800 000 Р
    Агент
    +7 (986) Показать номер
    Посмотреть контакты

    Не нашли подходящего объявления?

    Оставьте заявку, и наши риэлторы подберут купить дом в районе Вороново

    (0)